825 21 Ave, Calgary, Alberta T2M 1K5
Contact us about this property
Highlights
Estimated valueThis is the price Wahi expects this property to sell for.
The calculation is powered by our Instant Home Value Estimate, which uses current market and property price trends to estimate your home’s value with a 90% accuracy rate.Not available
Price/Sqft$729/sqft
Monthly cost
Open Calculator
Description
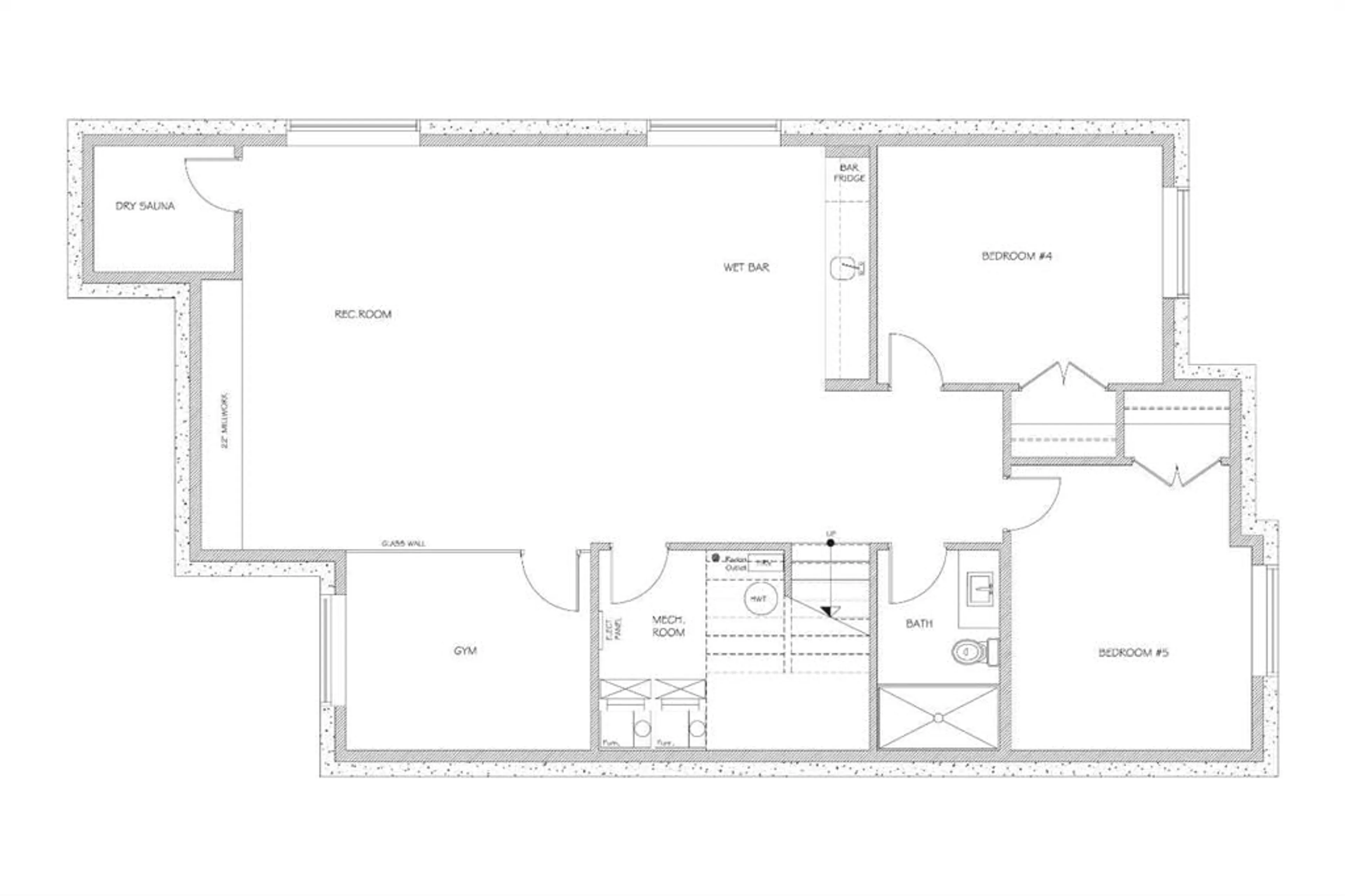
COMING THIS SUMMER TO MOUNT PLEASANT - Architecturally striking and impeccably designed, this modern detached residence sits on a rare 37.5’ x 120’ SOUTH backing lot in the highly sought-after inner-city community of Mount Pleasant. Defined by clean lines, expansive glazing, and a refined material palette, this home seamlessly blends contemporary sophistication with everyday functionality. Offering over 5 bedrooms and 4.5 bathrooms, it is a residence designed to elevate both daily living and entertaining. From the moment you enter, the home makes a bold and memorable impression. A stunning glass-walled flex room anchors the foyer—perfectly suited as a private office, while a formal dining room across the hall connects effortlessly to a fully equipped butler’s pantry, creating a seamless experience for hosting. A discreetly positioned powder room ensures privacy for guests without interrupting the home’s natural flow. At the heart of the home, the kitchen is both a showpiece and a workspace. An oversized island commands attention, complemented by a statement gas cooktop, built-in wall oven, and a full-height 42" refrigerator. A dedicated coffee station adds a layer of everyday luxury, while quartz countertops and sleek cabinetry maintain a timeless, minimalist aesthetic. The adjoining butler’s pantry enhances functionality with a prep sink—perfect for entertaining at scale while keeping the main kitchen pristine. A bright & inviting breakfast nook overlooks the backyard, offering a relaxed setting for daily living. The living room is warm yet refined, centered around custom millwork and a striking gas fireplace that serves as an architectural focal point. A spacious mudroom with extensive built-ins provides practical organization without compromising design. Upstairs, the primary suite is a true private retreat. Generous in scale and thoughtfully designed, it features a walk-in closet and a spa-inspired ensuite complete with quartz surfaces, a deep soaker tub, and an oversized, beautifully tiled shower. Two additional bedrooms each offer walk-in closets, including one with a private four-piece ensuite, while the other is conveniently located near a stylish three-piece bath. A well-appointed laundry room with sink and folding space completes the upper level. The fully developed lower level is designed for both relaxation & recreation. A spacious rec room with wet bar creates the perfect setting for entertaining, while a dedicated gym & private dry sauna elevate the lifestyle experience. Two additional bedrooms & a full bathroom make this level ideal for guests, teenagers, or extended family. Located in the heart of Mount Pleasant, this home is steps from Confederation Park, local cafés, shops, and top institutions including SAIT, U of C, and Foothills Medical Centre. Quick DT access & excellent transit offer the ideal blend of inner-city convenience and established charm.
Property Details
Interior
Features
Main Floor
Living Room
16`6" x 10`0"Kitchen
18`11" x 11`6"Pantry
6`4" x 8`10"Dining Room
12`5" x 10`7"Exterior
Features
Parking
Garage spaces 3
Garage type -
Other parking spaces 0
Total parking spaces 3
Property History
24







