2232 30 Ave, Calgary, Alberta T2T 1R8
Contact us about this property
Highlights
Estimated valueThis is the price Wahi expects this property to sell for.
The calculation is powered by our Instant Home Value Estimate, which uses current market and property price trends to estimate your home’s value with a 90% accuracy rate.Not available
Price/Sqft$711/sqft
Monthly cost
Open Calculator
Description
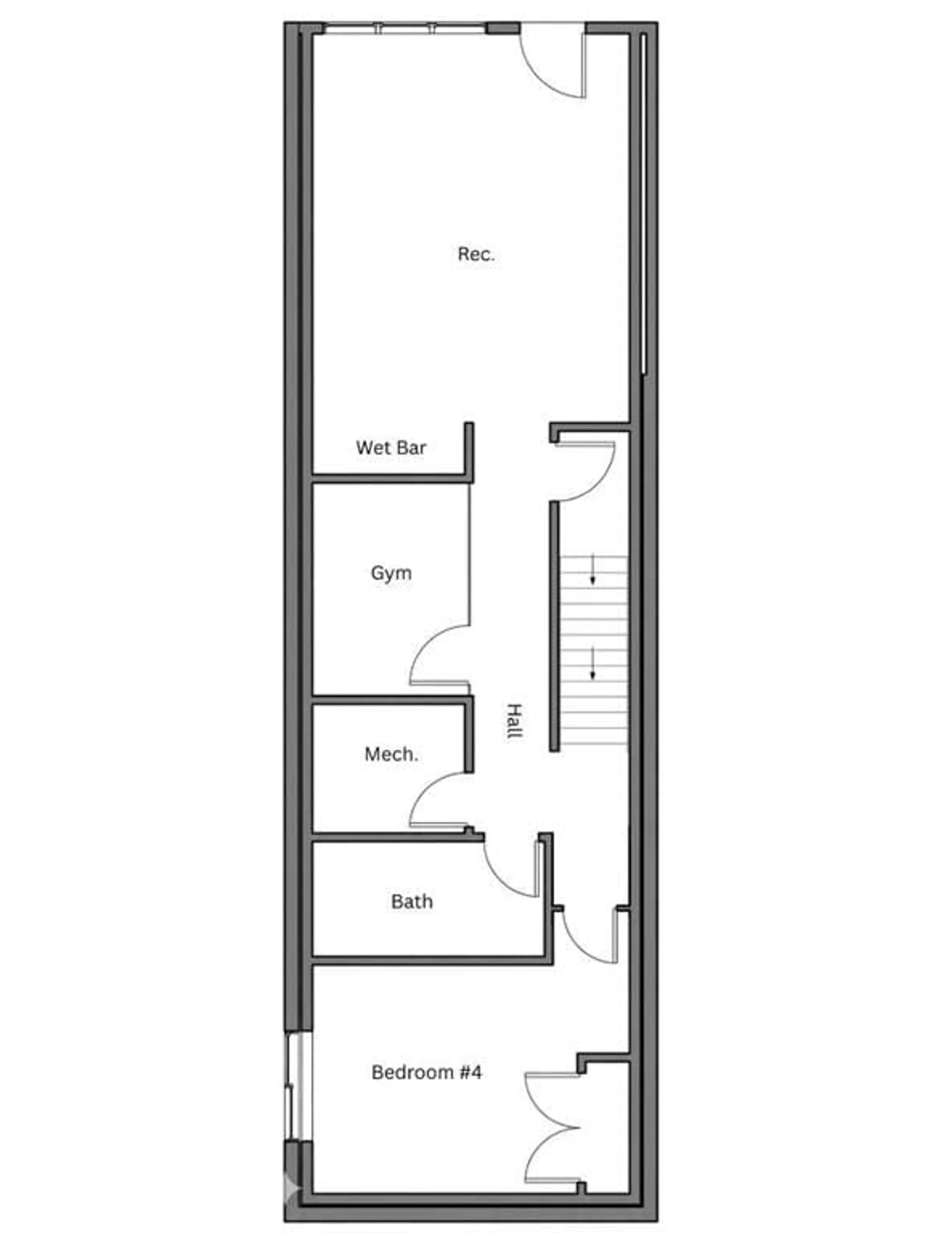
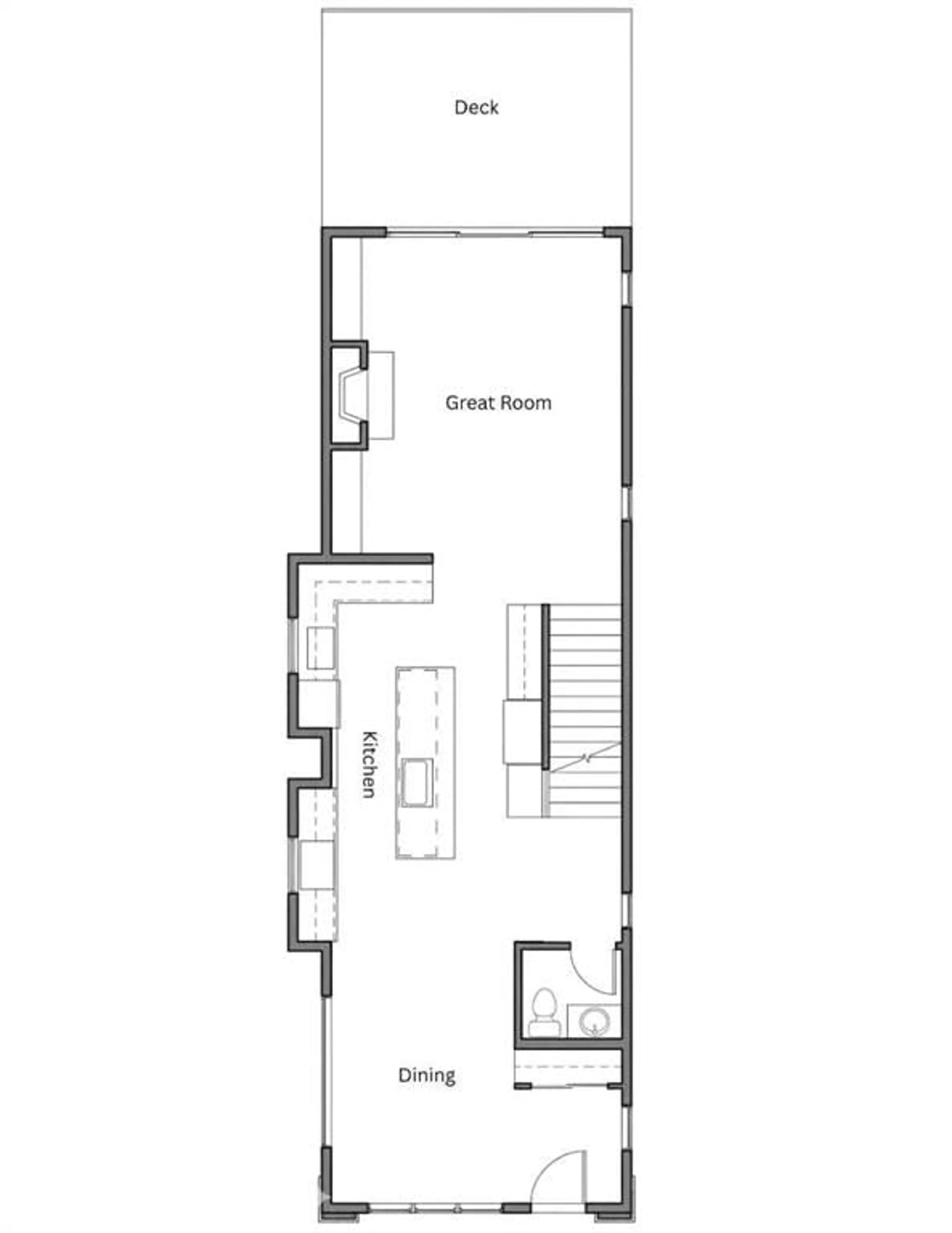
Modern luxury in the heart of Richmond. This exceptional detached two-story home offers a seamless open-concept floor plan designed for both sophisticated entertaining and comfortable family living. This build features two curated color palettes—light and dark. Please refer to photos of the builder's previous builds for a preview of both finish styles. The main level is anchored by a gourmet chef’s kitchen featuring a massive quartz island, premium finishes, and a spacious dining area that flows into the inviting living room with a sleek gas fireplace. A convenient powder room completes this level. The upper floor is thoughtfully designed with a large laundry room and three generous bedrooms—each boasting its own private walk-in closet. The primary retreat is a true sanctuary, featuring an expansive layout and a spa-like five-piece ensuite with a deep soaker tub and double vanity. Rare for the area, this full walkout home leads to a professionally finished lower level. Enjoy a dedicated home gym, a stylish wet bar, a large recreation room, and a fourth guest bedroom. Outside, the walkout access provides a seamless transition to the backyard and the double detached garage. Experience the perfect blend of inner-city convenience and high-end craftsmanship just minutes from Marda Loop and downtown.
Property Details
Interior
Features
Main Floor
Entrance
8`6" x 5`11"Dining Room
16`0" x 11`0"2pc Bathroom
5`6" x 5`0"Kitchen With Eating Area
20`4" x 13`6"Exterior
Features
Parking
Garage spaces 2
Garage type -
Other parking spaces 0
Total parking spaces 2
Property History
23






