2716 3 Ave, Calgary, Alberta T2N 0L7
Contact us about this property
Highlights
Estimated valueThis is the price Wahi expects this property to sell for.
The calculation is powered by our Instant Home Value Estimate, which uses current market and property price trends to estimate your home’s value with a 90% accuracy rate.Not available
Price/Sqft$565/sqft
Monthly cost
Open Calculator
Description
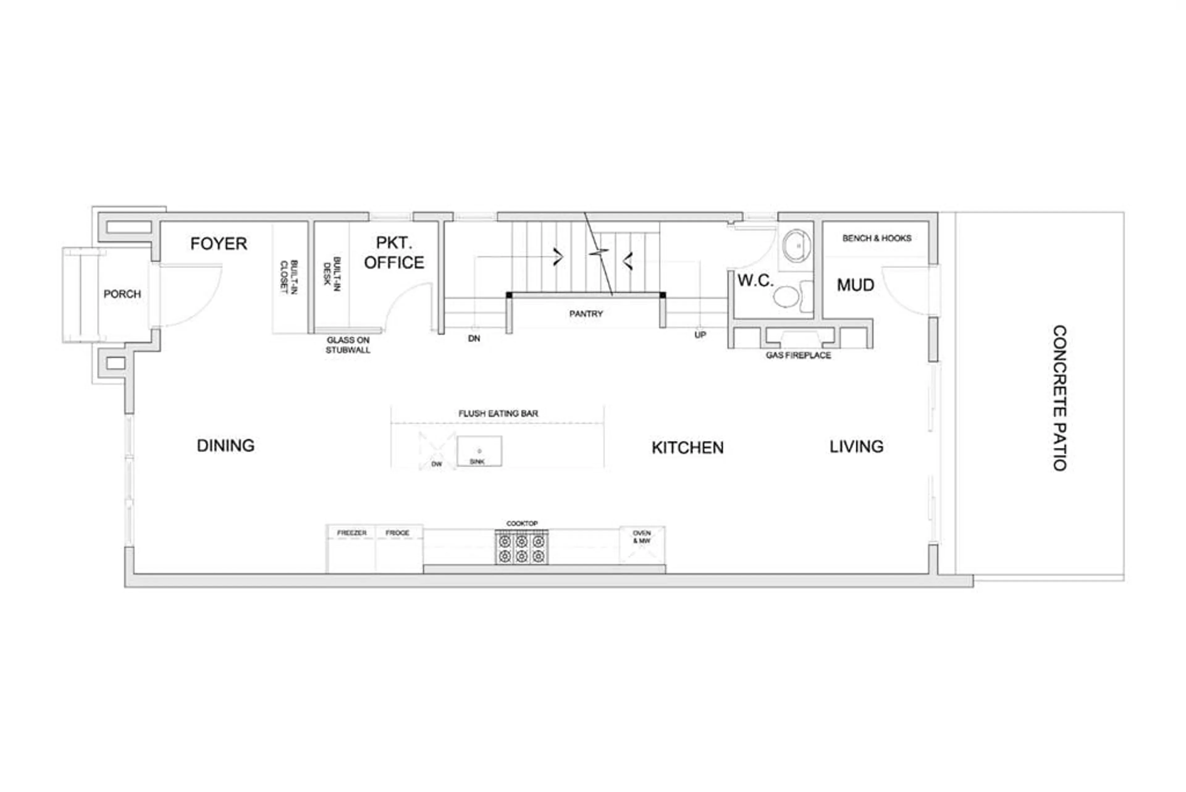
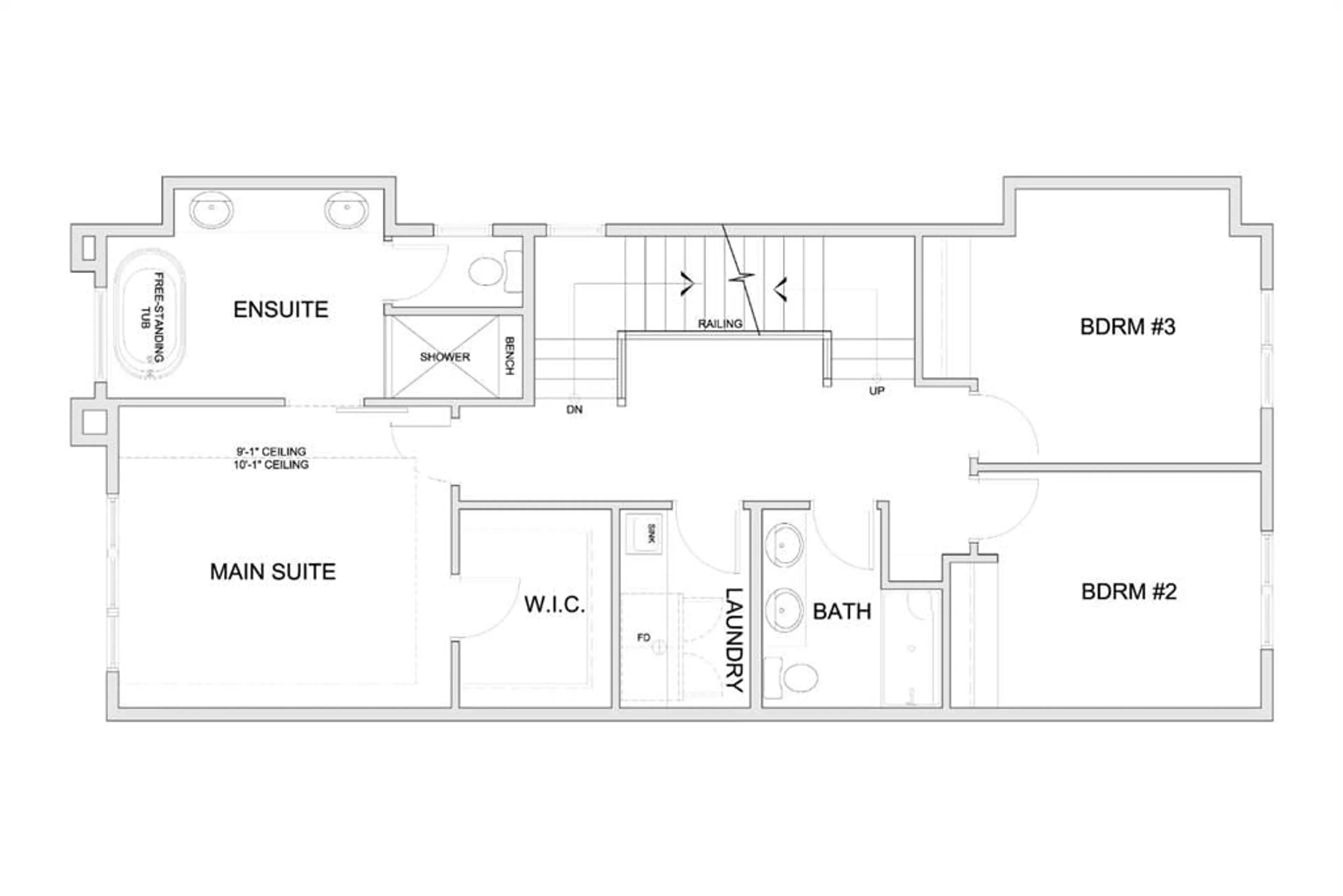
Located in WEST HILLHURST, this modern SEMI-DETACHED NON SUITED infill delivers the kind of layout and design that simply works for inner-city living. Clean architecture, generous windows, and multiple outdoor spaces set the tone and well-suited for daily life near the river, downtown, and some of Calgary’s most established amenities. A defined foyer creates a proper sense of arrival and keeps the main living areas feeling calm and composed. Just off the entry, a POCKET OFFICE with built-ins and glass detailing offers a dedicated work or study space without disrupting the flow. The main floor opens into a dedicated dining area that naturally connects to the kitchen, creating an easy rhythm for daily life. The kitchen anchors the home with a large island featuring bar seating and an integrated sink. The appliance layout is designed for real use, keeping prep and cooking zones efficient and intuitive, with a full-size side-by-side fridge/freezer, gas cooktop, and wall oven. A BUILT-IN PANTRY provides generous storage while maintaining clean sightlines. At the back of the home, the living room feels warm and inviting with a GAS FIREPLACE and expansive patio doors that open to the CONCRETE PATIO, extending the living space outdoors. A discreet powder room and a well-designed MUDROOM with BENCH AND HOOKS complete the main level. Upstairs, the second floor is dedicated to rest and privacy. The primary bedroom is a calm retreat, finished with a TRAY CEILING that adds subtle architectural interest. The ensuite includes a FREESTANDING TUB, dual sinks, and a separate shower with bench seating. Two additional bedrooms are thoughtfully positioned away from the primary and share a full bathroom with dual sinks, and the laundry room is placed right in the middle of the layout for ease. The upper loft level adds a lifestyle layer rarely found in inner-city homes. A spacious loft with a BAR and sink works as a media lounge or entertaining space, while a FLEX ROOM adapts easily as an office or guest room, complete with a private 4-pc ensuite. Outside, a TWO-TIER BALCONY offers an outdoor retreat, creating a private, elevated escape with room to relax or host w/ TV wall and FIREPIT. The fully developed basement continues the theme of flexibility and function. A large rec room is paired with a SECOND WET BAR and an OFFICE OR GYM space adapts easily to your needs. A 5th bedroom with walk-in closet and a full bath makes this level comfortable for guests or extended family. Located in WEST HILLHURST, this home is minutes from the Bow River pathway system, West Hillhurst Community Centre, and Helicopter Park. Nearby schools include West Hillhurst School, Queen Elizabeth School, and Westmount Charter School. Kensington’s shops, cafes, and services along Kensington Rd and 10 S NW are close at hand, with quick access to downtown, Foothills Medical Centre, Alberta Children’s Hospital, and Memorial Dr. A walkable, established inner-city lifestyle with everything within reach.
Property Details
Interior
Features
Main Floor
Living Room
12`8" x 14`10"Kitchen
19`8" x 15`0"Dining Room
12`6" x 11`0"2pc Bathroom
Exterior
Features
Parking
Garage spaces 2
Garage type -
Other parking spaces 0
Total parking spaces 2
Property History
22






