49156 HYW 623, Rural Camrose County, Alberta T4V2N1
Contact us about this property
Highlights
Estimated valueThis is the price Wahi expects this property to sell for.
The calculation is powered by our Instant Home Value Estimate, which uses current market and property price trends to estimate your home’s value with a 90% accuracy rate.Not available
Price/Sqft$85/sqft
Monthly cost
Open Calculator
Description
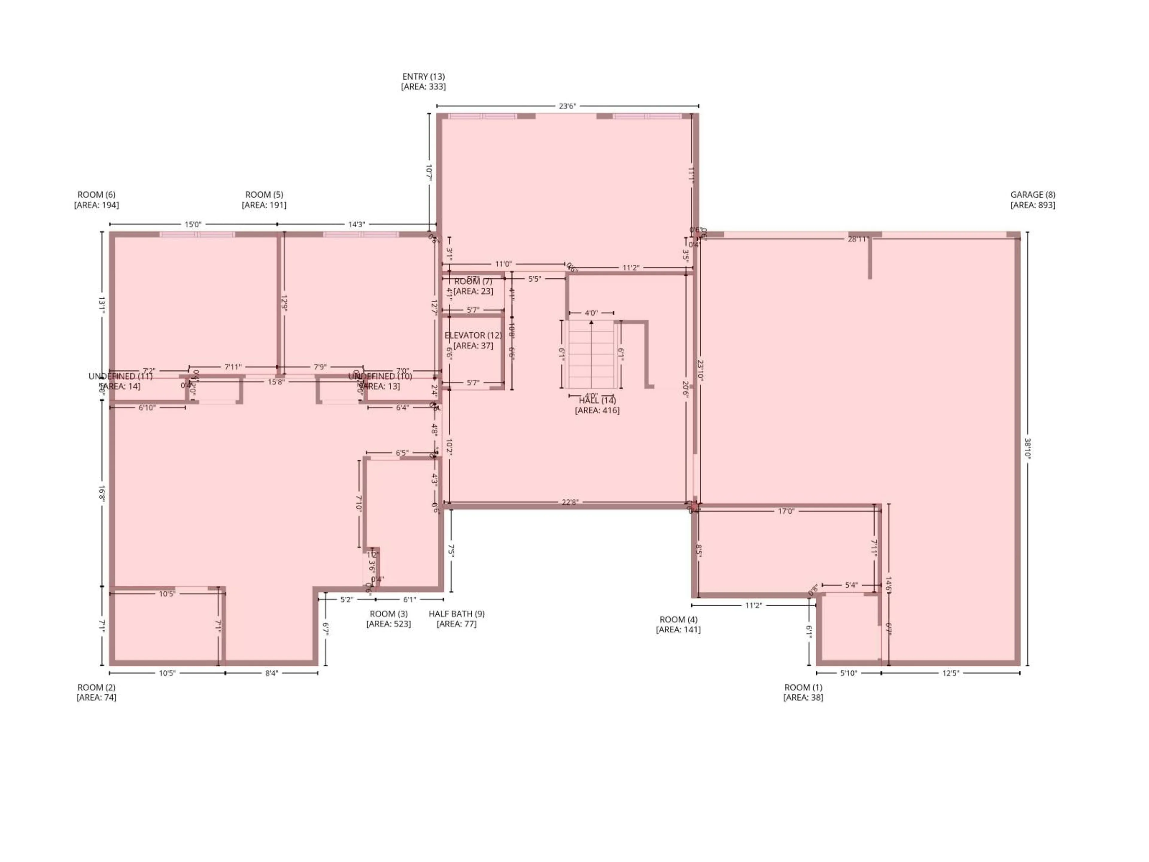
Just over 10 acre parcel, minutes from Camrose and approximately 40 minute drive to South East Edmonton, 20 minutes from Beaumont. All situated 5 minutes from Miquelon Lake Provincial Park entrance. This beautifully treed, pasture / grazing land, including ponds and rolling hills right off highway 623. The fully serviced parcel of land includes a partly-built two-storey home with walkout basement. Two double car garages, and two lower parking stalls. The interior is only framed at this point. This 5000 + sq/ft home has amazing views facing North and South. This home features an elevator, plumbing for in-floor heating, 4 bathrooms, 5 bedrooms. Endless possibilities await you on this large acreage and future home. Bring all offers! Must sell!! (id:39198)
Property Details
Interior
Features
Main level Floor
Living room
Dining room
Kitchen
Den
Property History
28






