Contact us about this property
Highlights
Estimated valueThis is the price Wahi expects this property to sell for.
The calculation is powered by our Instant Home Value Estimate, which uses current market and property price trends to estimate your home’s value with a 90% accuracy rate.Not available
Price/Sqft$362/sqft
Monthly cost
Open Calculator
Description
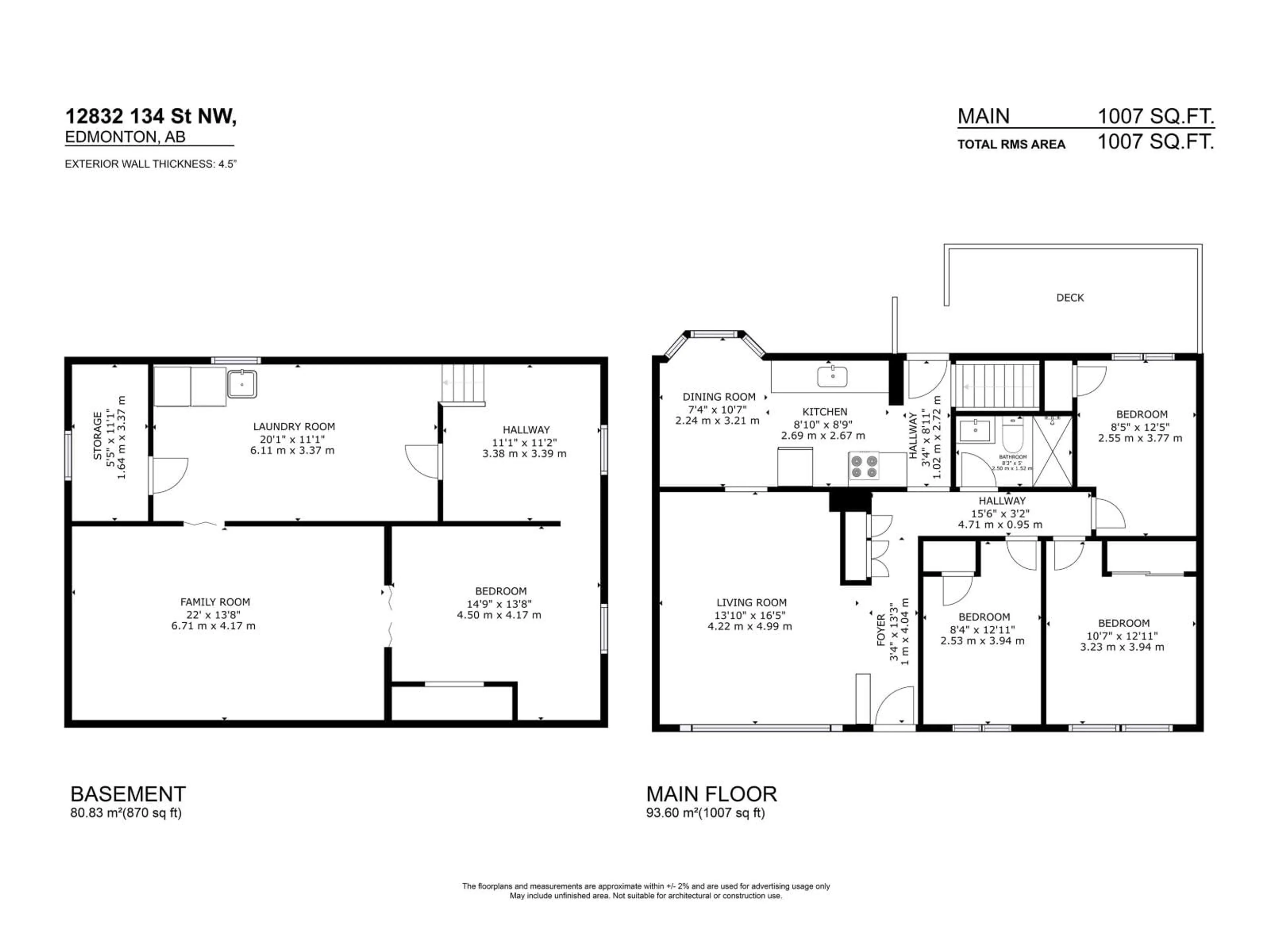
This well cared for, solid bungalow in the Athlone family community offers excellent curb appeal and a long list of important maintenance updates already completed for you. Athlone is known as one of Edmonton’s most affordable and welcoming neighbourhoods, with easy access to schools, parks, shopping, transit, and the popular community amenities that make it ideal for first time buyers. The home features hardwood in good condition throughout much of the main floor, along with a bright kitchen and a sunny west facing dining bay that overlooks a mature yard on a generous fifty by one hundred twenty four foot lot complete with an apple tree, deck, and an impressive oversized twenty four by twenty four foot double garage with a large concrete parking pad. Significant improvements over the years include a Lennox high efficiency furnace, upgraded attic insulation, a newer hot water tank, exterior vinyl siding on the front, a replaced sewer line, a new one hundred amp electrical panel, updated shingles and more! (id:39198)
Property Details
Interior
Features
Main level Floor
Living room
4.93 x 4.18Dining room
3.2 x 2.55Kitchen
2.65 x 5.25Primary Bedroom
3.87 x 3.13Exterior
Parking
Garage spaces -
Garage type -
Total parking spaces 4
Property History
59





