Contact us about this property
Highlights
Estimated valueThis is the price Wahi expects this property to sell for.
The calculation is powered by our Instant Home Value Estimate, which uses current market and property price trends to estimate your home’s value with a 90% accuracy rate.Not available
Price/Sqft$229/sqft
Monthly cost
Open Calculator
Description
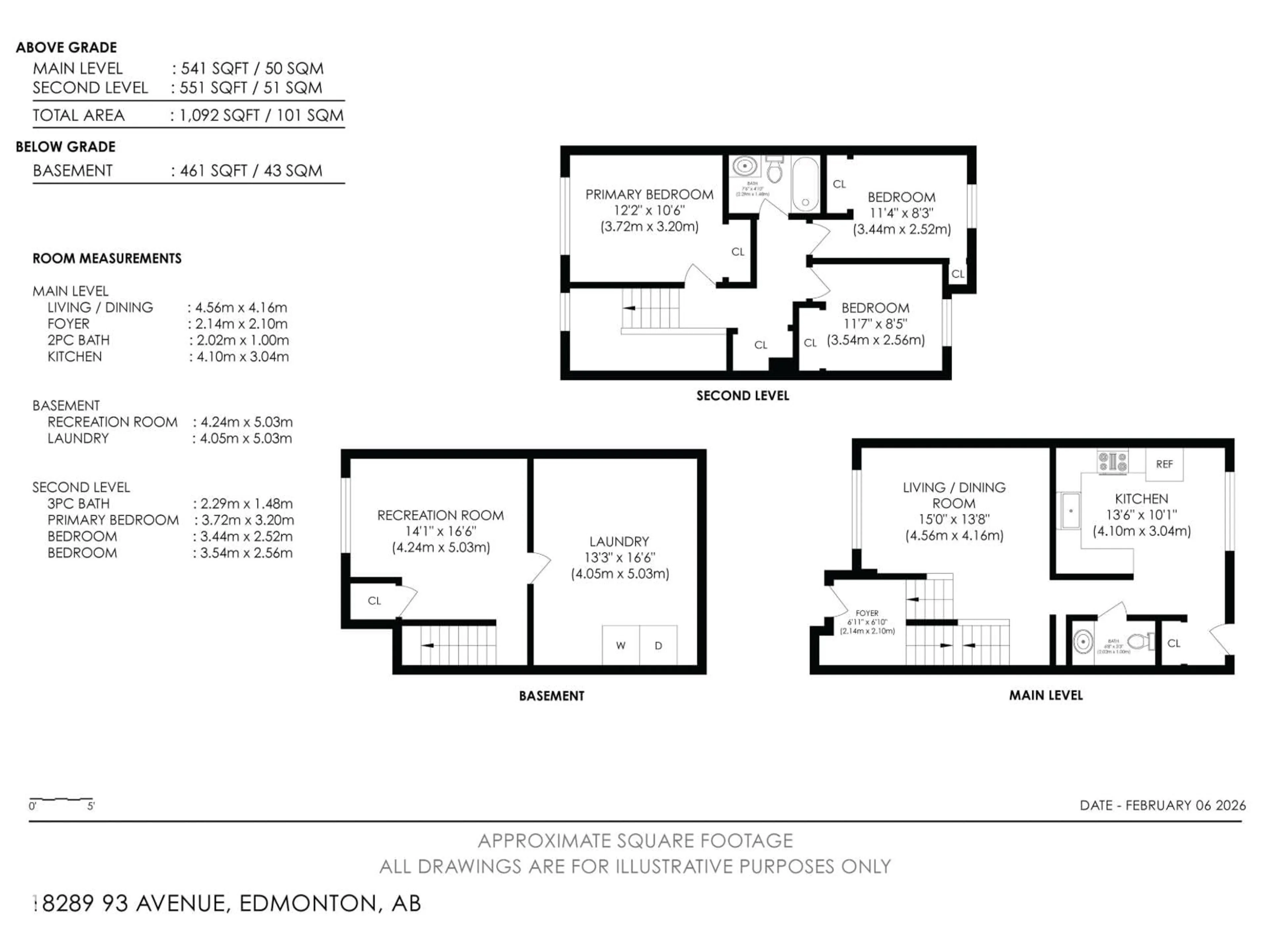
Move-in ready townhouse condo located in a well-maintained, family-friendly complex with low condo fees! This home features a fenced yard that faces the interior courtyard, offering a great outdoor space. The kitchen is complemented by modern cabinetry and granite countertops, creating a clean and contemporary feel. The living room offers natural light making it bright. Upstairs offers three bedrooms and a full bathroom, while the main level includes a convenient half bath. The basement adds valuable living space with a cozy family room, along with ample closets and storage throughout. Ideally situated close to schools, shopping, and everyday amenities. ALL this home needs is YOU! (id:39198)
Property Details
Interior
Features
Main level Floor
Living room
Kitchen
Condo Details
Inclusions
Property History
52




