NW - 10226 154 ST, Edmonton, Alberta T5P2H4
Contact us about this property
Highlights
Estimated valueThis is the price Wahi expects this property to sell for.
The calculation is powered by our Instant Home Value Estimate, which uses current market and property price trends to estimate your home’s value with a 90% accuracy rate.Not available
Price/Sqft$426/sqft
Monthly cost
Open Calculator
Description
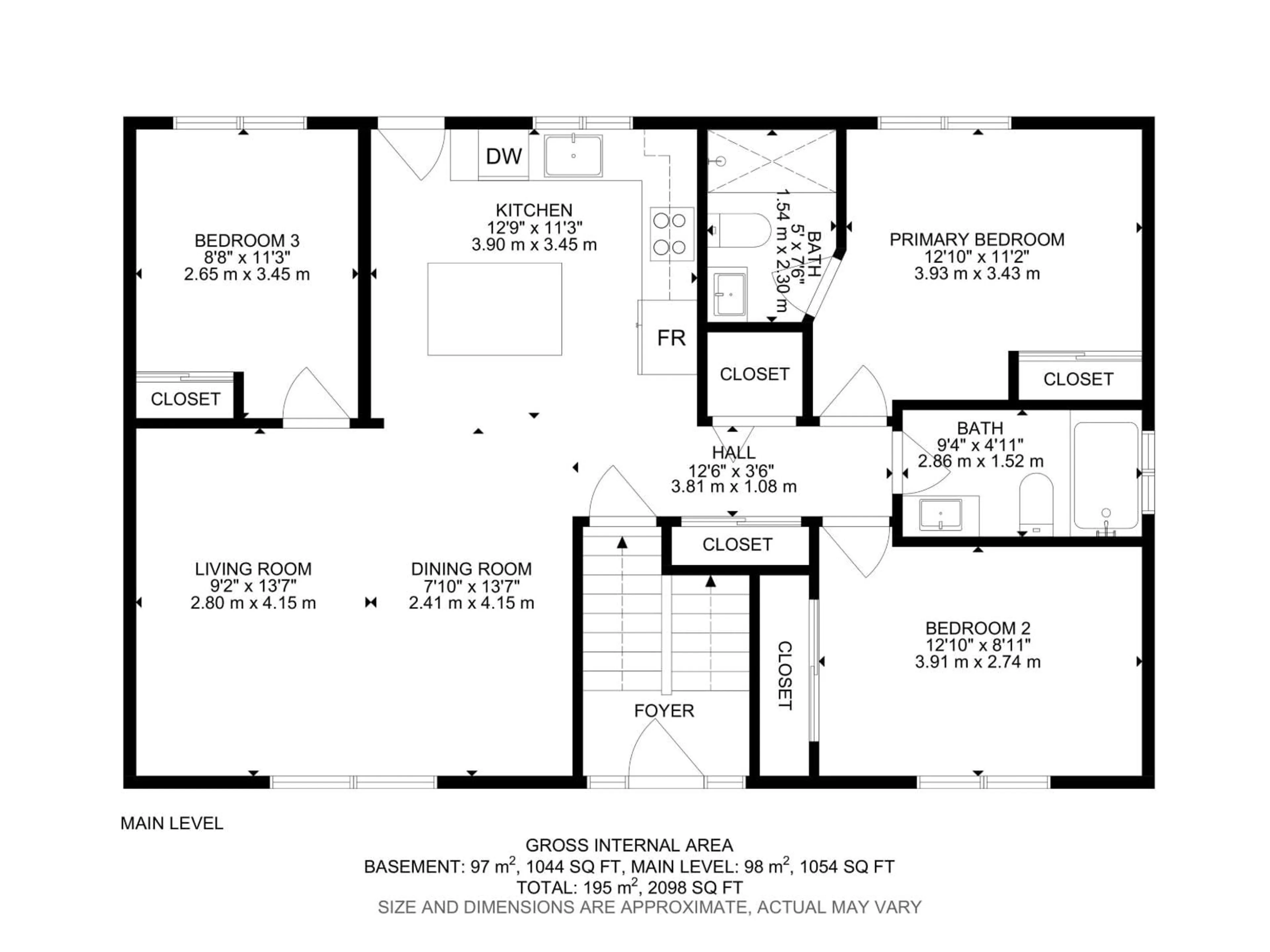
Fully renovated bi-level on a massive 50 x 147 ft lot with excellent future infill potential, located in the mature community of Canora. This home features a complete interior renovation with brand new kitchens, bathrooms, new flooring, updated lighting, and modern finishes throughout. Prior to the current renovation, key upgrades including the roof, hot water tank(2022), high efficiency furnace(2023), and windows had already been completed in recent years. The upper level offers 3 bedrooms, a brand new kitchen, and 2 bathrooms including a private ensuite. The lower level features a separate entrance, 3 additional bedrooms, a second kitchen, and a full bathroom, providing flexible living or rental arrangements. Ideally situated close to downtown, public transit, schools, shopping, and all major amenities, this property is an excellent long-term holding opportunity with strong future redevelopment potential. (id:39198)
Property Details
Interior
Features
Basement Floor
Bedroom 4
3.75 x 2.91Second Kitchen
2.72 x 3.37Bedroom 5
3.77 x 3.39Bedroom 6
2.48 x 4.12Property History
38






