NW - 10916 & 10918 154 STREET, Edmonton, Alberta T5P2J9
Contact us about this property
Highlights
Estimated valueThis is the price Wahi expects this property to sell for.
The calculation is powered by our Instant Home Value Estimate, which uses current market and property price trends to estimate your home’s value with a 90% accuracy rate.Not available
Price/Sqft$442/sqft
Monthly cost
Open Calculator
Description
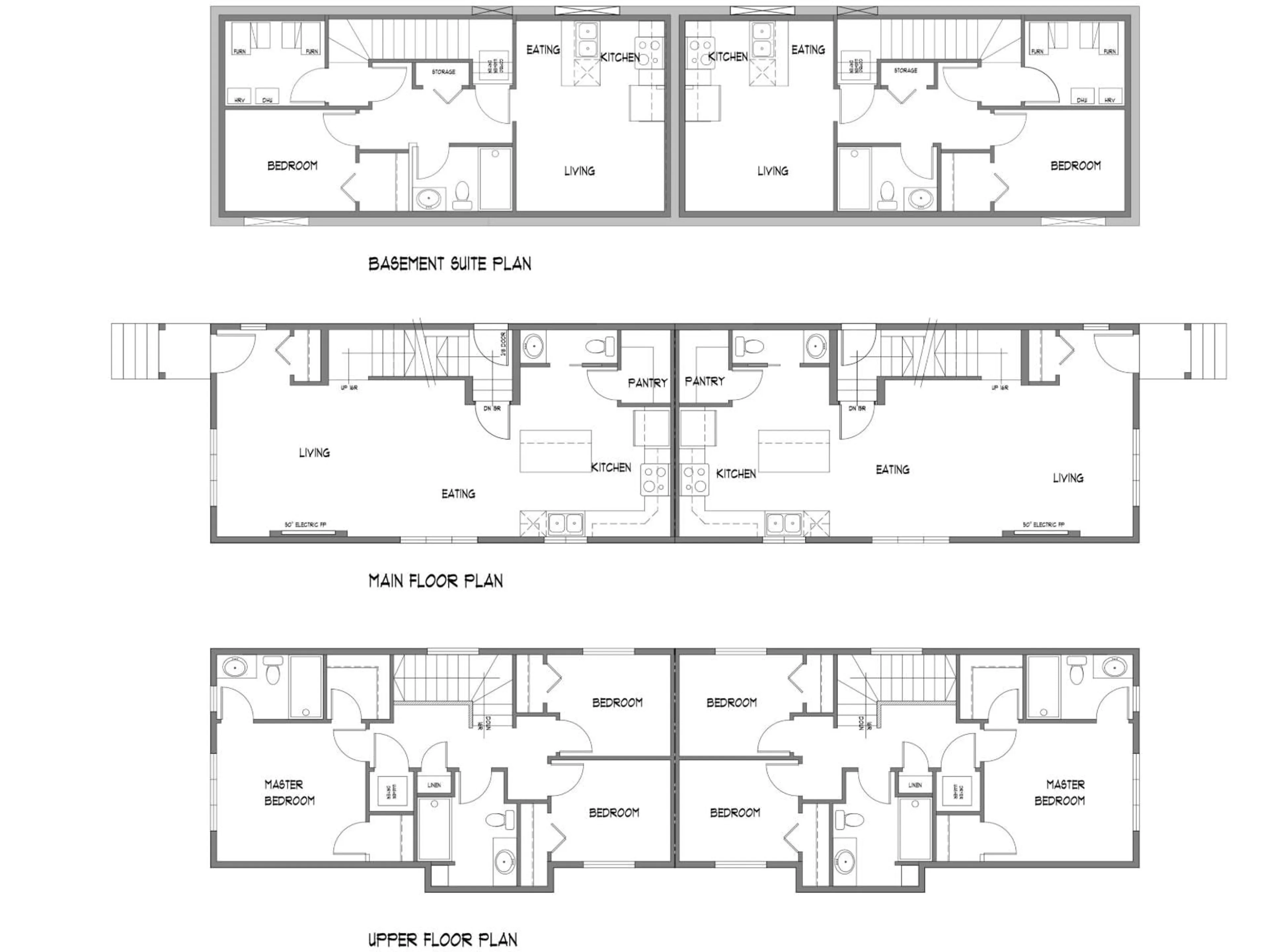
Purpose-built with quality, durability, and long term tenants in mind, this front/back duplex is located in the desirable, family-friendly community of High Park. There are 4 units, including legal basement suites, each with their own separate utility meter for convenience. Offering 8 bedrooms, 6 full baths, and 2 half baths across a layout that prioritizes privacy, function, and livability. Both the main floor and basement suites emphasize quality of life with premium finishes and functional layouts, including quartz countertops, spacious kitchens with islands, and abundant windows that bring natural light into all four suites. The main floor units feature their own fully landscaped and fenced low-maintenance yards, while a detached double garage plus an oversized parking pad provide ample parking. Ideally situated near parks, transit, amenities, walking distance to schools and only a 10 minute drive to West Edmonton Mall, this is a perfect turnkey investment in a central Edmonton location. (id:39198)
Property Details
Interior
Features
Main level Floor
Kitchen
Living room
Dining room
Exterior
Parking
Garage spaces -
Garage type -
Total parking spaces 4
Property History
3




