NW - 11327 122 ST, Edmonton, Alberta T5M0B6
Contact us about this property
Highlights
Estimated valueThis is the price Wahi expects this property to sell for.
The calculation is powered by our Instant Home Value Estimate, which uses current market and property price trends to estimate your home’s value with a 90% accuracy rate.Not available
Price/Sqft$501/sqft
Monthly cost
Open Calculator
Description
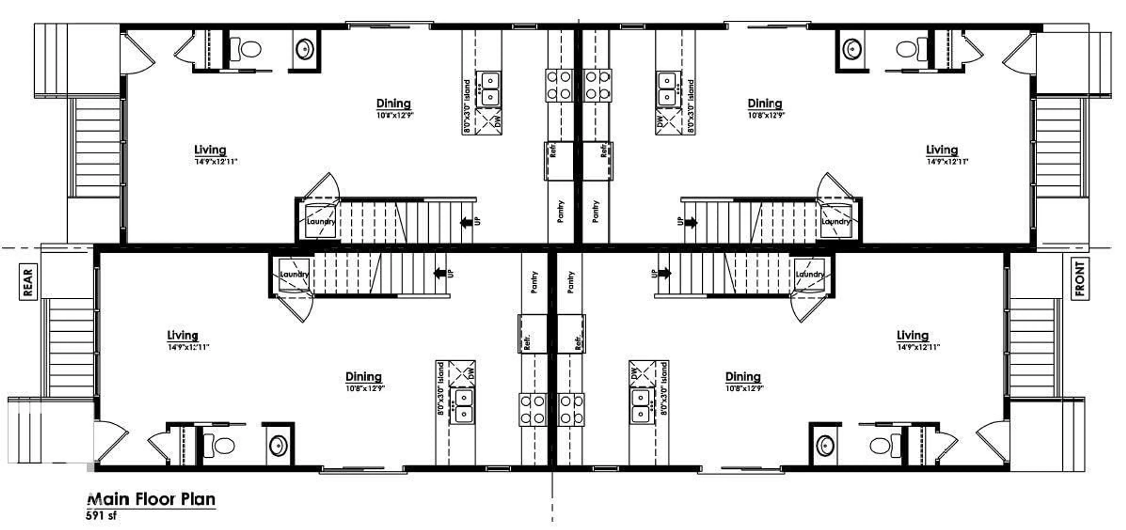
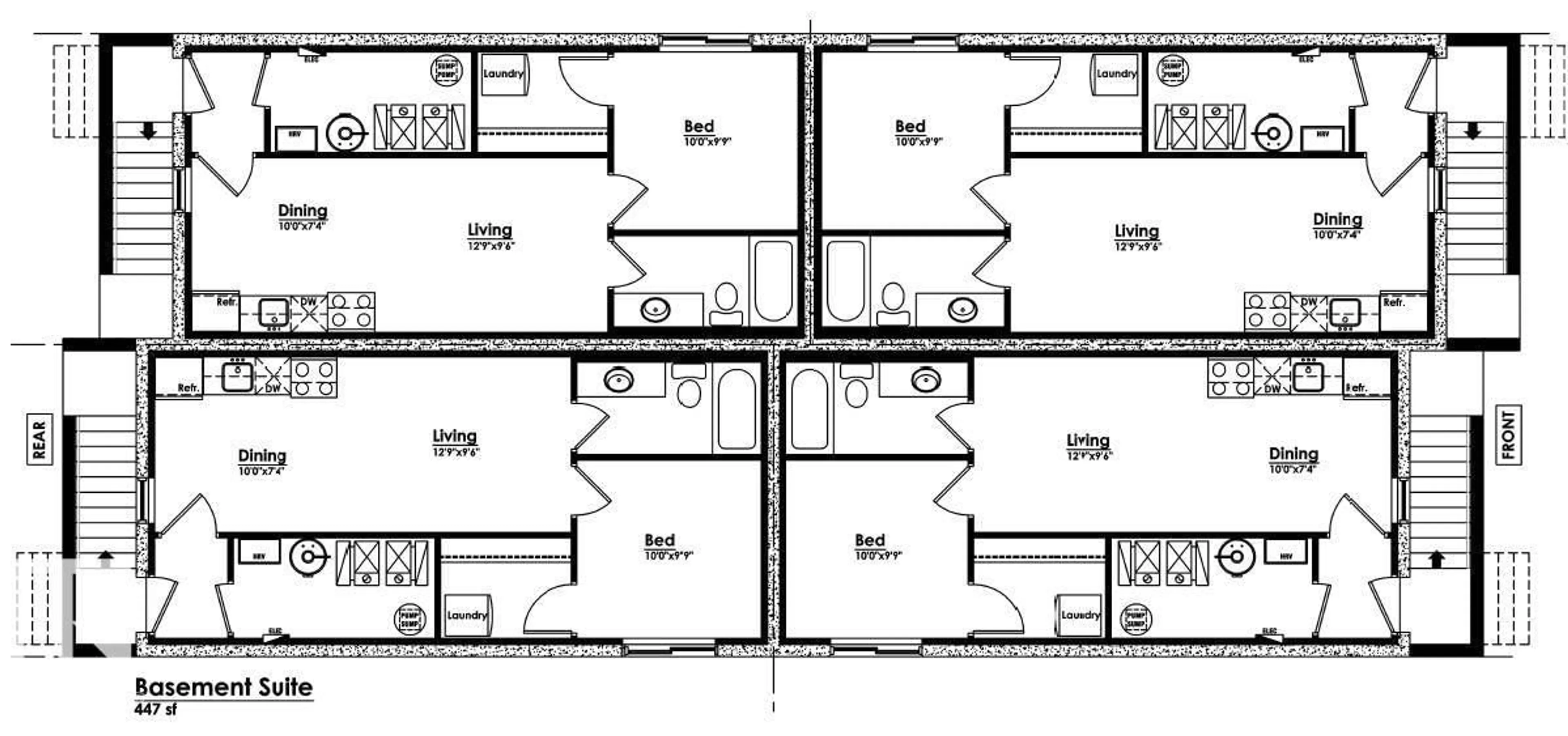
Quality built 8 plex by Varsity Homes Ltd. Amazing location backing on to green space with city Skyline views . 4 fully finished walkout basement units, 3 bedroom upper floor units, 8 separate meters for ALL utilities ( gas, electric, water) and 8 hot water on demand tanks are some of the many upgrades. Upgraded windows and finishings throughout. Protect your investment by buying a place where renters want to live long term regardless of occupancy rates. Location, Layout, quality finishing and design! (id:39198)
Property Details
Interior
Features
Upper Level Floor
Primary Bedroom
Bedroom 2
Bedroom 3
Property History
10






