NW - 7305B 155 ST, Edmonton, Alberta T5R1V4
Contact us about this property
Highlights
Estimated valueThis is the price Wahi expects this property to sell for.
The calculation is powered by our Instant Home Value Estimate, which uses current market and property price trends to estimate your home’s value with a 90% accuracy rate.Not available
Price/Sqft$550/sqft
Monthly cost
Open Calculator
Description
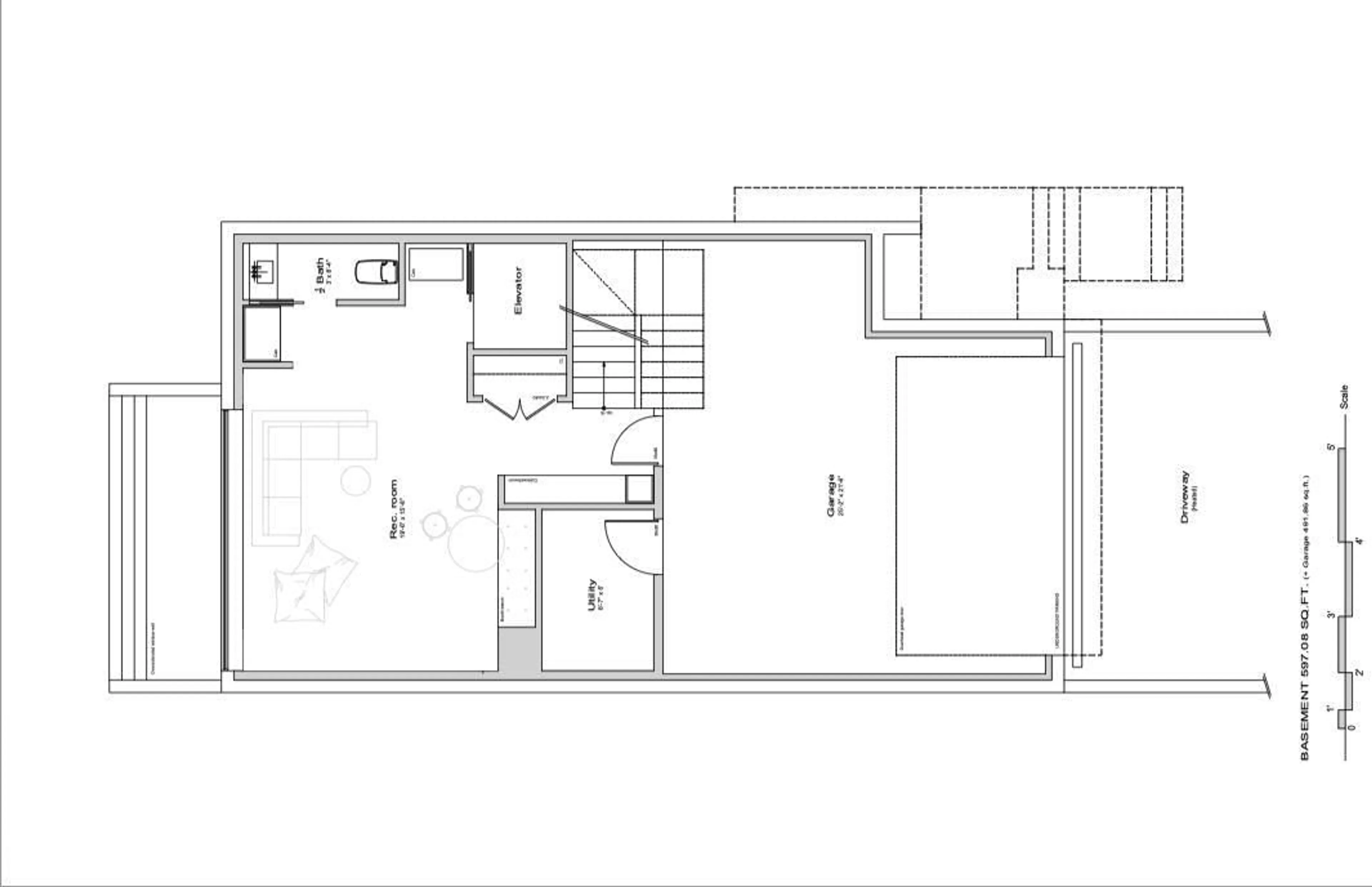
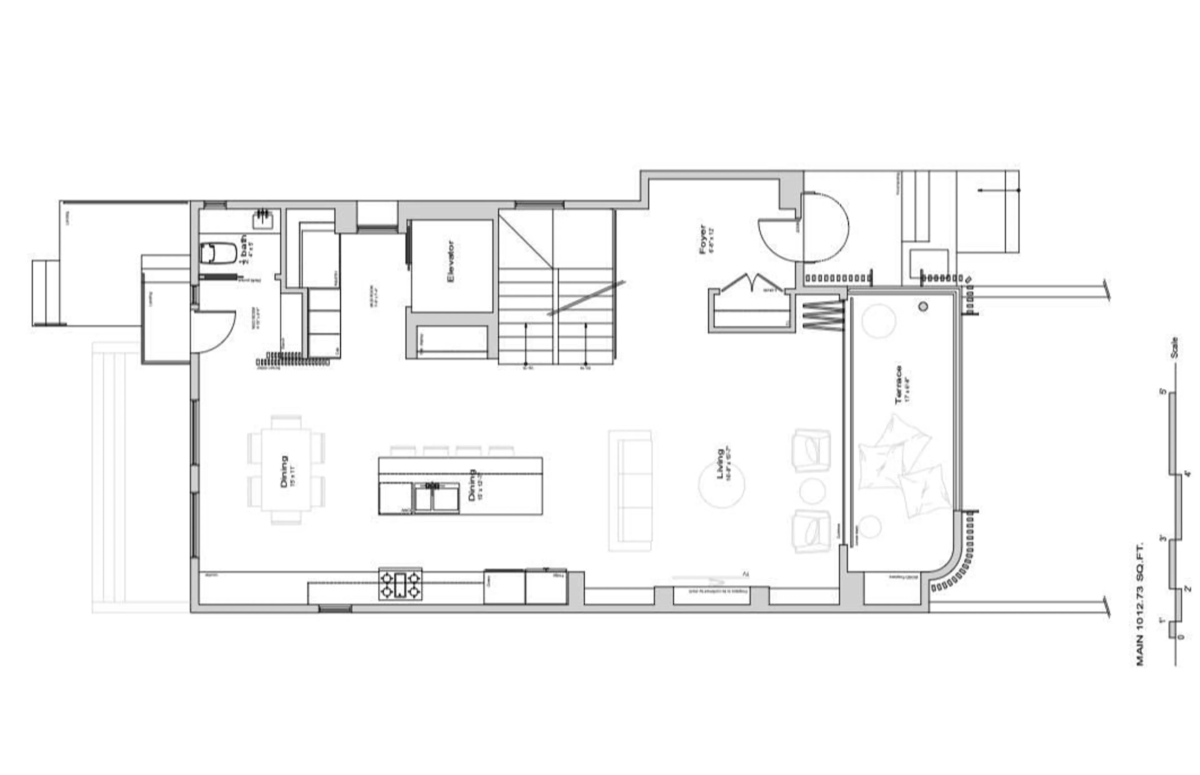
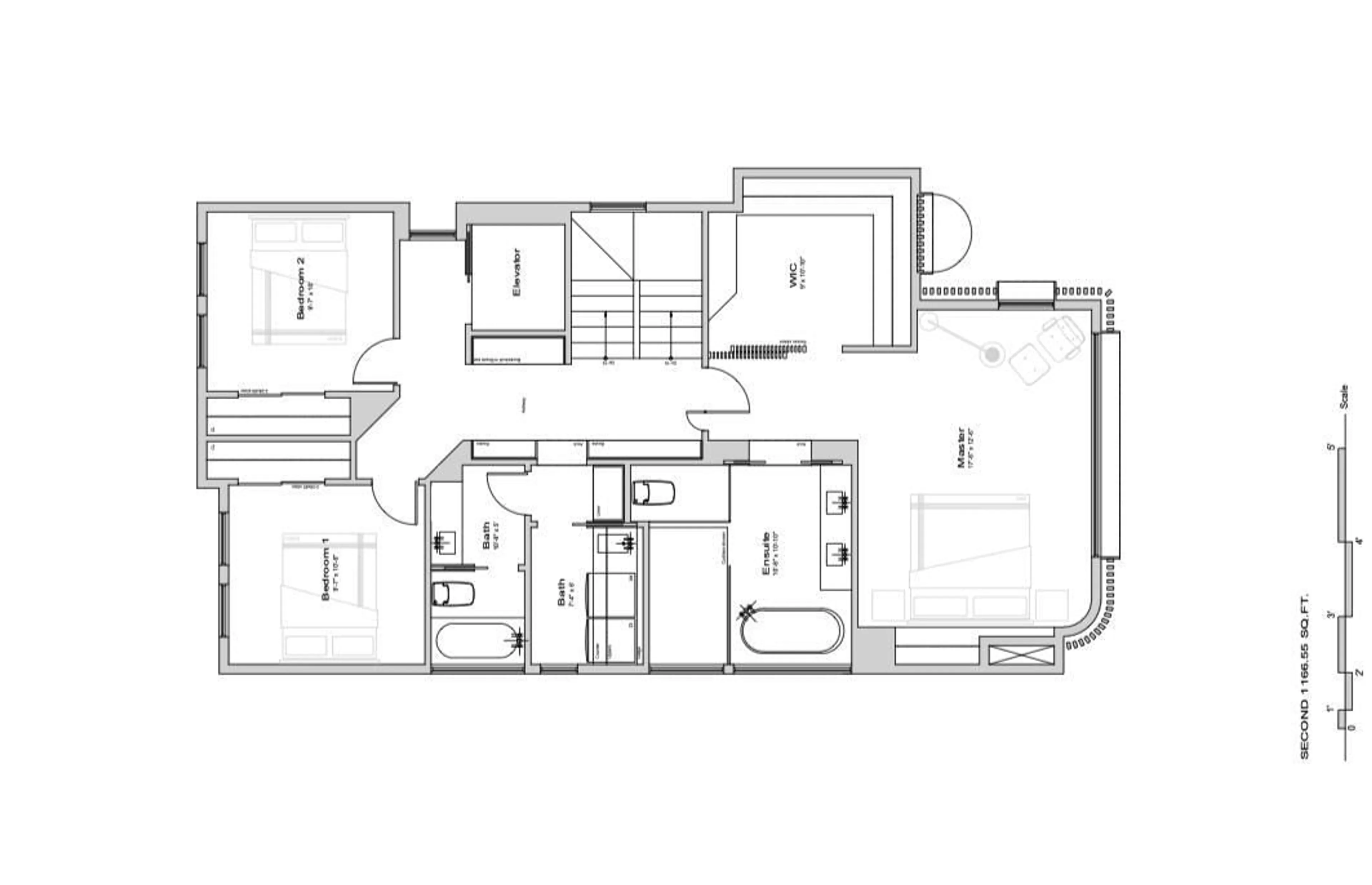
****MARCH 2026 Possession****LUXURY LIVING in one Of Edmontons best neighbourhoods, RIO TERRACE. This STUNNING 2.5 Story Home, features a DRIVE DOWN DOUBLE Garage, Elevated Front Deck and a ROOF TOP PATIO with South Facing Views of the River Valley!! Premium Exterior Finishes of Brick & Acrylic Stucco. Floor-plans feature 3 Bedrooms on the 2nd level, Optional 4th bedroom/Flexroom in the loft with Ensuite. There are 5 total bathrooms (3 Full 2 half), Lounge Area on the third level w/ access to the Roof Top Terrace. Basement will be Fully Finished with a Family Room, 2-PC bathroom. Main level has a Center Kitchen, Dining area overlooking the back Yard & Front living room with access to the Sunny South-facing Balcony (Gas Fireplace Roughed-in). Each home will be complete with Elevator from Basement up to the third floor. THESE HOMES WILL BE STUNNING! (Estimated Completion Late Mar 2026). (id:39198)
Property Details
Interior
Features
Main level Floor
Living room
15'7 x 16'8Dining room
11' x 15'Kitchen
12'7" x 15'Exterior
Parking
Garage spaces -
Garage type -
Total parking spaces 4
Property History
6






