8 days on Market

11142 18 AV, Edmonton, Alberta T6J4T9

Condo
3
1
~1119 sqft
$249,000
Get pre-qualifiedPowered by nesto
Condo
3
1
~1119 sqft

Contact us about this property

Call

Highlights

Property Estimate

Days on market8 days

Estimated valueNot available

Price/Sqft$222/sqft

Monthly cost

Open Calculator

Description

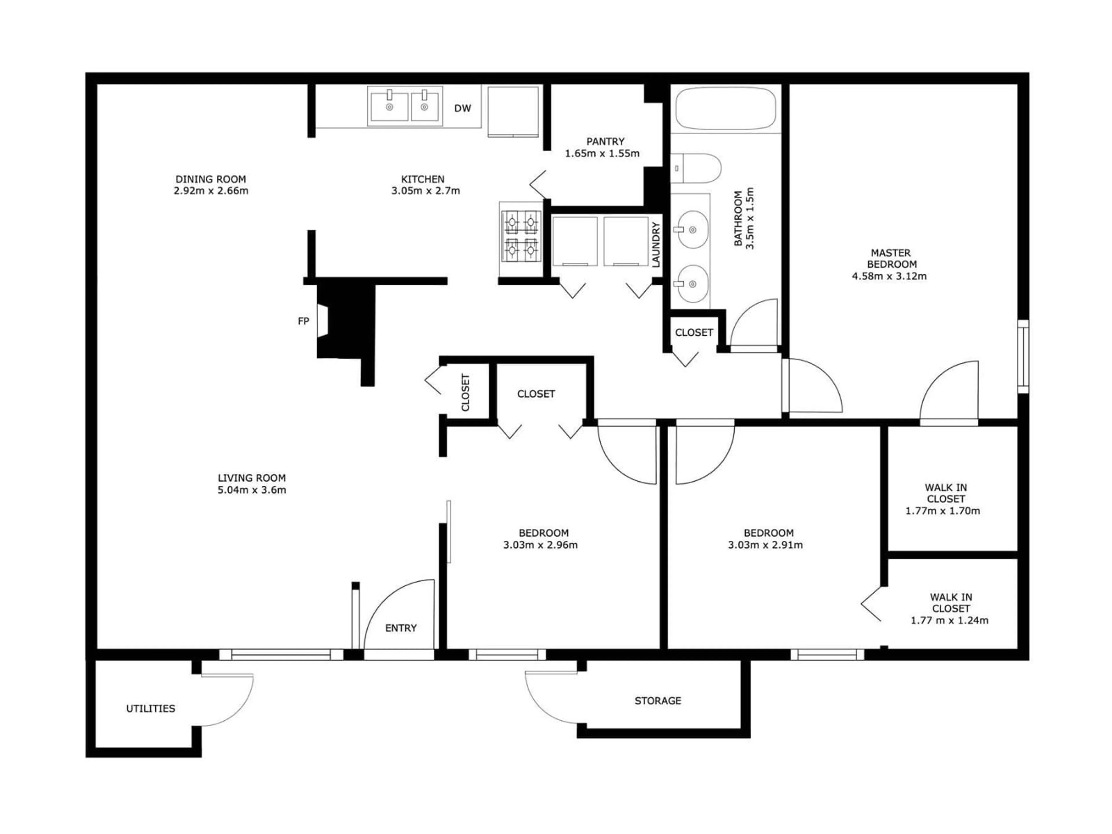
Amazing opportunity to own a 3 bedroom bungalow style townhouse with everything on one level so there are no stairs and no unit above you so its super quiet. Perfect for first time home buyers, downsizers, or investors looking for a functional and accessible layout. This well maintained home offers a bright and spacious living area, practical kitchen, and three good sized bedrooms. Recent updates provide peace of mind, including newer roof, furnace, and hot water tank, along with updated appliances, fridge, stove, washer, and dryer. Enjoy the convenience of corner gas fireplace, in-suite laundry and parking by the front door. Ideally located close to the Twin Brooks Ravine yet just minutes to shopping, major routes & LRT making commuting simple. A fantastic opportunity to own an affordable move in ready home in a desirable southside location with strong long term potential. (id:39198)


Property Details

StyleRow / Townhouse
View-
Age of property1978
SqFt~1119 SqFt
Lot Size-
Parking Spaces-
MLS ®NumberE4482283
Community NameSkyrattler
Data SourceCREA
Listing byRE/MAX Excellence

Features

Heating: Forced air

Main level Floor

Living room

Dining room

Laundry room

Storage


1Story
Amenities

Vinyl Windows

Inclusions
Hydro
Water
Parking
Cable
Heat

Property History

Apr 15, 2026
ListedActive
$249,000
8 days on market
history photo preview37
Listing by crea®
Property listed by RE/MAX Excellence, Brokerage
Agent Banner Image
Interested in this property?Get in touch to get the inside scoop.

Population and Demographics

Overview

Total population 964
Average household income $114,665

Age (%)

0 to 19
19%
20 to 34
21%
35 to 49
20%
50 to 64
18%
65 and plus
21%

Household composition (%)

Single family
53%
Single person
43%
Multi person
4%
Multi family
0%

Mother tongue (%)

English
78%
Mandarin
4%
Yue (Cantonese)
3%
Korean
2%
Arabic
2%
Others
2%
Spanish
2%
Tagalog (Pilipino, Filipino)
2%
German
1%

House tenancy (%)

Owners
61%
Renters
39%

What’s nearby?Essentials within 5 km

Local Logic

Transportation Scores

Estimated Budget

Powered by:
The trademarks REALTOR®, REALTORS®, and the REALTOR® logo are controlled by The Canadian Real Estate Association (CREA) and identify real estate professionals who are members of CREA. The trademarks MLS®, Multiple Listing Service® and the associated logos are owned by CREA and identify the quality of services provided by real estate professionals who are members of CREA. Used under license.