6301 58 St, Ponoka, Alberta T4J 0C4
Contact us about this property
Highlights
Estimated valueThis is the price Wahi expects this property to sell for.
The calculation is powered by our Instant Home Value Estimate, which uses current market and property price trends to estimate your home’s value with a 90% accuracy rate.Not available
Price/Sqft$290/sqft
Monthly cost
Open Calculator
Description
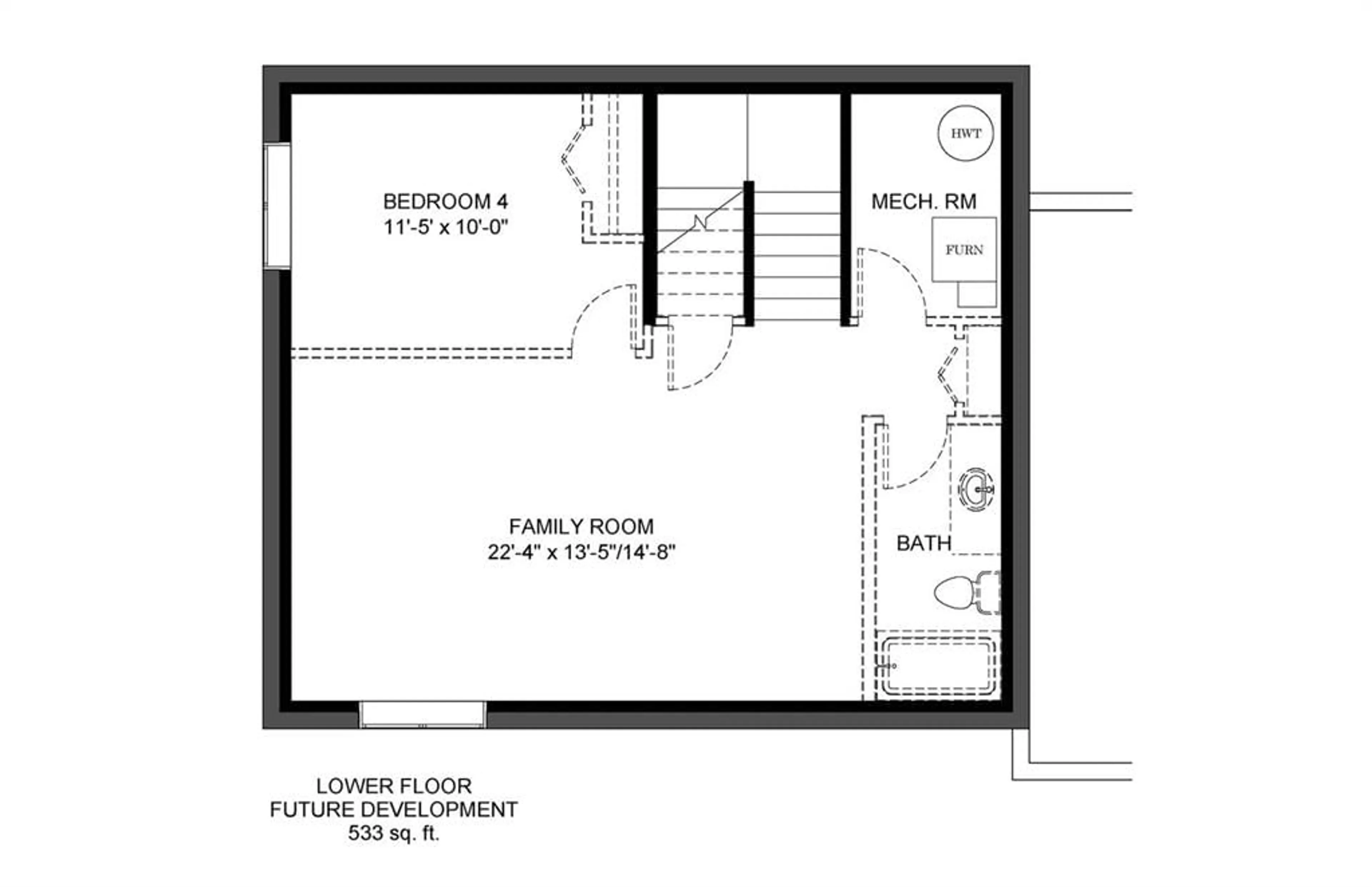
Only steps from a huge park and playground reserve, and within walking distance to the high school, this brand new Laebon built home in beautiful Meadowlark Estates is available for immediate possession! Designed with family in mind, this spacious 1896 sq ft floor plan offers a wide open living space with vinyl plank flooring, large windows, and modern finishes throughout. A nicely appointed kitchen offers raised cabinetry, stainless steel appliances, quartz countertops, a large island with an eating bar, and a walk in pantry. The living area is bright and spacious, and the adjacent dining area offers access to the back deck through large sliding patio doors. Upstairs you'll find a spacious bonus room, two nicely sized kids rooms, a shared 4 pce bathroom, and conveniently located laundry. The large primary suite offers a 4 pce ensuite with a large soaker tub, walk in shower, private water closet, and a spacious walk in closet. The attached garage is insulated, drywalled, and taped and has a floor sump to keep your floor dry in the winter. If you need more space, the builder can complete the basement development for you, and allowances can also be provided for a washer and dryer to make this a completely move in ready package. A poured concrete front driveway, front sod, and rear topsoil to grade will be completed by the builder as weather permits. 1 year builder warranty and 10 year Alberta New Home Warranty are included. Taxes have yet to be assessed.
Property Details
Interior
Features
Main Floor
Living Room
13`8" x 14`1"Dining Room
11`4" x 9`0"Kitchen
11`4" x 12`5"2pc Bathroom
5`0" x 5`0"Exterior
Features
Parking
Garage spaces 2
Garage type -
Other parking spaces 2
Total parking spaces 4
Property History
36






