6303 58 St, Ponoka, Alberta T4J 0C4
Contact us about this property
Highlights
Estimated valueThis is the price Wahi expects this property to sell for.
The calculation is powered by our Instant Home Value Estimate, which uses current market and property price trends to estimate your home’s value with a 90% accuracy rate.Not available
Price/Sqft$310/sqft
Monthly cost
Open Calculator
Description
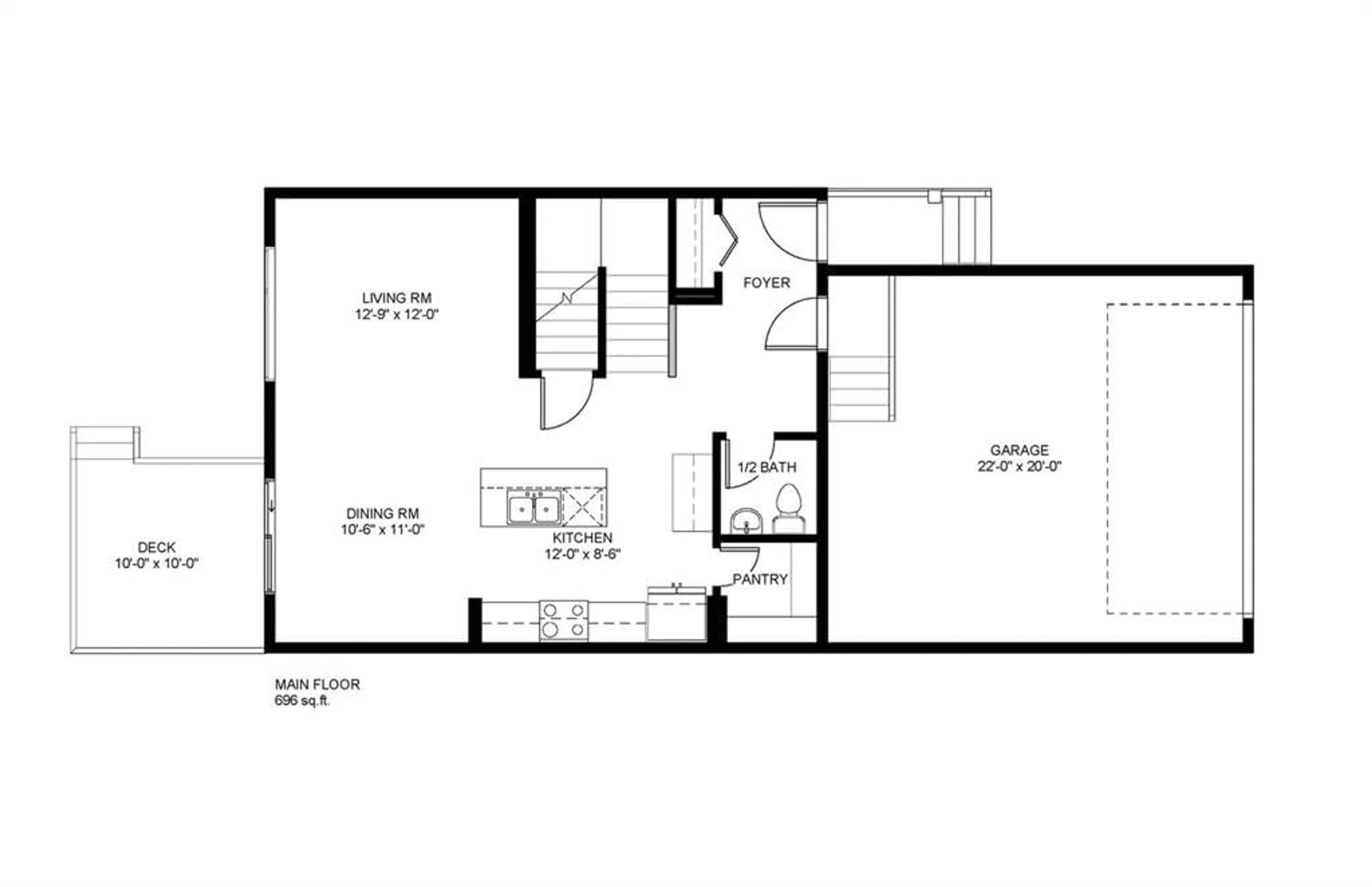
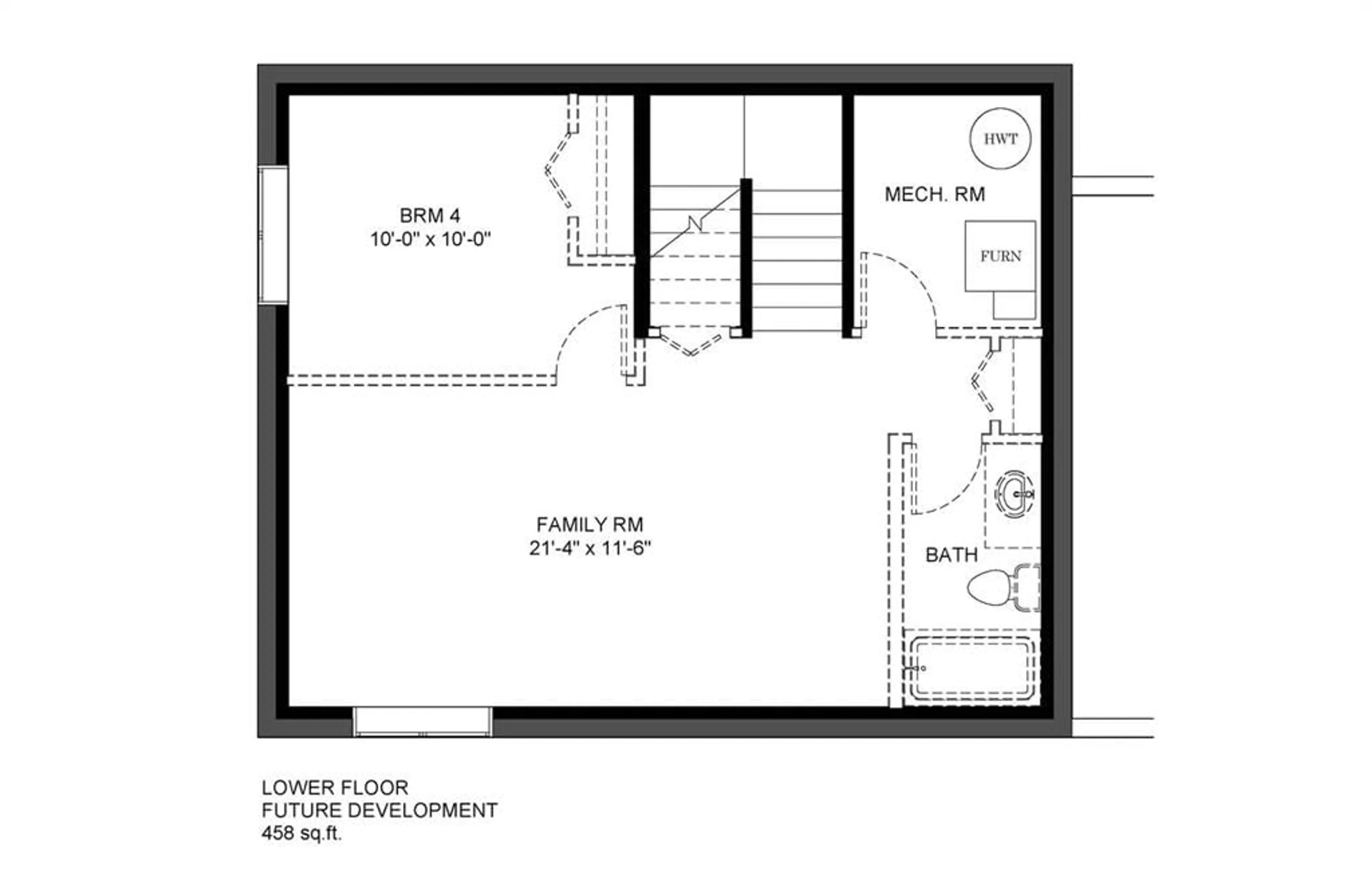
This brand new Laebon built home in beautiful Meadowlark Estates could be your new home! Situated only steps from a playground reserve and a huge park, and within walking distance to the high school, this home is the perfect place for a growing family. Offering 1707 square feet, this best selling 2 storey floorplan offers a wide open main floor layout, an attached double garage, and a large second floor bonus room. The kitchen is well appointed with two toned raised cabinetry, stainless steel appliances, quartz countertops, a large island with eating bar, and a large walk in pantry. The living area is spacious and bright, and the adjacent dining area offers access to the back deck through large sliding patio doors. Upstairs you'll find the spacious master bedroom suite with a large walk-in closet, and your own private 4 pce ensuite. Two kids rooms share a 4 pce bathroom, and you'll appreciate the convenience of upper floor laundry close to all the bedrooms. You'll love ending your day in the huge bonus room, which makes the perfect space for family movie nights or a relaxing space to wind down. The attached garage is insulated, drywalled, and taped. If you need more space, the builder can complete the basement development for you, and allowances can also be provided for blinds, landscaping, and a washer and dryer to make this a completely move in ready package. Poured concrete front driveway, front sod, and rear topsoil to grade are included in the price and will be completed as weather permits. 1 year builder warranty and 10 year Alberta New Home Warranty are included. Taxes have yet to be assessed. This home has an estimated completion date of mid April 2026. Photos and renderings are examples from a similar home built previously and do not necessarily reflect the exact finishes and colours used in this home.
Property Details
Interior
Features
Main Floor
Living Room
12`9" x 12`0"Dining Room
10`6" x 11`0"Kitchen
12`0" x 8`6"2pc Bathroom
Exterior
Features
Parking
Garage spaces 2
Garage type -
Other parking spaces 2
Total parking spaces 4
Property History
25






