38 Canoe Sq, Airdrie, Alberta T4B2N5
Contact us about this property
Highlights
Estimated valueThis is the price Wahi expects this property to sell for.
The calculation is powered by our Instant Home Value Estimate, which uses current market and property price trends to estimate your home’s value with a 90% accuracy rate.Not available
Price/Sqft$370/sqft
Monthly cost
Open Calculator
Description
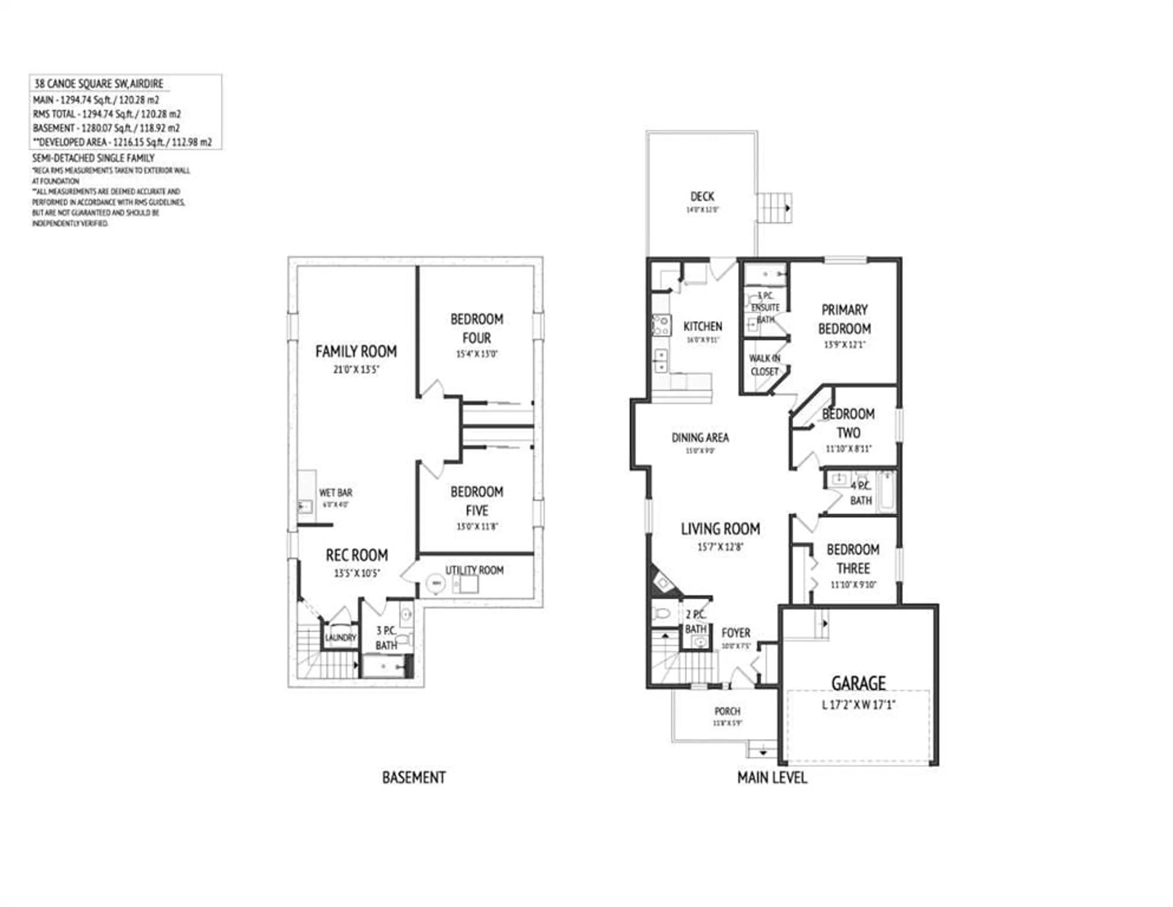
Beautifully updated and move-in ready, this fully finished bungalow offers nearly 2,500 sq ft of developed living space, modern updates throughout, and the added bonus of NO CONDO FEES. Welcome to 38 Canoe Square SW in Airdrie, where the bright main level features VAULTED ceilings and new luxury vinyl plank flooring throughout the entire home with a 25-year warranty. The recently RENOVATED KITCHEN offers modern cabinetry, stainless steel appliances, and a brand new oven, while the dining area opens into the inviting living room featuring a COZY GAS FIREPLACE. The main floor includes three bedrooms and 2.5 bathrooms, including a primary suite with walk-in closet and private 3-piece ensuite. Two additional bedrooms are located nearby with a full bathroom between them, plus a convenient 2-piece powder room near the front entry for guests. The fully developed basement provides exceptional additional living space, featuring a large family room with a WET BAR, two spacious finished rooms ideal for a home office, gym, hobby room, or guest space (windows may not meet current egress requirements for a bedroom), and a beautifully finished bathroom with a MODERN TILED SHOWER. The laundry area includes a new washer/dryer combo unit. Outside you’ll find a PRIVATE FENCED backyard with a deck, perfect for relaxing or entertaining. The double front attached garage connects to the neighboring property only at the garage wall, meaning the living spaces are completely separate. Ideally located close to schools, shopping, restaurants, and everyday amenities, this home offers outstanding value in an established Airdrie community.
Property Details
Interior
Features
Main Floor
Living Room
15`7" x 12`8"Kitchen
16`0" x 9`11"Dining Room
15`0" x 9`0"Foyer
10`0" x 7`5"Exterior
Features
Parking
Garage spaces 2
Garage type -
Other parking spaces 2
Total parking spaces 4
Property History
35






