1204 KNOCKAN PLACE, Saanich, British Columbia V8Z7L5
Contact us about this property
Highlights
Estimated valueThis is the price Wahi expects this property to sell for.
The calculation is powered by our Instant Home Value Estimate, which uses current market and property price trends to estimate your home’s value with a 90% accuracy rate.Not available
Price/Sqft$428/sqft
Monthly cost
Open Calculator
Description
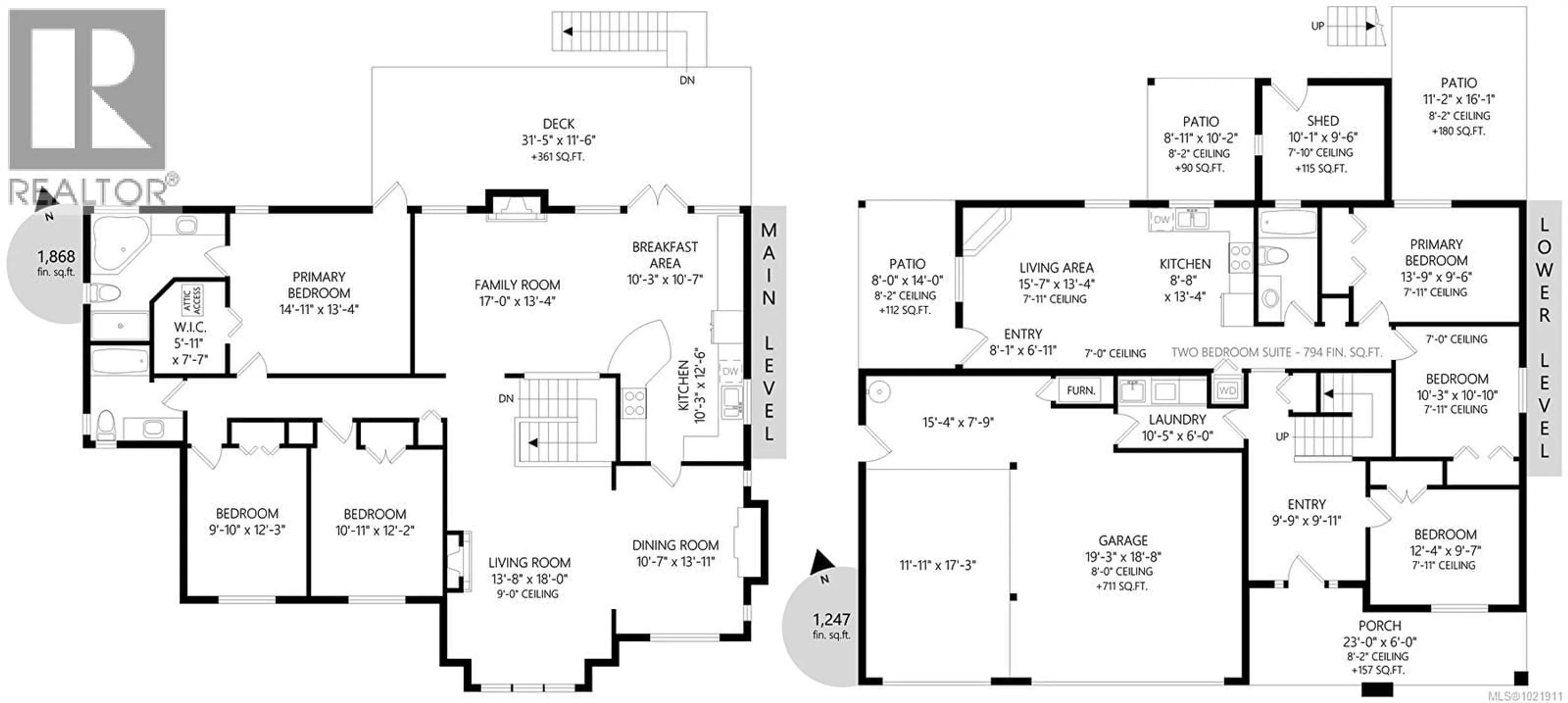
Welcome to the private and sought-after Knockan Hill community! This beautifully maintained 6-bedroom, 3-bathroom home offers a rare blend of space, elegance, and versatility, perfect for families or investors. The main home features a triple-car garage with tons of parking and high-end finishings throughout. On the lower level, you’ll find a spacious entry, a versatile bedroom/office, and a large laundry room. Upstairs, light pours into the formal family room with a cozy gas fireplace and south-facing windows. A separate dining room also boasts south facing windows and lots of space. Around the corner you'll find a second inviting living room with another gas fireplace, and an eating nook seamlessly connected to the chef’s kitchen—complete with a gas stove, wood cabinetry, abundant storage, peninsula seating, and access to a large sunny deck. The upper floor also offers two generous sunny bedrooms, a full bath, and a luxurious primary suite with walk-in closet and spa-inspired ensuite with soaker tub. The 2-bedroom in-law suite (almost 800 sq.ft.) with private entry provides excellent income potential or space for extended family. Outdoors, enjoy a huge, private backyard with garden plots, mature hedges, and plenty of room for entertaining or relaxing. This home truly has its all-space, privacy, quality, and location! (id:39198)
Property Details
Interior
Features
Main level Floor
Bedroom
11 x 12Bedroom
10 x 12Bathroom
Ensuite
Exterior
Parking
Garage spaces -
Garage type -
Total parking spaces 9
Property History
71




