177 MARACAIBO LANE, Salt Spring, British Columbia V8K1S6
Contact us about this property
Highlights
Estimated valueThis is the price Wahi expects this property to sell for.
The calculation is powered by our Instant Home Value Estimate, which uses current market and property price trends to estimate your home’s value with a 90% accuracy rate.Not available
Price/Sqft$981/sqft
Monthly cost
Open Calculator
Description
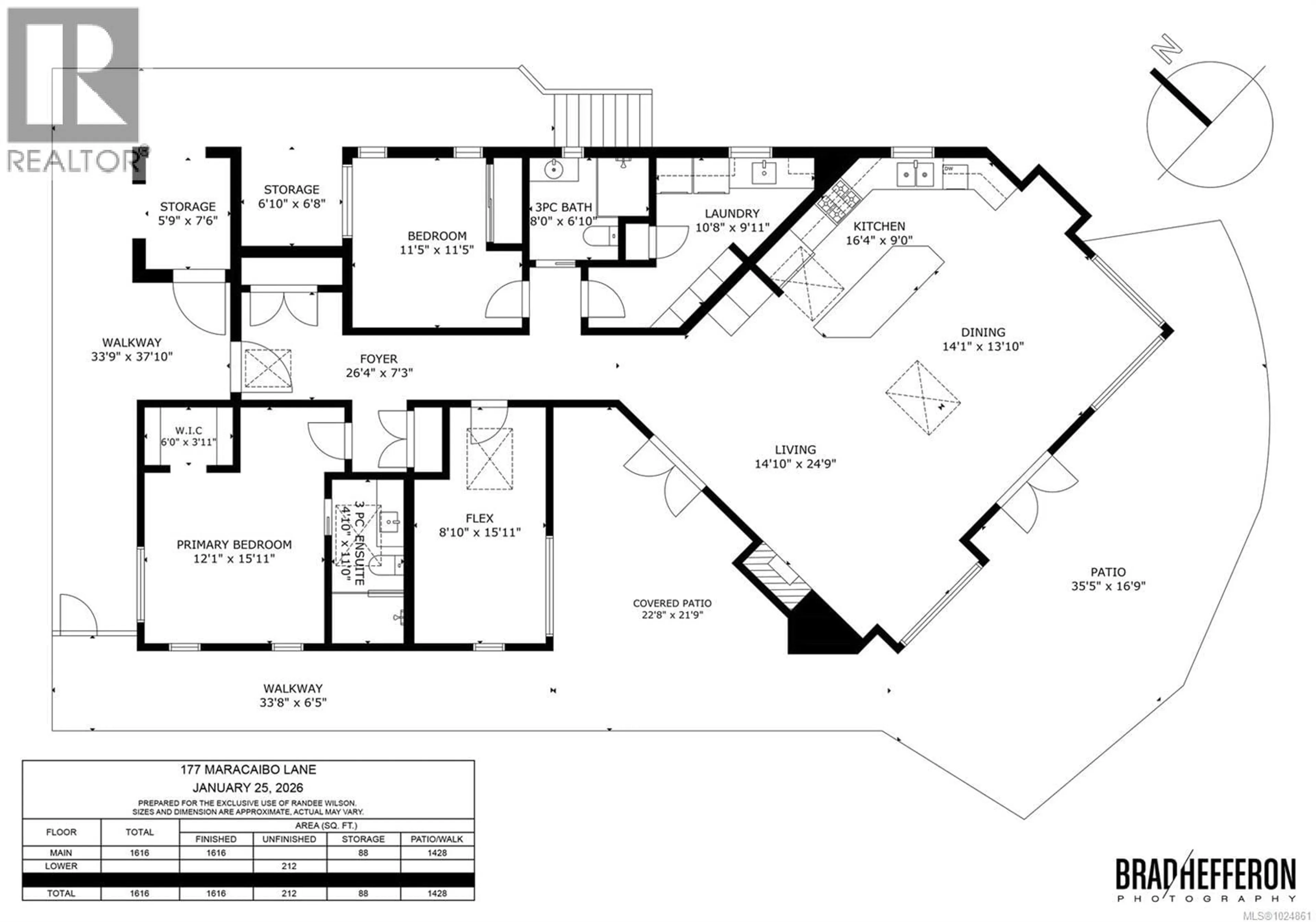
Stunning oceanfront residence showcasing refined West Coast design and quality craftsmanship. This custom-built 2-bedroom, 2-bathroom plus den home is truly turnkey, offering approximately 1,600 square feet of thoughtfully designed living space. An open-concept layout with vaulted ceilings, exposed wood beams, and custom millwork creates warmth and flow, while large windows fill the home with natural light and connect it to the surrounding coastal setting and wildlife. The kitchen features custom cabinetry, a generous island with seating, and stainless steel appliances, seamlessly connecting to the dining and living areas—ideal for everyday living and entertaining. Located in the private, gated community of Maracaibo Estates, owners enjoy access to a marina, swimming lagoon, clubhouse, guest cottages, tennis and pickleball courts, and scenic walking trails. A rare opportunity to own an oceanfront home in a tranquil, amenity-rich setting. Maracaibo share sold separately. (id:39198)
Property Details
Interior
Features
Main level Floor
Bathroom
8 x 6Den
8 x 15Dining room
14 x 13Living room
14 x 24Exterior
Parking
Garage spaces -
Garage type -
Total parking spaces 2
Condo Details
Inclusions
Property History
54




