3 - 3732 TOBA ROAD, Castlegar, British Columbia V1N4Y3
Contact us about this property
Highlights
Estimated valueThis is the price Wahi expects this property to sell for.
The calculation is powered by our Instant Home Value Estimate, which uses current market and property price trends to estimate your home’s value with a 90% accuracy rate.Not available
Price/Sqft$391/sqft
Monthly cost
Open Calculator
Description
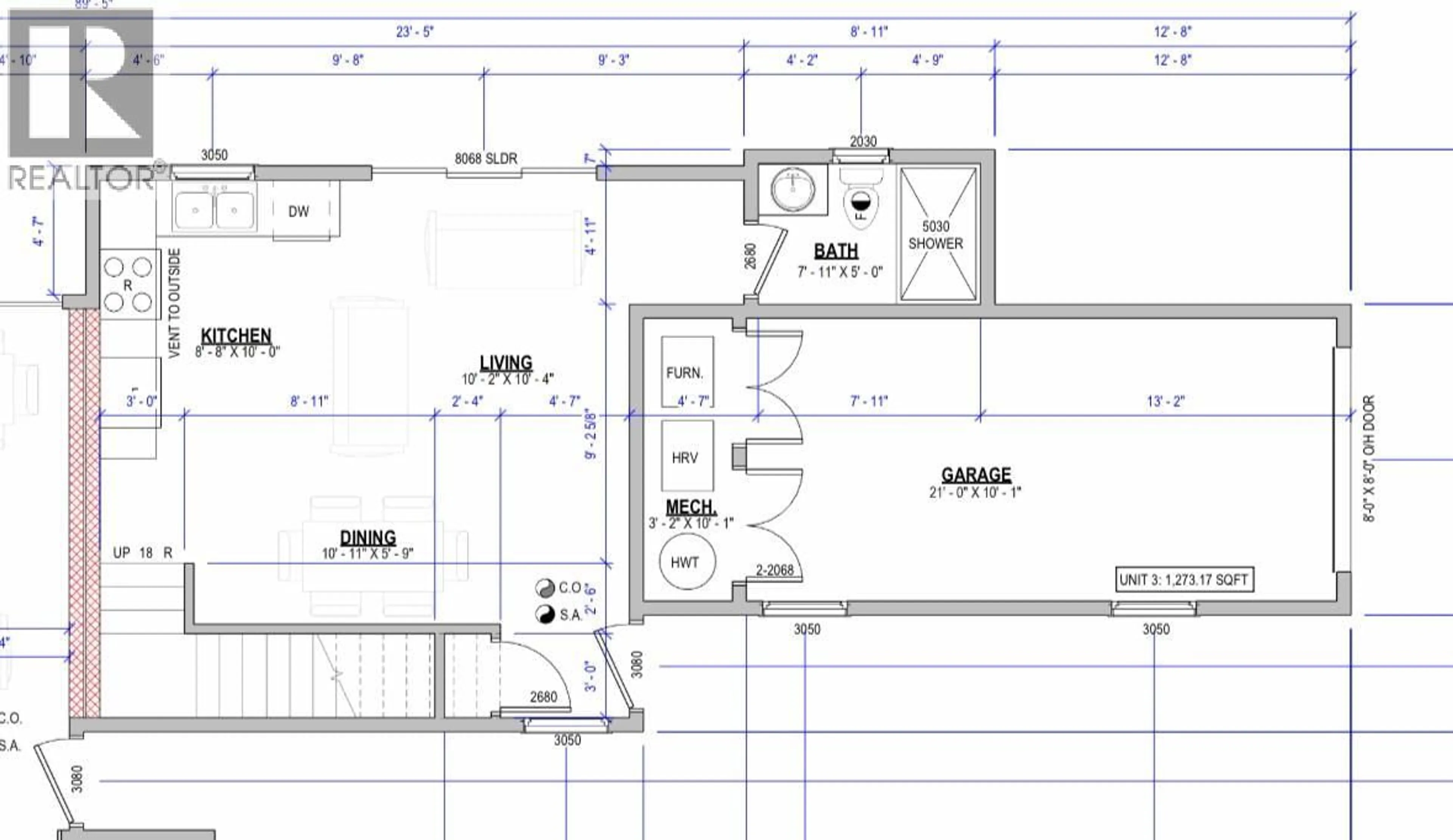
Luxury Modern Living Meets Nature! Discover 3 stunning brand-new units to choose from in this beautifully designed modern triplex. Each home offers 2 spacious bedrooms and 2 bathrooms, thoughtfully designed with high-end finishes throughout. The primary suite features a generous walk-in closet, a stylish ensuite, and patio doors leading to a private sundeck, the perfect place to take in mountain views. Enjoy the bright, open concept living space with over height ceilings, recessed lighting, and large windows that fill the home with natural light. Additional highlights include: EV charger, 5 appliances included, electric garage door opener, blinds and window screens, BBQ gas connection, roughed in central vac. Each unit comes with a single car garage plus additional driveway parking. Experience luxury, comfort, and the beauty of nature, all in one exceptional new home! Estimated completion for 2026 (id:39198)
Property Details
Interior
Features
Second level Floor
Primary Bedroom
14'1'' x 11'6''4pc Ensuite bath
Laundry room
8'8'' x 5'11''Bedroom
10'9'' x 9'7''Exterior
Parking
Garage spaces -
Garage type -
Total parking spaces 2
Property History
10




