811 FIRWOOD ROAD, Fintry, British Columbia V1Z3V5
Contact us about this property
Highlights
Estimated valueThis is the price Wahi expects this property to sell for.
The calculation is powered by our Instant Home Value Estimate, which uses current market and property price trends to estimate your home’s value with a 90% accuracy rate.Not available
Price/Sqft$250/sqft
Monthly cost
Open Calculator
Description
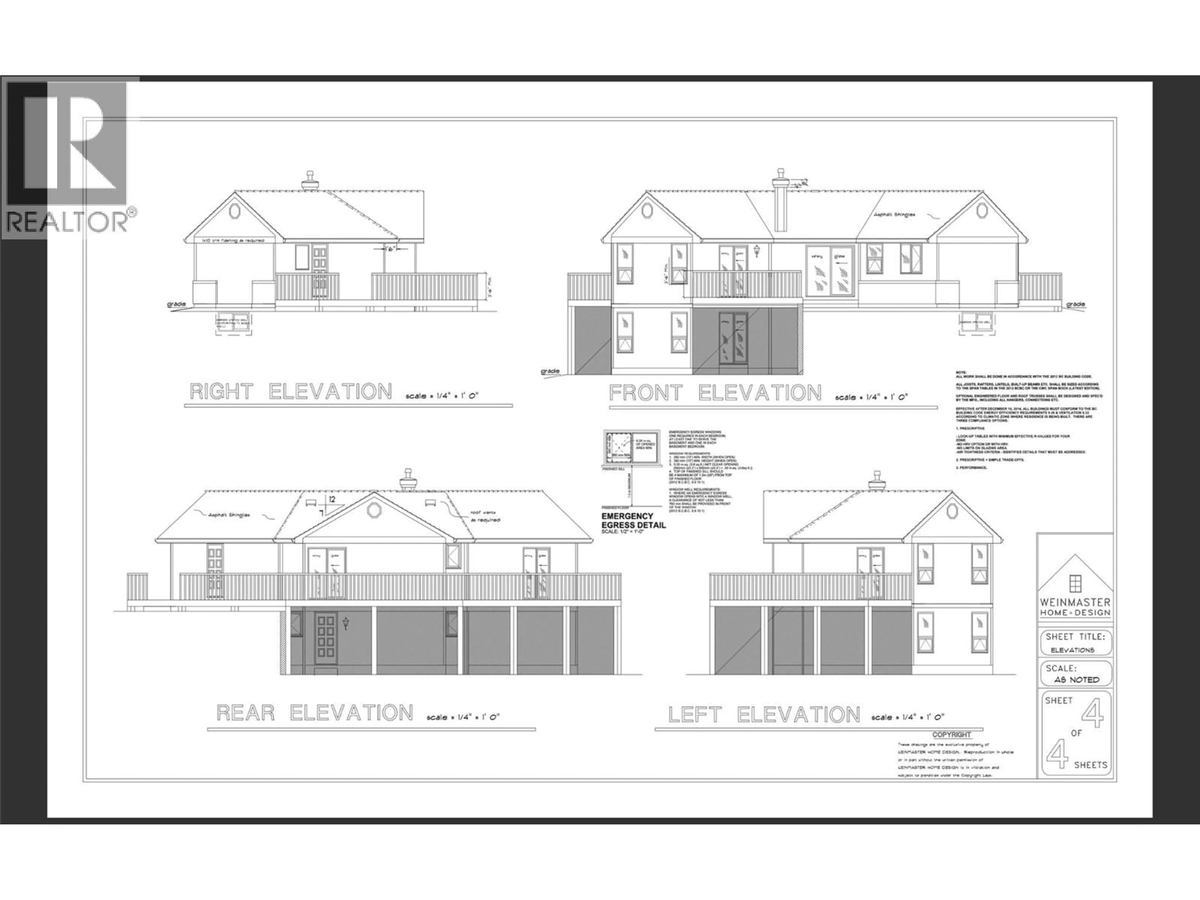
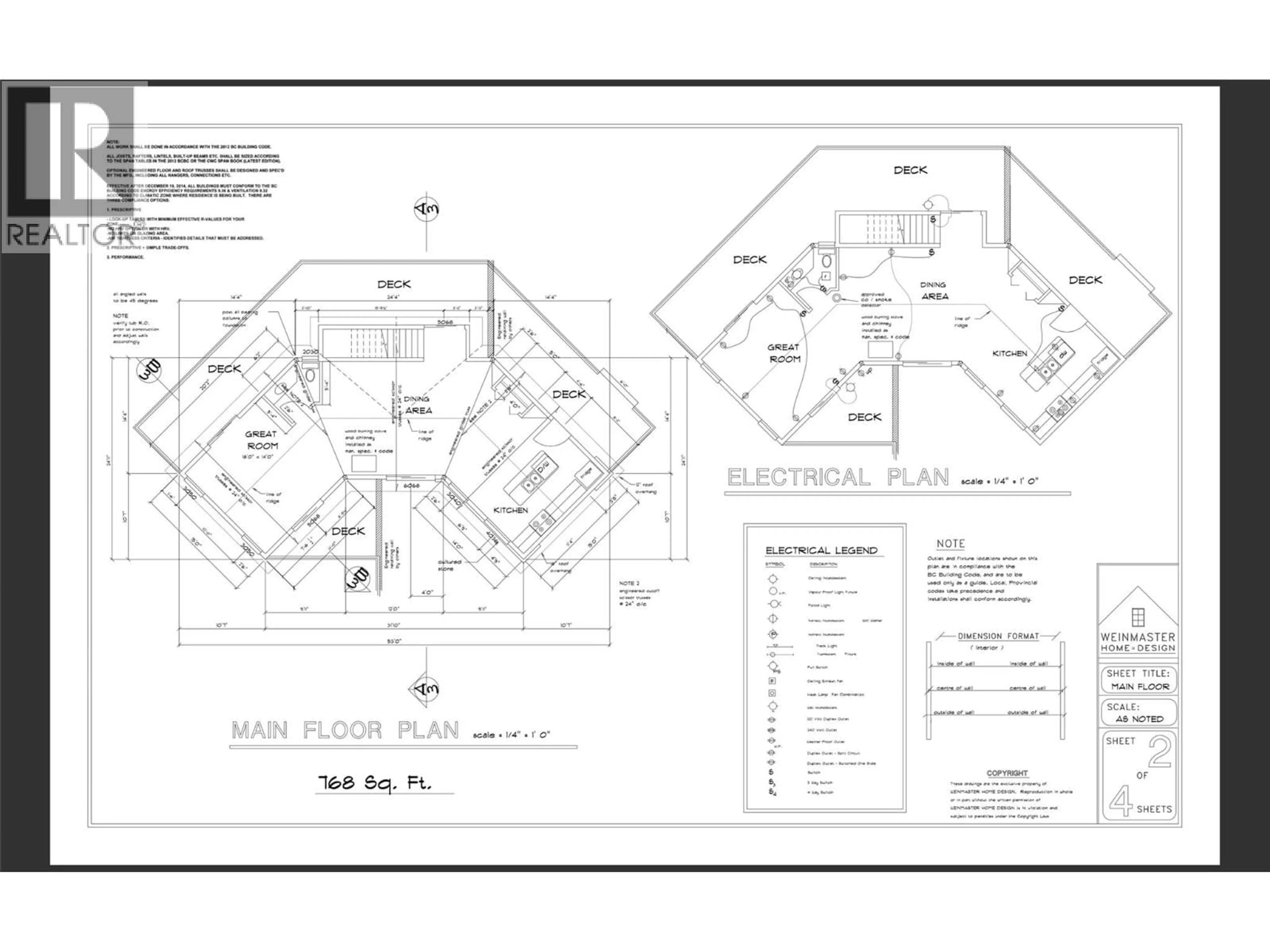
An Opportunity to Create Your Ideal Okanagan Cottage Step into ownership at the perfect stage of construction — with the freedom to customize the interior layout, kitchen design, and finishings to match your vision. Built under permit and by skilled local trades, this home offers both quality and flexibility. Set on a .41-acre lot, the property provides plenty of space for a detached shop, with additional gated access for your RV or boat. Secure, private, and full of potential, this is your chance to shape a true Okanagan retreat. (id:39198)
Property Details
Interior
Features
Main level Floor
Partial bathroom
5' x 6'Living room
15' x 14'Living room
15' x 12'Kitchen
15' x 14'Exterior
Parking
Garage spaces -
Garage type -
Total parking spaces 7
Property History
24




