28 - 1881 BOUCHERIE ROAD, Westbank, British Columbia V4T0C9
Contact us about this property
Highlights
Estimated valueThis is the price Wahi expects this property to sell for.
The calculation is powered by our Instant Home Value Estimate, which uses current market and property price trends to estimate your home’s value with a 90% accuracy rate.Not available
Price/Sqft$103/sqft
Monthly cost
Open Calculator
Description
Nestled in a peaceful, well-maintained park, this charming double-wide mobile home offers the perfect blend of privacy and convenience. Backing onto a quiet creek, the setting is serene and surrounded by nature. Inside, you’ll find a thoughtfully designed layout with 2 comfortable bedrooms, 1 bathroom, and a spacious, open-concept kitchen and living area. Step outside to your private backyard oasis, complete with multiple planter boxes for garden lovers and a beautiful, mature cherry tree that adds shade and charm. The home's electrical has been recently inspected and certified with a new silver label. Enjoy being just minutes from the lake, top-rated wineries, and two stunning golf courses—everything you need is within easy reach. Located in a welcoming 55+ community, this is your opportunity to enjoy quiet, carefree living in a location that has it all. (id:39198)
Property Details
Interior
Features
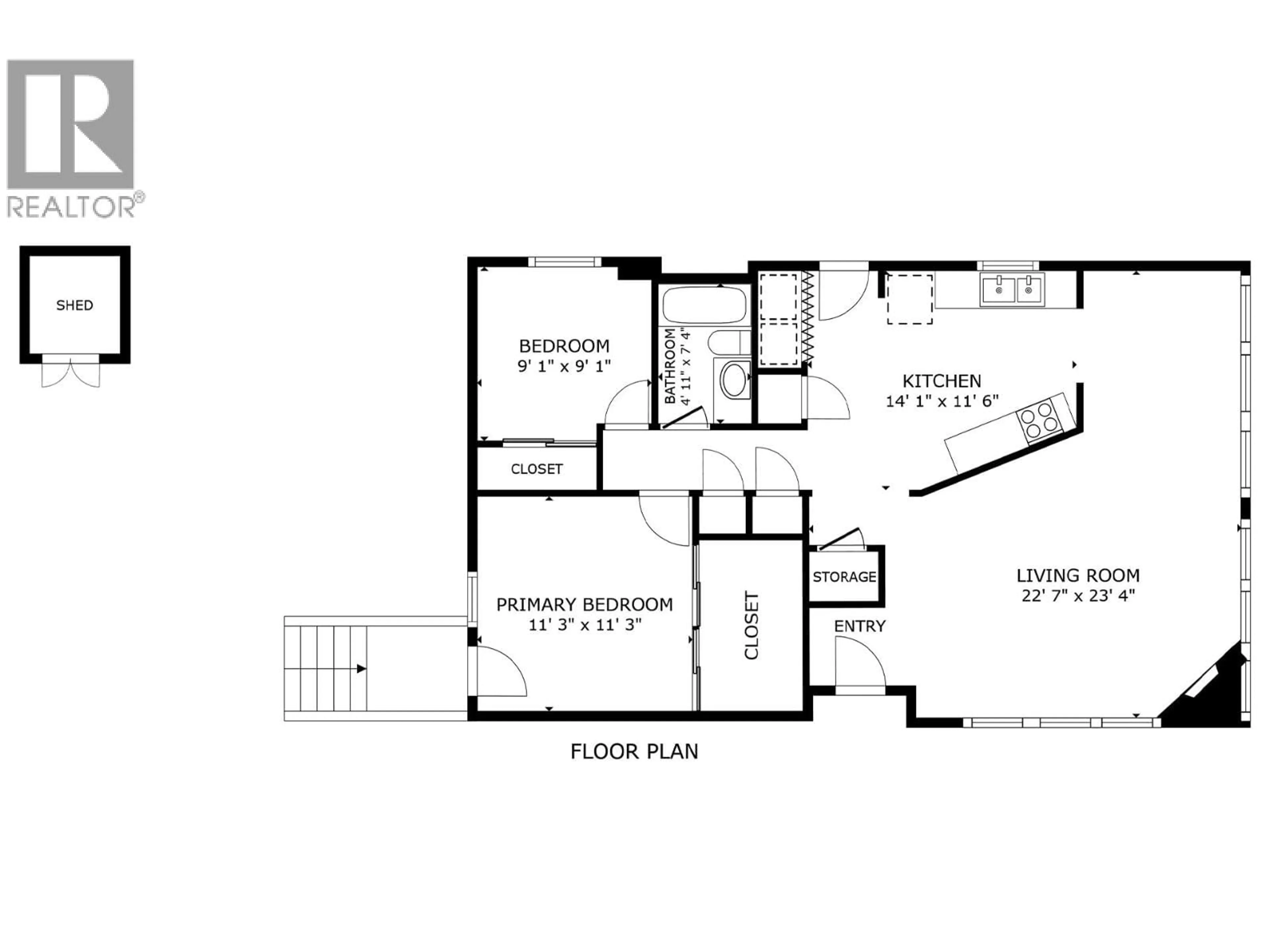
Main level Floor
Full bathroom
4'11'' x 7'4''Bedroom
9'1'' x 9'1''Primary Bedroom
11'3'' x 11'3''Kitchen
11'6'' x 14'1''Exterior
Parking
Garage spaces -
Garage type -
Total parking spaces 2
Condo Details
Inclusions
Property History
43




