488 SEAVIEW WAY, Cobble Hill, British Columbia V0R1L1
Contact us about this property
Highlights
Estimated valueThis is the price Wahi expects this property to sell for.
The calculation is powered by our Instant Home Value Estimate, which uses current market and property price trends to estimate your home’s value with a 90% accuracy rate.Not available
Price/Sqft$525/sqft
Monthly cost
Open Calculator
Description
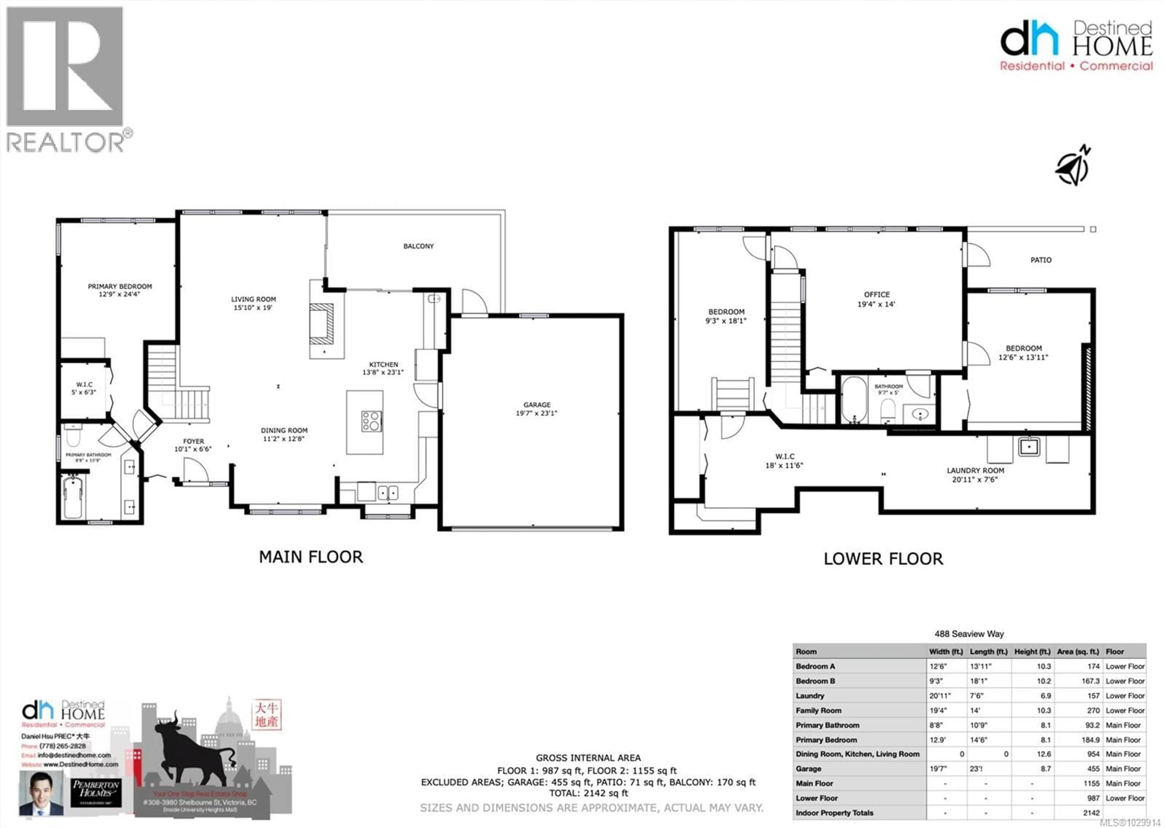
Enjoy breathtaking uninterrupted ocean views from this delightful two level home in Arbutus Ridge. Thoughtfully updated throughout, this home is move in ready, saving you time, stress, and high renovation costs. Featuring vaulted ceilings, new hardwood floors, open concept layout. Spacious deck perfect for entertaining or enjoying the scenery. Kitchen boasts granite countertops, stainless steel appliances. Primary suite offers ocean vistas and a 5piece ensuite with a soaker tub. Designed with flexibility in mind, the home allows for one level living and wheelchair friendly accessibility. Downstairs features second living area, oceanview bedroom, 4piece bath, and third bedroom. Additional features include an exercise area, workspace/breakfast nook, double car garage. Gated community with 24-hour security, offering a pool, lounges, gym, tennis court, secure RV and boat storage, and many more amenities.Dream home ready to enjoy the beauty of Arbutus Ridge. Come make it your DESTINED home! (id:39198)
Property Details
Interior
Features
Lower level Floor
Laundry room
7'6 x 20'11Bedroom
18'1 x 9'3Office
14'0 x 19'4Bathroom
5'0 x 9'7Exterior
Parking
Garage spaces -
Garage type -
Total parking spaces 2
Condo Details
Inclusions
Property History
63




