9828 CROFT STREET, Chemainus, British Columbia V0R1K1
Contact us about this property
Highlights
Estimated valueThis is the price Wahi expects this property to sell for.
The calculation is powered by our Instant Home Value Estimate, which uses current market and property price trends to estimate your home’s value with a 90% accuracy rate.Not available
Price/Sqft$260/sqft
Monthly cost
Open Calculator
Description
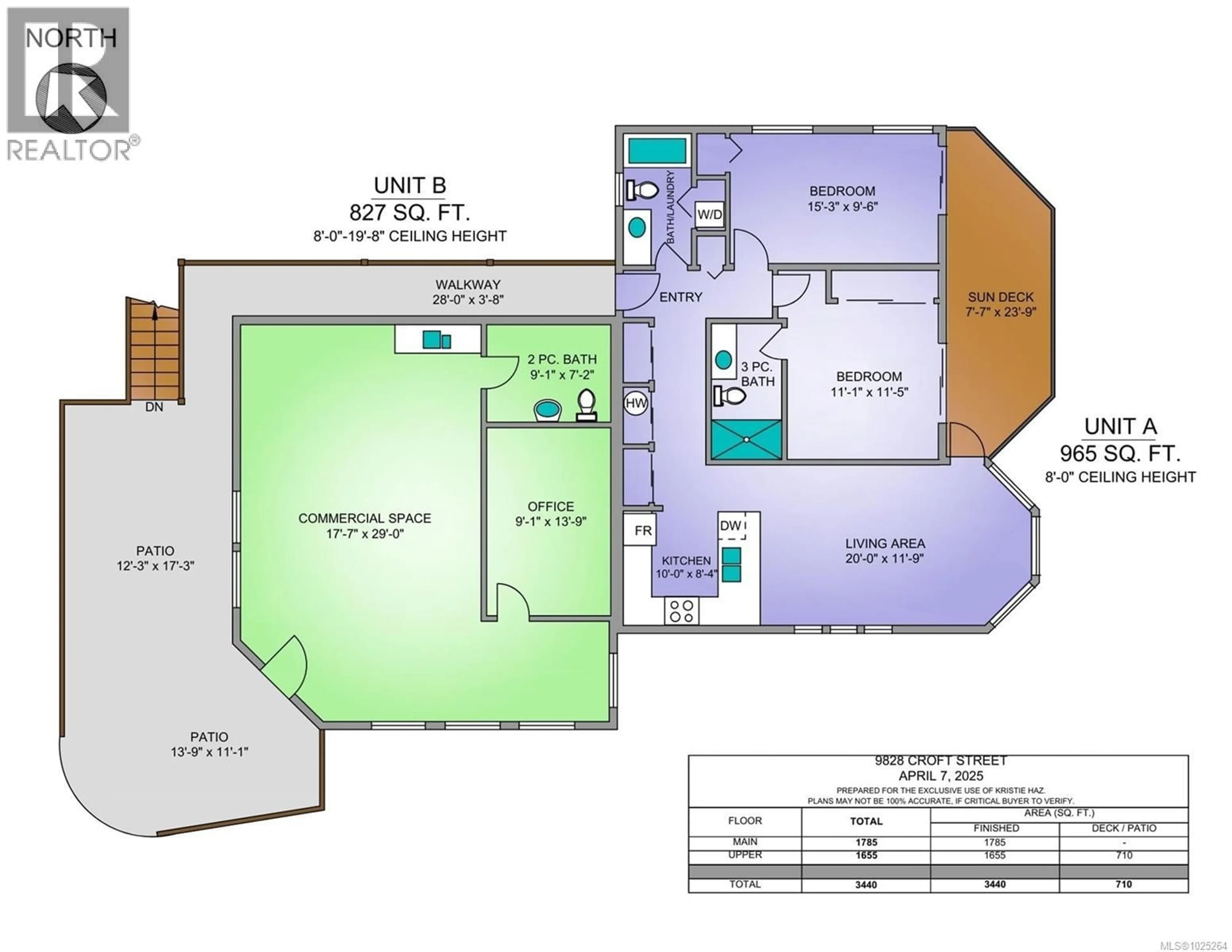
An exceptional opportunity to acquire a versatile income property offering both stability and upside. The building comprises three commercial units, one dedicated storage unit, and a well-appointed two-bedroom residential suite currently leased to a long-term tenant at $1,400 per month. With the balance of the property to be delivered vacant at completion, incoming ownership gains rare flexibility whether to curate a complementary tenant mix, reposition the asset for enhanced returns, or occupy part of the building while maintaining residential income. Well suited to investors seeking value-add potential or owner-operators looking for a live-work or income-supported footprint, this property presents a compelling combination of immediate revenue and future optionality. Recent price adjustment further enhances the opportunity to secure a multi-use asset with long-term upside. Explore the possibilities and unlock the next chapter of this property. Contact the listing agent today. (id:39198)
Property Details
Condo Details
Inclusions
Property History
20





