6880 COLUMBIA RIDGE DRIVE, Fairmont Hot Springs, British Columbia V0B1L2
Contact us about this property
Highlights
Estimated valueThis is the price Wahi expects this property to sell for.
The calculation is powered by our Instant Home Value Estimate, which uses current market and property price trends to estimate your home’s value with a 90% accuracy rate.Not available
Price/Sqft$280/sqft
Monthly cost
Open Calculator
Description
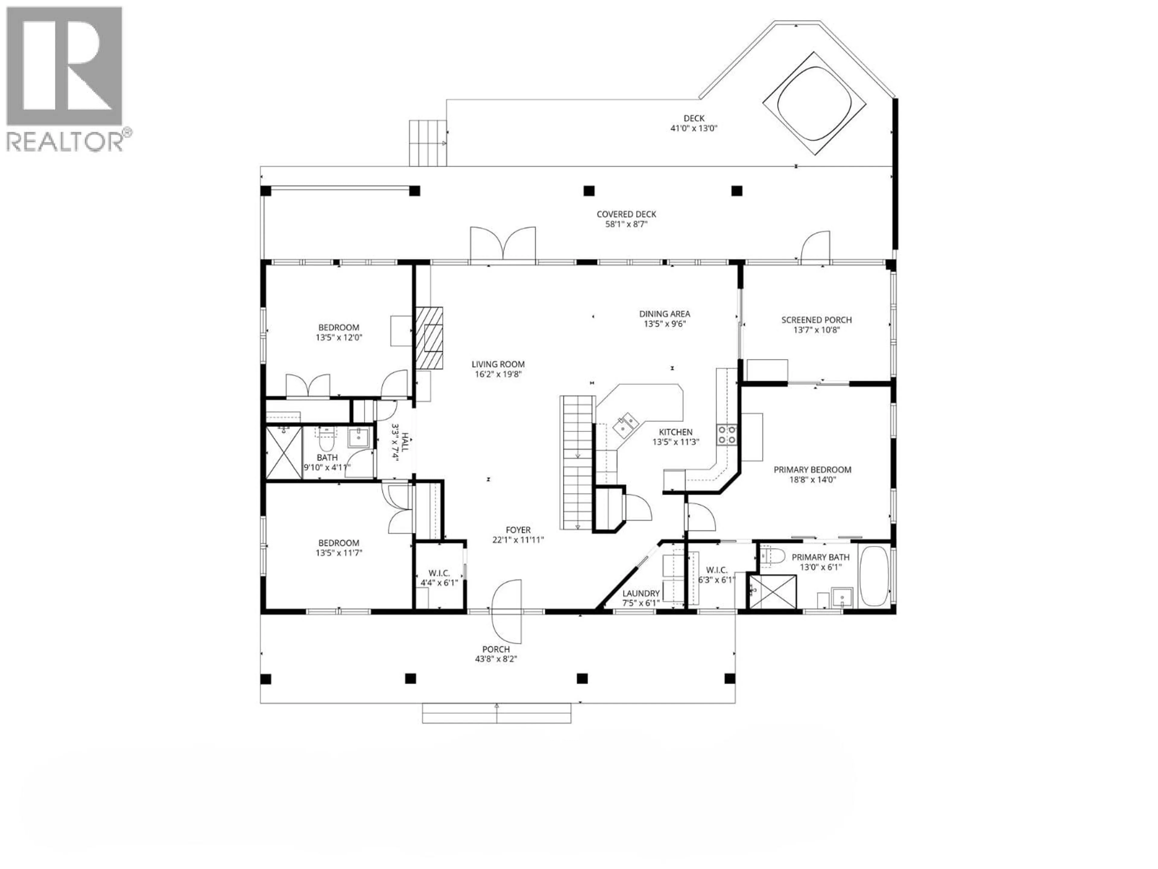
Welcome to 6880 Columbia Ridge Dr, 5-bedroom, 3-bathroom home sits on a scenic half-acre lot providing privacy and stellar mountain views. With over 3800 square feet of space and access to Columbia Lake, it ticks ALL the boxes! This beautiful home offers a spacious, family-friendly floorplan. The main floor features a large primary bedroom nestled away from the other bedrooms. It includes a luxurious ensuite with walk in closet. Two other large bedrooms on the main floor are separated by a full bath with glass shower. The living room is a beautiful retreat. High ceilings and lots of windows to take in the incredible views, boasting natural light through the day and by evening, enjoy the magnificent night sky while relaxing around the warmth of your wood burning fireplace. The large, bright, well-designed kitchen offers loads of storage and the perfect amount of space to host large sit-down meals. Off the kitchen is a screened-in sun room with plexiglass inserts to extend enjoyment year-round. For ease of access, the laundry room is also on the main floor. Upstairs features a large, versatile loft with beautiful views of the Purcell Mountains. Downstairs you will find 2 more large bedrooms, another full bath, a TV/media-room and a huge family games room. The detached, oversize heated garage offers room for all your toys and includes an RV plug. Above the garage, there’s a loft area that would make for a wonderful play area or creative space. Step into the beautifully landscaped backyard, there’s a large deck with private hot tub, outdoor eating area, fire pit and irrigation system. The community of Columbia Ridge has its own private lake access with a beach, day docks, mooring buoys, pickleball court, soccer field and playground. Your family will enjoy a lifetime of memories in this specular home. Call your Realtor to view. (id:39198)
Property Details
Interior
Features
Basement Floor
Full bathroom
4'11'' x 9'Bedroom
11' x 12'9''Bedroom
12'10'' x 12'9''Media
30'9'' x 24'9''Exterior
Parking
Garage spaces -
Garage type -
Total parking spaces 2
Property History
59





