6425 SWANSON STREET, Chilliwack, British Columbia V2R1R2
Contact us about this property
Highlights
Estimated valueThis is the price Wahi expects this property to sell for.
The calculation is powered by our Instant Home Value Estimate, which uses current market and property price trends to estimate your home’s value with a 90% accuracy rate.Not available
Price/Sqft$499/sqft
Monthly cost
Open Calculator
Description
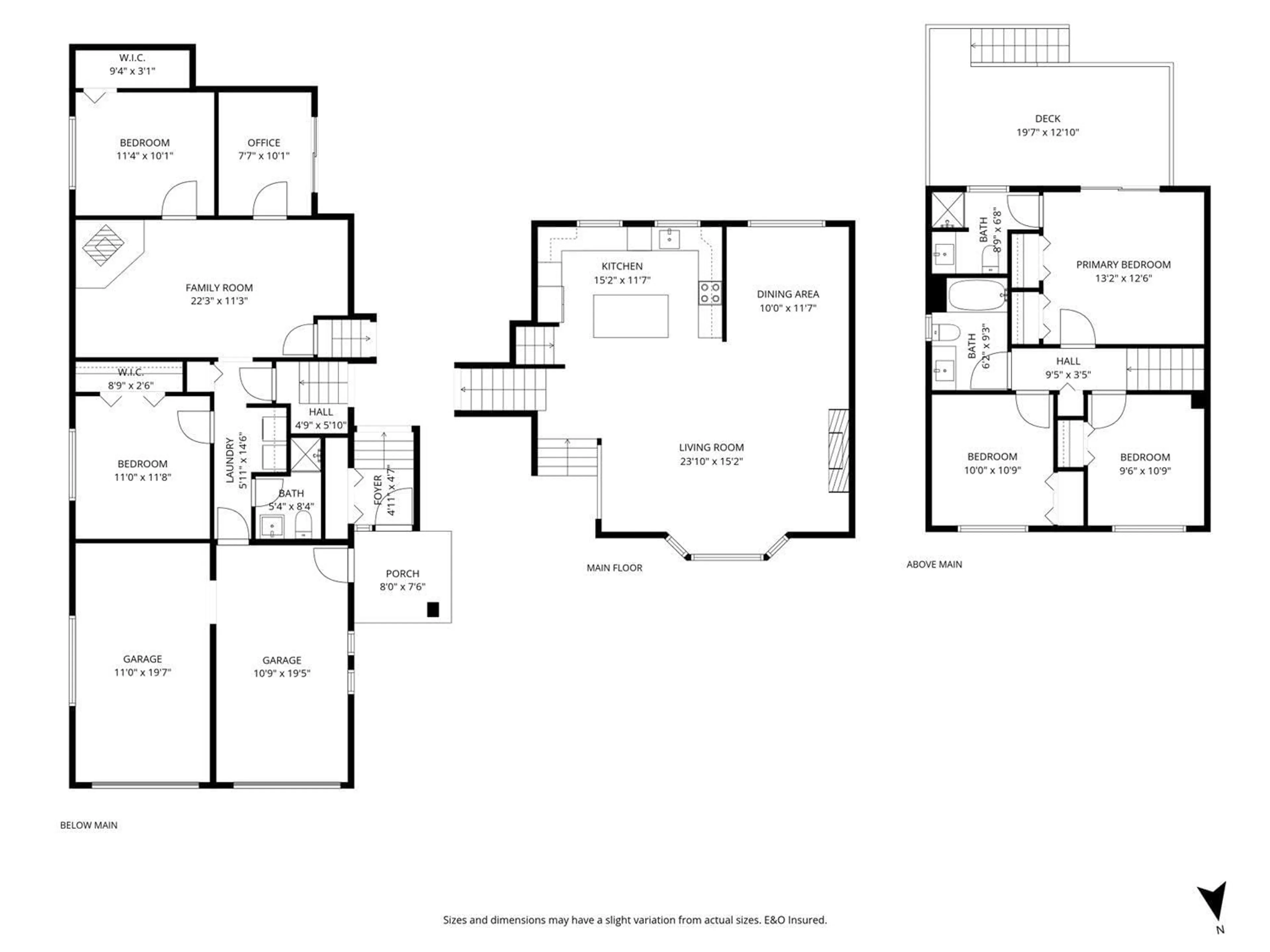
Welcome to the heart of Sardis! This beautifully fully renovated home offers 5 bedrooms and 3 bathrooms, perfect for growing families. Step inside to an open concept floor plan filled with natural light and modern finishes throughout, creating a warm and inviting space to call home. Truly move-in ready, there's nothing to do but settle in and start making memories. Located in a family-friendly neighborhood, you're close to all levels of schools, parks, shopping, and everyday amenities. Plus, enjoy quick and easy access to Highway 1 in under 7 minutes. A perfect place to watch your family thrive, don't miss this one! * PREC - Personal Real Estate Corporation (id:39198)
Property Details
Interior
Features
Main level Floor
Foyer
4.11 x 4.7Kitchen
15.2 x 11.7Living room
23.1 x 15.2Dining room
10 x 11.7Property History
40



