8233 GOVERNMENT ROAD, Burnaby, British Columbia V5A2E4
Contact us about this property
Highlights
Estimated valueThis is the price Wahi expects this property to sell for.
The calculation is powered by our Instant Home Value Estimate, which uses current market and property price trends to estimate your home’s value with a 90% accuracy rate.Not available
Price/Sqft$678/sqft
Monthly cost
Open Calculator
Description
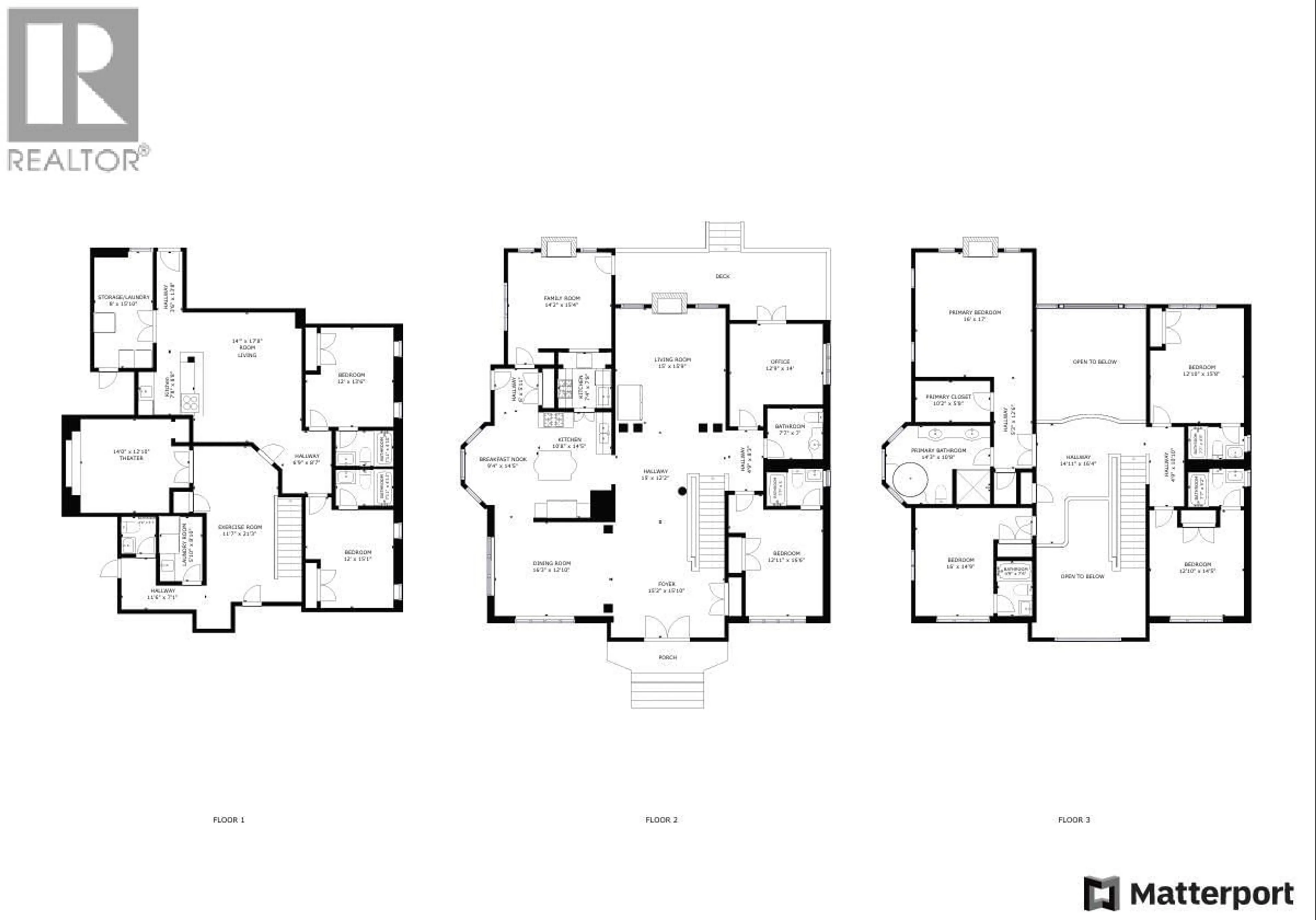
A breathtaking signature residence, meticulously designed and crafted by Jenia Design. This architectural masterpiece showcases premium European craftsmanship and the finest materials throughout. Welcoming you is a stunning, hand-crafted white oak front door-measuring 14 feet high and 7 feet wide-book-matched in a three-layer design. Step inside to a grand 20-foot entry hall adorned with detailed relief motifs on every wall. The space is finished with tempered porcelain tile flooring that reflects the ornamental coffered ceiling above, highlighted with 24-carat gold leaf accents. Pass through marbleized, hand-crafted columns and pilasters into a soaring 20-foot living room featuring an elegant stone fireplace. And this is only the beginning.Call now to arrange your private viewing. (id:39198)
Property Details
Interior
Features
Exterior
Parking
Garage spaces -
Garage type -
Total parking spaces 2
Property History
40




