67 days on Market
111 - 13880 74 AVENUE, Surrey, British Columbia V3W7E6
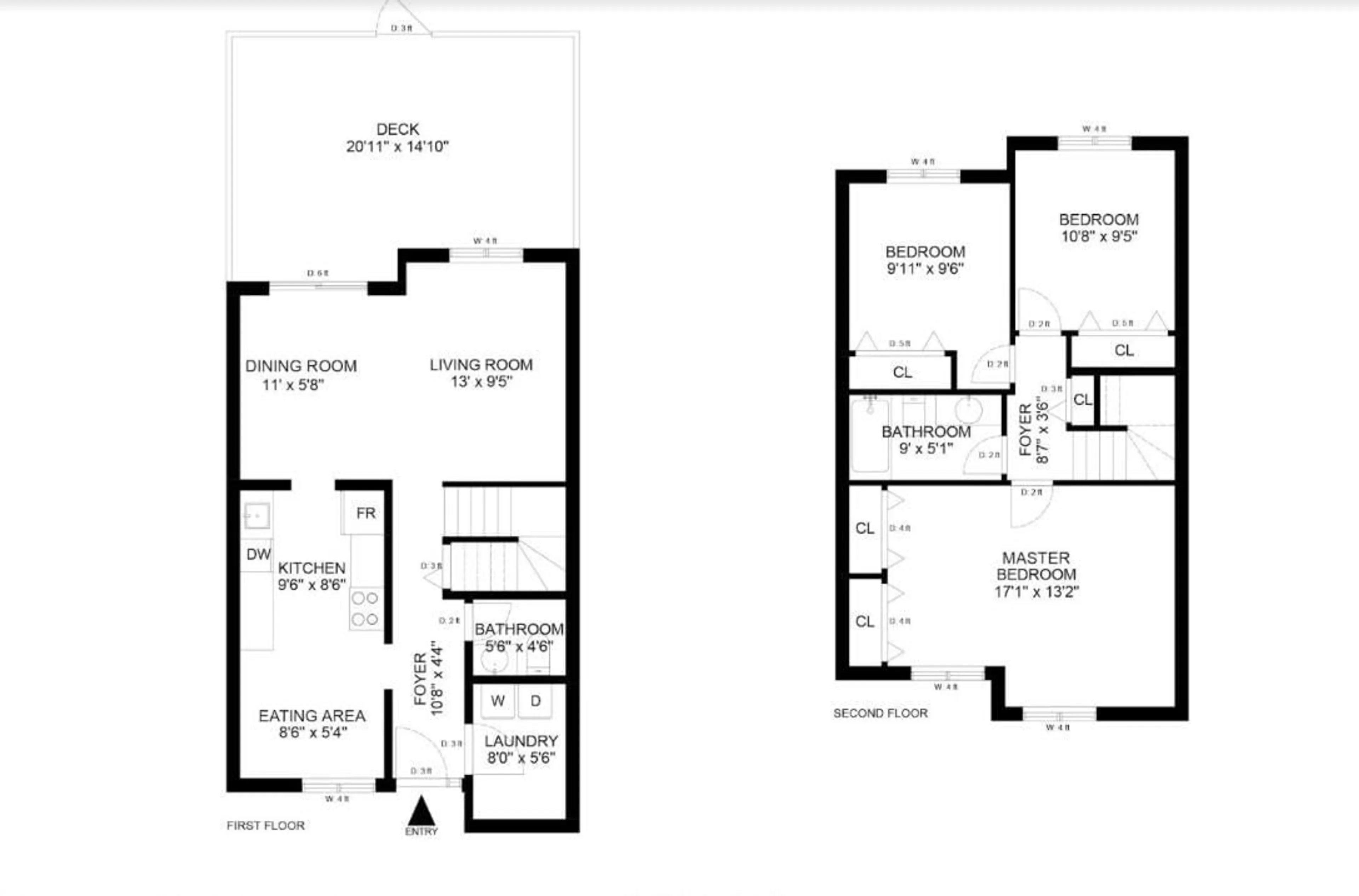
Condo
3
2
~1300 sqft
$•••,•••
$626,900Get pre-qualifiedPowered by nesto
Condo
3
2
~1300 sqft
Contact us about this property
Highlights
Days on market67 days
Estimated valueThis is the price Wahi expects this property to sell for.
The calculation is powered by our Instant Home Value Estimate, which uses current market and property price trends to estimate your home’s value with a 90% accuracy rate.Not available
Price/Sqft$482/sqft
Monthly cost
Open Calculator
Description
NEW PRICE. $626.9K.!!Welcome to Wedgewood Estates this 2 story_no many stairs (id:39198)
Property Details
StyleRow / Townhouse
View-
Age of property1980
SqFt~1300 SqFt
Lot Size-
Parking Spaces2
MLS ®NumberR3058391
Community NameSurrey
Data SourceCREA
Listing byRoyal LePage West Real Estate Services
Interior
Features
Heating: Electric
Basement: None, Unknown, Unknown
Exterior
Parking
Garage spaces -
Garage type -
Total parking spaces 2
Condo Details
2Story
Amenities
Laundry - In Suite, Racquet Courts
Inclusions
Hydro
Water
Parking
Cable
Heat
Property History
Oct 14, 2025
ListedActive
$626,900
67 days on market
40Listing by crea®
40Property listed by Royal LePage West Real Estate Services, Brokerage

Interested in this property?Get in touch to get the inside scoop.





