1 - 451 PENDER STREET, Vancouver, British Columbia V6A1V2
Contact us about this property
Highlights
Estimated valueThis is the price Wahi expects this property to sell for.
The calculation is powered by our Instant Home Value Estimate, which uses current market and property price trends to estimate your home’s value with a 90% accuracy rate.Not available
Price/Sqft$755/sqft
Monthly cost
Open Calculator
Description
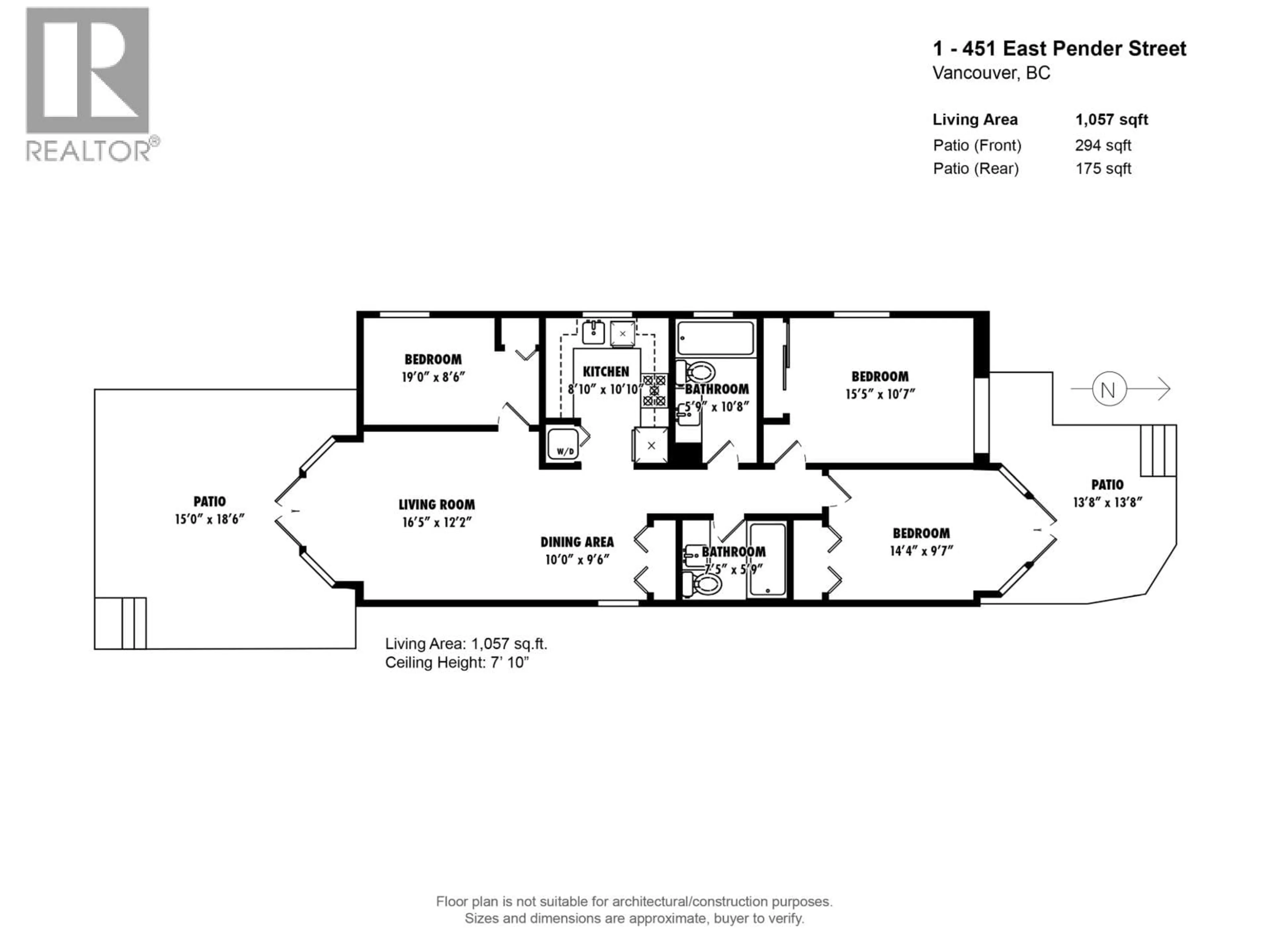
Welcome to the Cameron House. Originally built in 1889 and converted into three townhomes in 1992, this is one of Vancouver's oldest homes, offering an incredible opportunity to own a piece of Vancouver's history in the heart of Chinatown and Strathcona. This ground-level 3-bed, 2-bath townhome offers a seamless blend of character and comfort, fusing heritage charm with modern upgrades throughout. Recent renovations include a sleek new kitchen, updated floors and bathrooms. Two outdoor retreats- a private fenced rear deck with under-stair storage and a lush, covered front deck invite quiet escape, while a shared backyard adds community connection for all owners. Close to all the local hotspots, this dynamic home and area has it all! (id:39198)
Property Details
Interior
Features
Condo Details
Amenities
Laundry - In Suite
Inclusions
Property History
29





