423 - 4280 RED MOUNTAIN ROAD, Rossland, British Columbia V0G1Y0
Contact us about this property
Highlights
Estimated valueThis is the price Wahi expects this property to sell for.
The calculation is powered by our Instant Home Value Estimate, which uses current market and property price trends to estimate your home’s value with a 90% accuracy rate.Not available
Price/Sqft$1,037/sqft
Monthly cost
Open Calculator
Description
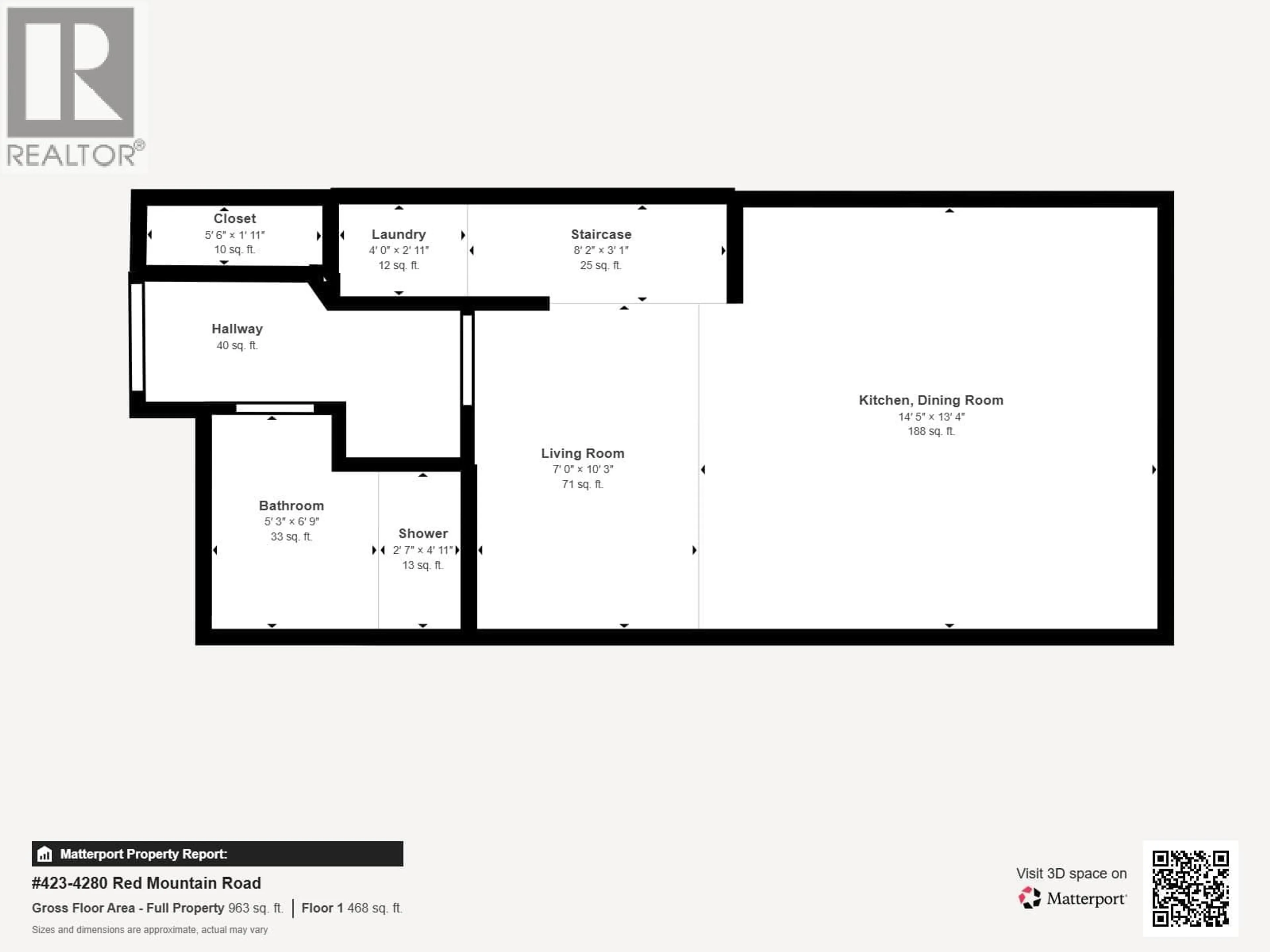
Top-Floor Loft at RED Mountain – Steps from the Slopes! The closest and newest condo development at the base of RED Mountain—your perfect mountain getaway, fully furnished and move-in ready. This modern, top-floor loft unit features soaring 16-foot ceilings and expansive mountain views that elevate the open-concept living space with a true sense of grandeur. Sleeping for six, the unit features 1.5 bathrooms, smart storage solutions, and a spacious second-floor loft that adds both room and style. Right outside your door, enjoy the convenience of a private gear locker—ideal for skis, boards, or bikes. Need more space to relax or entertain? Just steps away, you'll find a shared lounge complete with a fully equipped kitchen, cozy fireplace, games room, and plenty of seating. Amenities don’t stop there—on site you’ll also enjoy: designated heated parking spot, shared bike storage, a BBQ patio with an outdoor dining area, a well-equipped gym, a quiet office space—all with stunning views of RED Mountain. Live, rent, or both. Whether you're looking for a full-time escape or a rental opportunity, this loft offers full flexibility. The winter calendar is wide open, giving you full control over your vacation time and potential income. Quick possession available—just in time for ski season. Don’t wait—secure your spot on the mountain before the snow flies! (id:39198)
Property Details
Interior
Features
Second level Floor
Primary Bedroom
13'3'' x 12'10''Partial ensuite bathroom
7'9'' x 3'1''Exterior
Parking
Garage spaces -
Garage type -
Total parking spaces 1
Condo Details
Amenities
Storage - Locker, Laundry - Coin Op
Inclusions
Property History
27




