1607 45 STREET, Vernon, British Columbia V1T7P9
Contact us about this property
Highlights
Estimated valueThis is the price Wahi expects this property to sell for.
The calculation is powered by our Instant Home Value Estimate, which uses current market and property price trends to estimate your home’s value with a 90% accuracy rate.Not available
Price/Sqft$357/sqft
Monthly cost
Open Calculator
Description
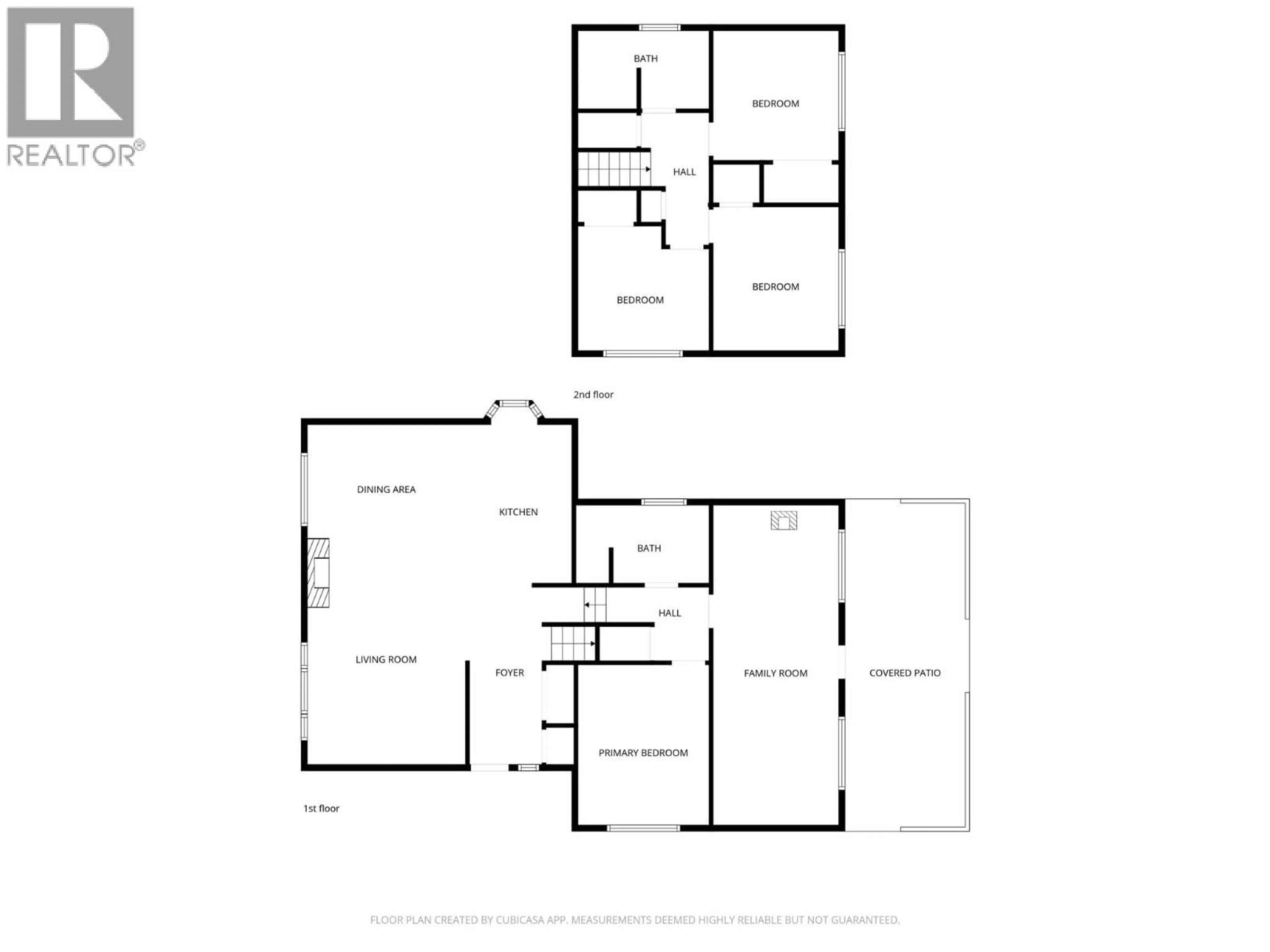
Come see this Family-friendly 4 bedroom, 2 bathroom home in South Vernon. Situated on a flat lot on a quiet street, within walking distance to Fulton and Ellison schools. Okanagan Lake, Marshall Fields, and nearby parks are just minutes away. The main floor features an open-concept kitchen, dining, and livingroom area with a gas fireplace, a bedroom, a combined 3-piece bathroom with laundry, and a spacious family room with a freestanding gas fireplace and access to the covered patio and fully usable, flat backyard. Upstairs offers three additional bedrooms and a full 4-piece bathroom. With a functional layout and great use of space, this home offers excellent potential for a growing family. Bedroom 3 upstairs will need some TLC. Book your showing today. (id:39198)
Property Details
Interior
Features
Main level Floor
Kitchen
13'0'' x 9'9''Dining room
18'0'' x 9'9''Living room
18'0'' x 12'9''Family room
25'5'' x 10'6''Exterior
Parking
Garage spaces -
Garage type -
Total parking spaces 3
Property History
31





