1502 DEPOT ROAD, Squamish, British Columbia V0N1H0
Contact us about this property
Highlights
Estimated valueThis is the price Wahi expects this property to sell for.
The calculation is powered by our Instant Home Value Estimate, which uses current market and property price trends to estimate your home’s value with a 90% accuracy rate.Not available
Price/Sqft$1,199/sqft
Monthly cost
Open Calculator
Description
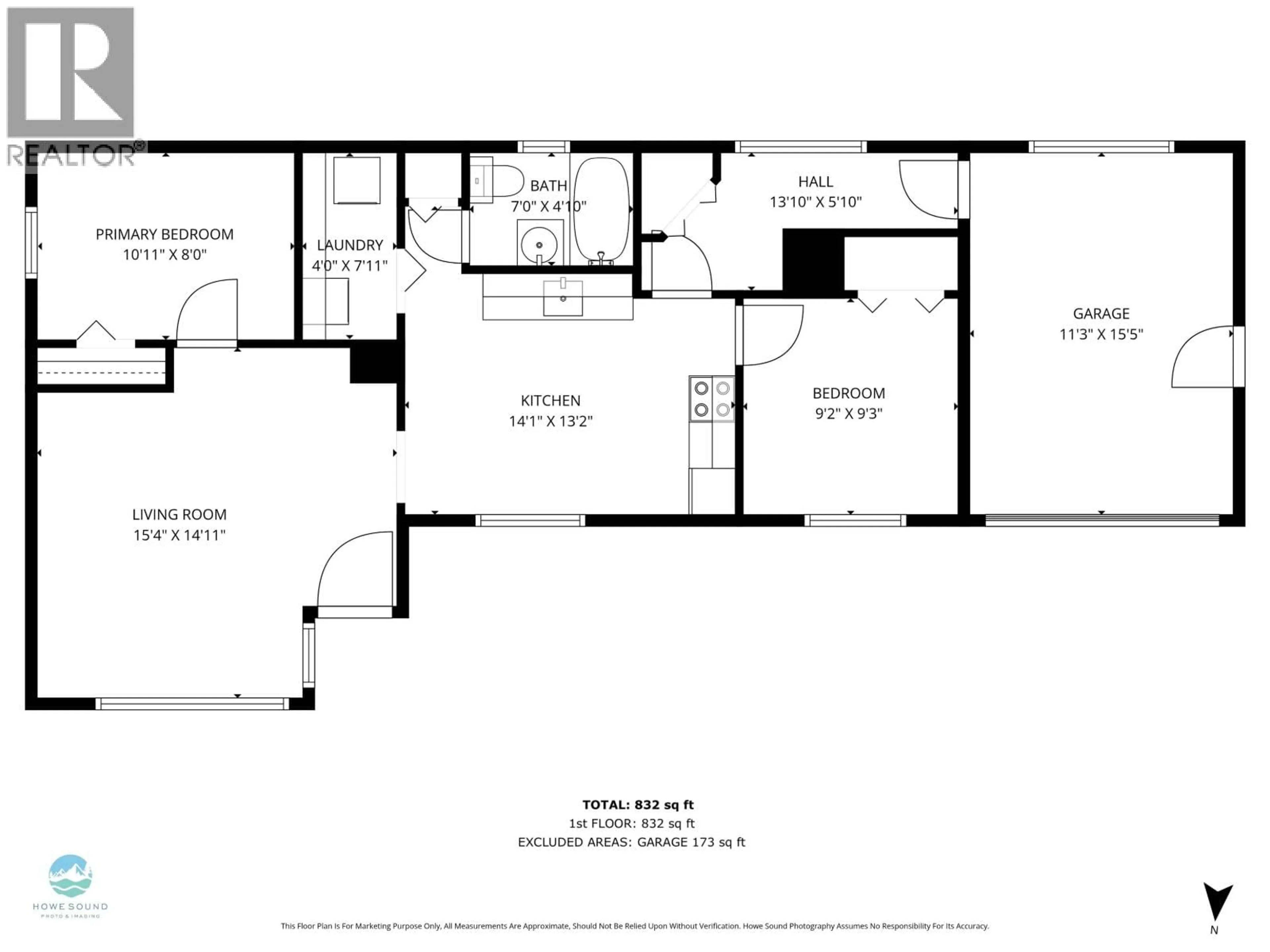
Looking for a well-cared-for starter home, investment property, or development site under $1 M? This is it. This tastefully updated and cozy 2-bedroom, 1-bath detached home sits on a generous 7,680 sq. ft. R3-zoned lot. Updates (1998) include windows, flooring, kitchen, bathroom, and a rubber roof (2019) with 10 yr warranty . The property also features a single garage, mature trees for natural shade, partial fencing, and ample parking for vehicles and recreational toys. Ideally located just minutes from Highway 99, Don Ross Secondary, and Brackendale Elementary, as well as great restaurants, coffee shops, transit, parks, and trails. Easy to view on short notice. (id:39198)
Property Details
Interior
Features
Exterior
Parking
Garage spaces -
Garage type -
Total parking spaces 4
Property History
14





