12 - 121 FERRY ROAD, Clearwater, British Columbia V0E1N2
Contact us about this property
Highlights
Estimated valueThis is the price Wahi expects this property to sell for.
The calculation is powered by our Instant Home Value Estimate, which uses current market and property price trends to estimate your home’s value with a 90% accuracy rate.Not available
Price/Sqft$226/sqft
Monthly cost
Open Calculator
Description
Welcome to this charming and well-maintained 2-bedroom, 1-bath mobile home located on the outskirts of Clearwater — the perfect blend of comfort and outdoor living! Ideally situated just minutes from the Thompson River with a boat launch nearby, this property offers endless opportunities for fishing, boating, and exploring the surrounding natural beauty. Inside, you’ll find numerous updates completed within the past year, including a fully renovated bathroom, new trussing and premium Pro-Lock metal roof, vinyl siding, new exterior doors, and propane-converted furnace for efficient heating. The home also features updated plumbing and thoughtful modern touches throughout, giving you peace of mind and move-in-ready comfort. Whether you’re looking for a cozy full-time residence, a recreational getaway, or an affordable investment property, this home checks all the boxes. Enjoy quiet country living while still being close to town amenities and outdoor adventure. (id:39198)
Property Details
Interior
Features
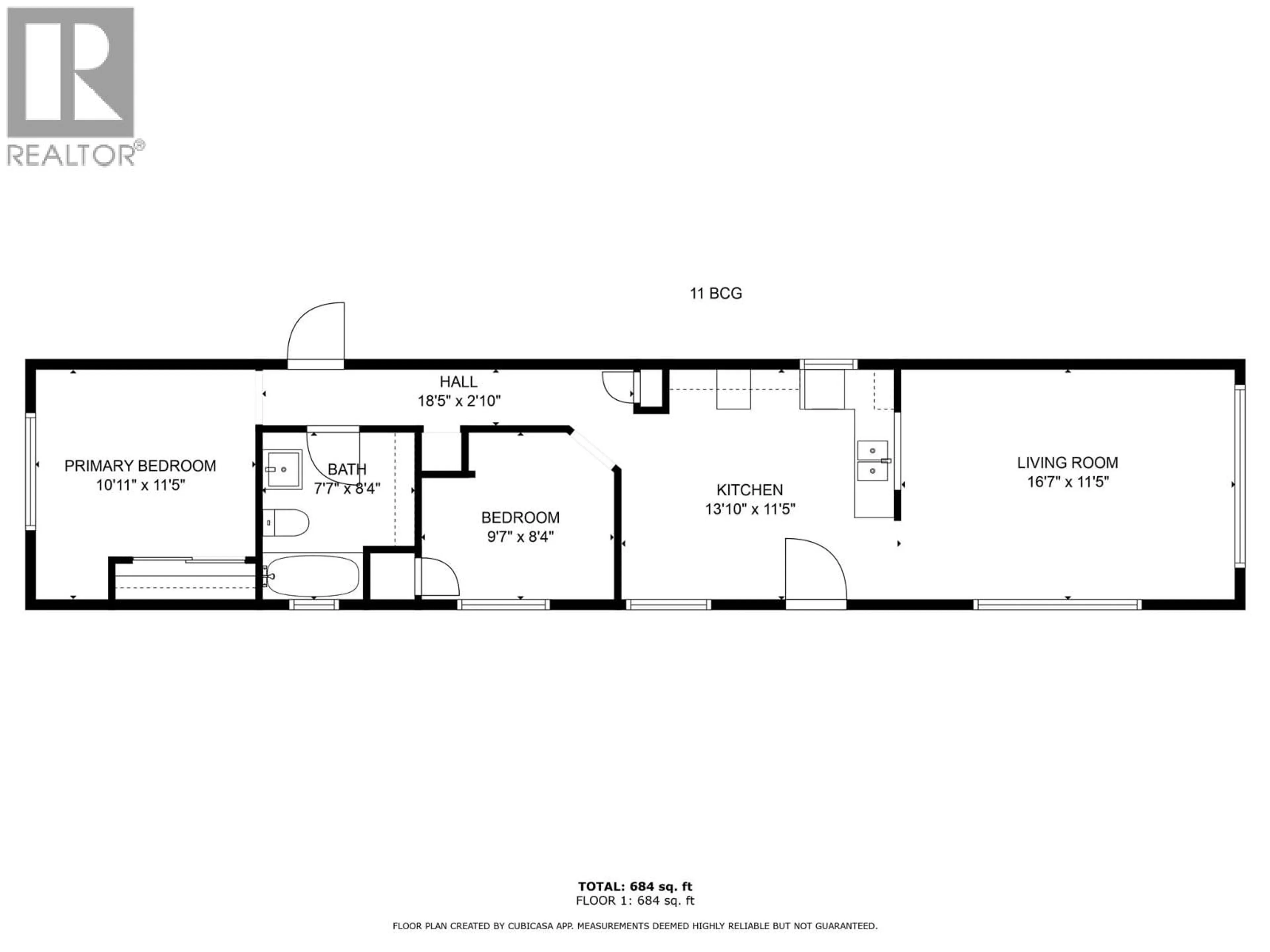
Main level Floor
Living room
11'5'' x 16'7''Kitchen
11'5'' x 13'10''4pc Bathroom
8'4'' x 7'7''Bedroom
8'4'' x 9'7''Condo Details
Inclusions
Property History
47




