367 MCAULEY PLACE, Kamloops, British Columbia V2C5R6
Contact us about this property
Highlights
Estimated valueThis is the price Wahi expects this property to sell for.
The calculation is powered by our Instant Home Value Estimate, which uses current market and property price trends to estimate your home’s value with a 90% accuracy rate.Not available
Price/Sqft$303/sqft
Monthly cost
Open Calculator
Description
Tucked away on a quiet cul-de-sac in Dallas, this home is all about space, privacy, and unforgettable summers. Set on a huge lot with a beautifully maintained yard, the standout feature is the large outdoor pool — imagine long summer days with the kids, weekend BBQs, and evenings spent unwinding in your own private oasis. Picture gathering around the fire pit under the stars, while the yard offers plenty of space to play, garden, and truly enjoy the outdoors. A charming garden shed adds extra storage and functionality for all your tools and hobbies. Inside, you’ll find a spacious layout with approximately 5 bedrooms and 3 bathrooms, offering flexibility for families of all sizes. The level-entry design makes everyday living easy, and the home is filled with warmth and character throughout, complemented by some thoughtful updates over the years. Enjoy year-round comfort with central air conditioning and the added convenience of central vacuum. The lower level features a large rec room complete with a full media setup — projector, screen, and stereo equipment included — creating the perfect space for movie nights, game days, and entertaining. There’s also an opportunity here to continue updating and make it your own over time, adding even more value in an already incredible setting. If you’ve been waiting for the perfect family home with a dream backyard — this is it. (id:39198)
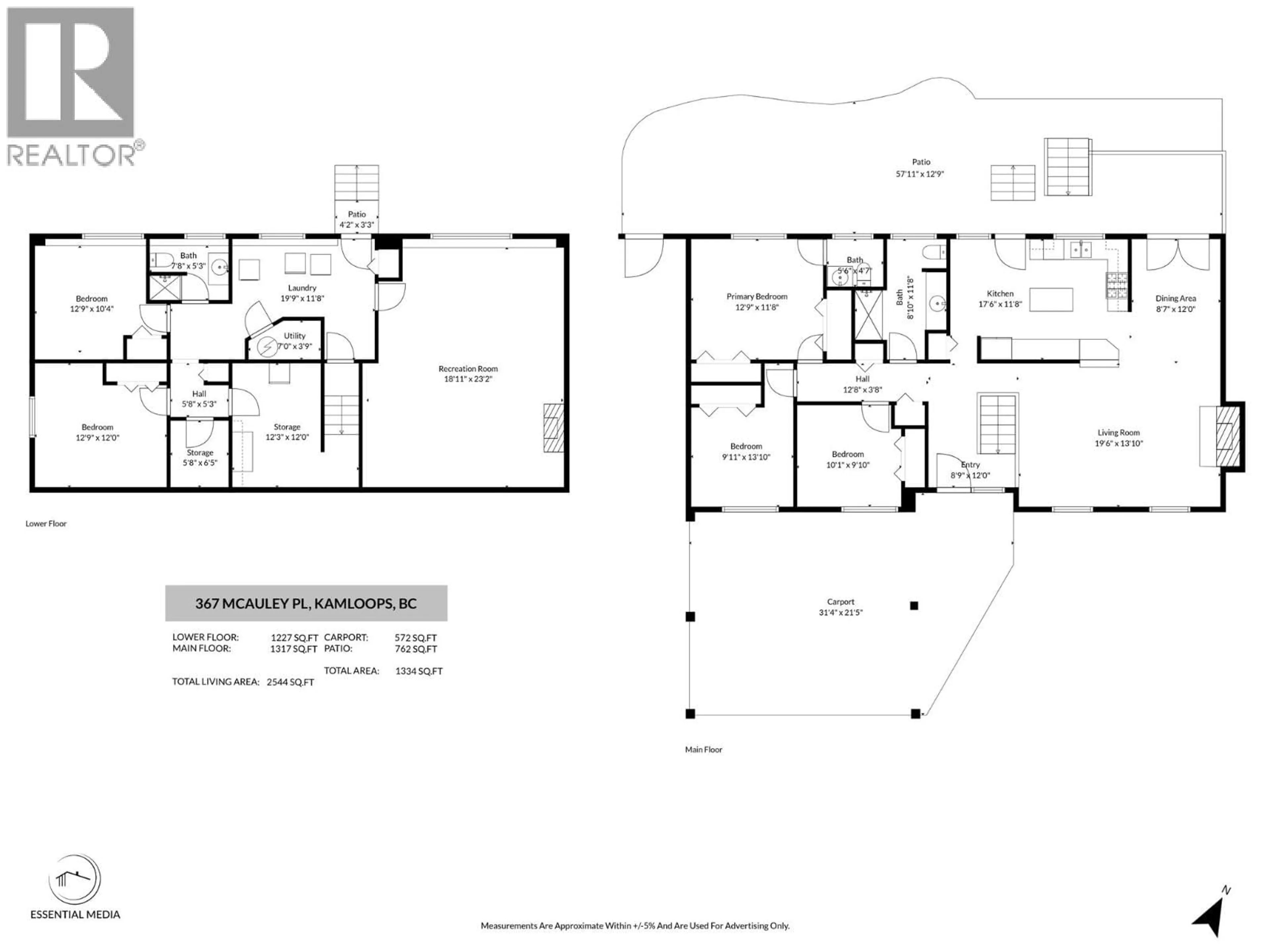
Property Details
Interior
Features
Basement Floor
Storage
12' x 9'Laundry room
8' x 13'8''Recreation room
23' x 17'Bedroom
12' x 11'6''Exterior
Features
Property History
76





