Unknown for 132 Tyler Ave, Onslow Mountain Nova Scotia B6L 6A9
178 days on Market

132 Tyler Ave, Onslow Mountain, Nova Scotia B6L 6A9

Detached
2
1
~1031 sqft
$•••,•••
$399,900
Get pre-qualifiedPowered by Neo Mortgage
Detached
2
1
~1031 sqft

Contact us about this property

Call

Highlights

Property Estimate

Days on market178 days

Estimated valueNot available

Price/Sqft$387/sqft

Monthly cost

Open Calculator

Description

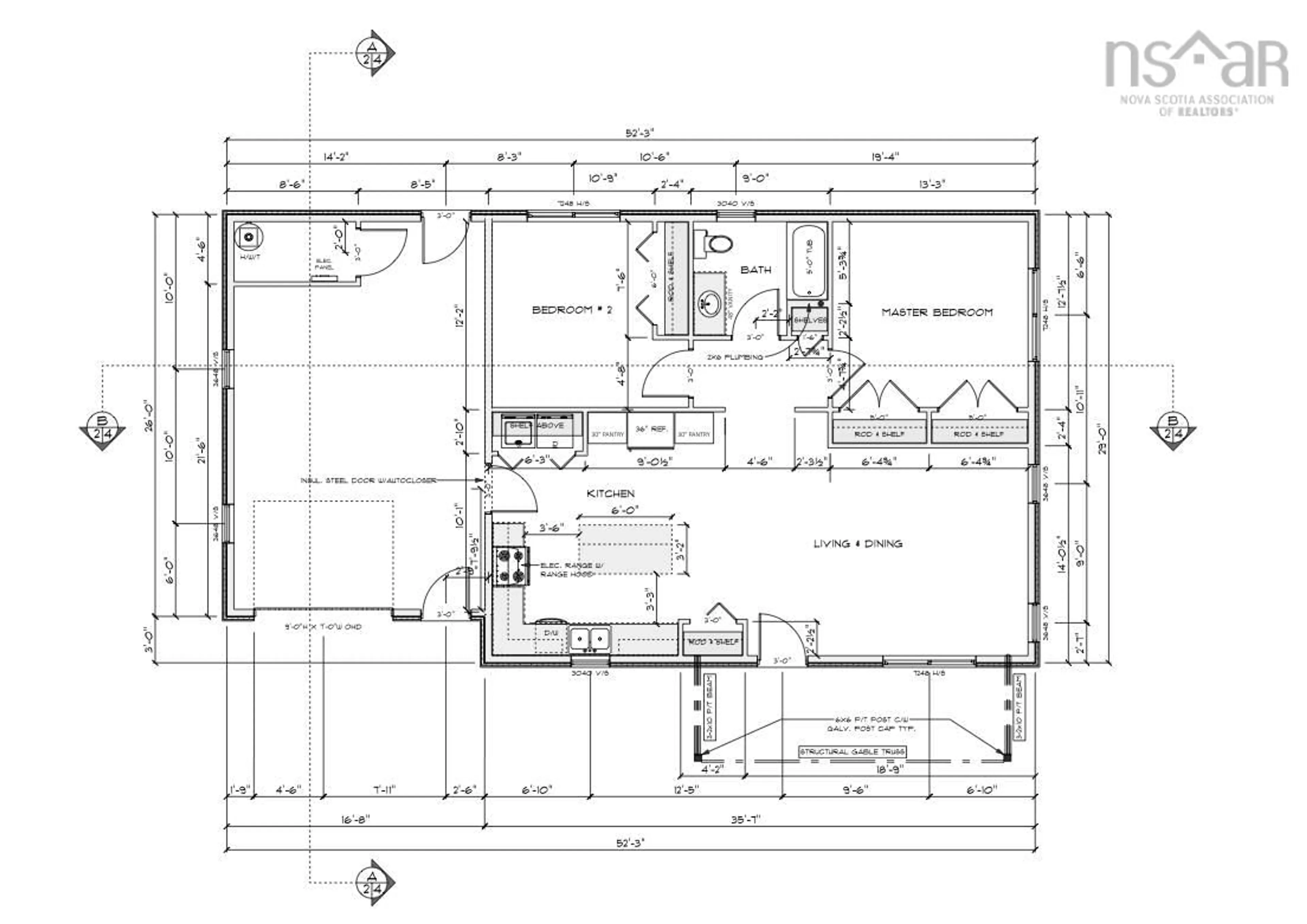
Looking for a new home that has 2 bedrooms on a heated in-floor slab in Colchester with attached garage? Look no further than this new home located on Tyler Ave, Onslow Mountain. This .77 acre property will be impressive. This new construction on slab will be mobility friendly with 36" door openings and lowered controls throughout. The kitchen features stainless steel appliances, plenty of cabinetry (soft close), two pantries and a gorgeous quartz countertop 6' island. Perfect for a small family this home has 2 large bedrooms and a four piece bathroom that includes quartz countertops and ceramic floor. The main floor bedrooms, living room and kitchen has laminate flooring throughout. The heating systems are in-floor heat, and ductless heat pump that offers A/C in the summer and heating in the winter. Energy efficiency is key with this home so your energy bills should be minimal. There is additional room for storage in the single attached garage. Lights are LED throughout the home. In the utility room located in the garage you'll find a 200 amp electrical breaker panel with pressure tank, electric hot water heater and HRV unit for air exchange in the home. The home has vinyl siding, asphalt roof and vinyl windows. On the exterior of the home you will have a new single gravel driveway, seeded lot (weather dependent) and a covered porch area on the front of the home with pot lights. Don't miss out on this new build with 8 year LUX home warranty ready for summer of 2025 possession. The purchase price includes HST. All HST rebates back to the builder.


Property Details

StyleOther
View-
Age of property-
SqFt~1031 SqFt
Lot Size-
Parking Spaces2
MLS ®Number202507264
Community NameOnslow Mountain
Data SourceNSAR
Listing byHants Realty Ltd.

Features

Heating: Ductless, In Floor

Main Floor Floor

Living Room

14.05 x 18.9

Kitchen

15.35 x 16.45

Primary Bedroom

13.3 x 12.75

Bedroom

10.9 x 12.2


Parking

Garage spaces 1

Garage type -

Other parking spaces 1

Total parking spaces 2


Property History

Apr 8, 2025
ListedActive
$399,900
178 days on market
history photo preview2
Listing by nsar®
Property listed by Hants Realty Ltd., Brokerage
Agent Banner Image
Interested in this property?Get in touch to get the inside scoop.

Market Data - Onslow Mountain

Geo Zone Map ThumbnailOnslow Mountain

Balanced Market

View Market Data

Detached house - for the past 30 days

Buyer's market Seller's market

Avg. Days on Market

Past 30 days

6 days

Compared to

2024

60 days

2023

43 days

2022

0 day

New Listings

Past 30 days

2 listings

Compared to

2024

0 listing

2023

0 listing

2022

2 listings

Units sold

Past 30 days

1 unit

Compared to

2024

3 units

2023

1 unit

2022

0 unit

Median Sold Price

Past 30 days

$188,000

Compared to

2024

$305,000

2023

$590,000


Population and Demographics

Overview

Total population 752
Average household income $95,143

Age (%)

0 to 19
19%
20 to 34
15%
35 to 49
18%
50 to 64
26%
65 and plus
22%

Household composition (%)

Single family
71%
Single person
23%
Multi person
5%
Multi family
1%

Mother tongue (%)

English
99%
Others
1%

House tenancy (%)

Owners
90%
Renters
10%

What’s nearby?Essentials within 5 km

Local Logic

Transportation Scores

Estimated Budget