745 Sussex Blvd, Kingston, Ontario K7M 5B4
Contact us about this property
Highlights
Estimated valueThis is the price Wahi expects this property to sell for.
The calculation is powered by our Instant Home Value Estimate, which uses current market and property price trends to estimate your home’s value with a 90% accuracy rate.Not available
Price/Sqft$399/sqft
Monthly cost
Open Calculator
Description
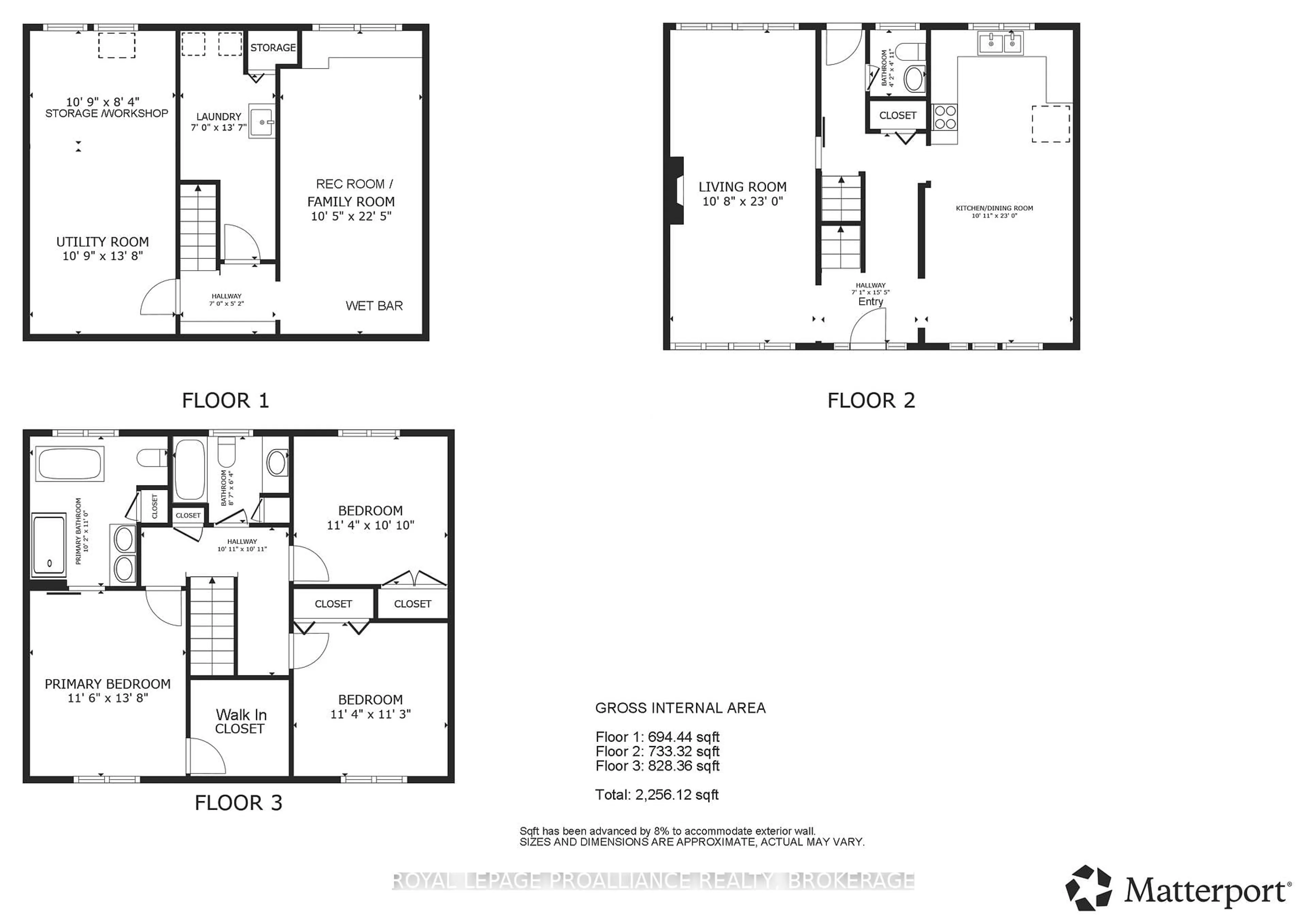
Welcome to 745 Sussex Blvd - a beautifully updated 3 bed, 2.5 bath home that blends timeless craftsmanship with modern comfort. Located in a family oriented neighbourhood known for its walkability and welcoming atmosphere, this home sits close to green spaces, reputable schools, and essential amenities-an ideal setting for those seeking both comfort and community. This inviting residence features a bright living room anchored by a gas fireplace and durable LVT flooring throughout the main level. The renovated kitchen stands out with handmade cherry cabinetry, quartz countertops, a marble backsplash, and new stainless steel appliances, offering both character and quality rarely found today. Upstairs, you'll find three comfortable bedrooms and a refreshed main bathroom. The primary suite is a true retreat, enhanced by a newly built 4 piece ensuite and a spacious walk in closet that adds everyday convenience and luxury. The fully finished lower level extends your living space with a cozy rec/TV room, a stylish dry bar, and a renovated laundry room. Practicality continues outside with a two car carport, generous storage, and an interlock driveway that adds both curb appeal and durability. The backyard is equally impressive, featuring a rear Rayner patio, perennial gardens, and a fully fenced yard-a perfect space for relaxing, entertaining, or enjoying time outdoors.
Property Details
Interior
Features
Main Floor
Living
3.25 x 7.01Gas Fireplace
Foyer
2.16 x 4.7Kitchen
3.33 x 7.01Combined W/Dining
Bathroom
1.27 x 1.52 Pc Bath
Exterior
Features
Parking
Garage spaces 2
Garage type Carport
Other parking spaces 4
Total parking spaces 6
Property History
38





