160A Bagot St, Kingston, Ontario K7L 3E8
Contact us about this property
Highlights
Estimated valueThis is the price Wahi expects this property to sell for.
The calculation is powered by our Instant Home Value Estimate, which uses current market and property price trends to estimate your home’s value with a 90% accuracy rate.Not available
Price/Sqft$800/sqft
Monthly cost
Open Calculator
Description
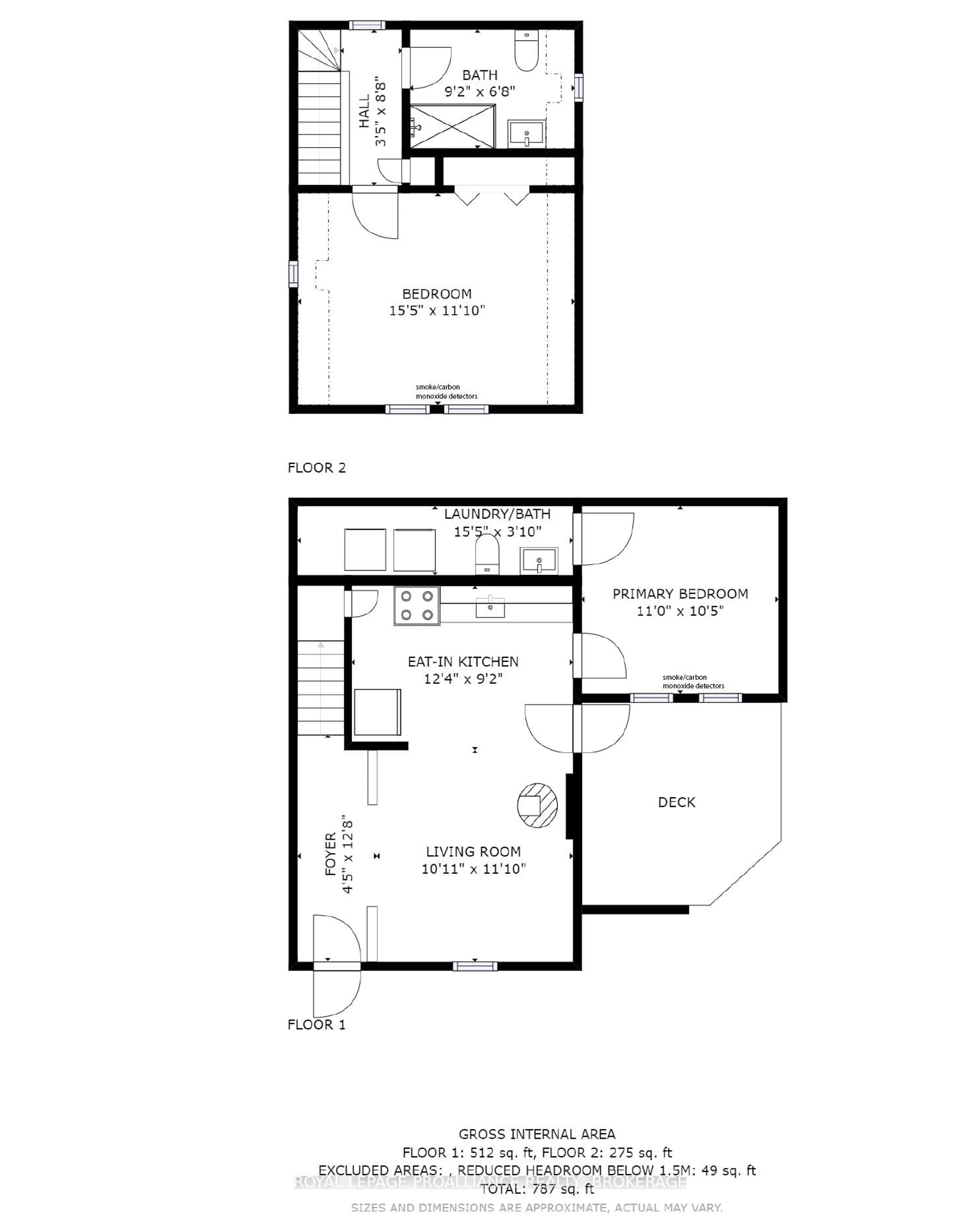
Charming two story home in Bagot offering a warm blend of rustic character and modern comfort, tucked away from the street for added privacy while still being just steps from all the action of downtown. This thoughtfully designed 780 sq. ft. residence features 2 bedrooms, 2 bathrooms, and well planned living spaces that maximize functionality and natural light. The 480 sq. ft. main floor includes a welcoming living room with pine flooring, a large wall mounted TV, and comfortable seating. The adjoining kitchen showcases dark cabinetry and wooden countertops, complemented by a bright dining area with a glass top table-an ideal layout for everyday living and entertaining. Upstairs, the 300 sq. ft. second level offers one inviting bedroom. The primary bedroom (180 sq. ft.) features a striking knotty pine accent wall, metal frame bed, geometric lighting, and generous windows. The second bedroom provides a serene, coastal inspired atmosphere perfect for guests or a quiet retreat. The home's bathroom is compact yet efficient, complete with a glass enclosed shower, modern vanity, and a skylight that fills the space with natural light. A dedicated laundry area with full sized appliances adds convenience. Warm wood tones throughout the home pair beautifully with crisp white walls, creating a bright, cozy, and contemporary feel. Hidden quietly behind the historic façade of Bagot Street lies a rare cottage retreat just steps from downtown. Walk to waterfront parks, restaurants, cafés, and boutique shops while enjoying the privacy of a tucked-away setting. A unique opportunity to live in the heart of Kingston without sacrificing tranquility. Walking distance from Hotel Deu, Kingston General, Queen's University.
Property Details
Interior
Features
Main Floor
Foyer
1.35 x 3.86Kitchen
3.76 x 2.79Eat-In Kitchen
Primary
3.35 x 3.18Bathroom
4.7 x 1.17Combined W/Laundry / 3 Pc Bath
Exterior
Features
Parking
Garage spaces -
Garage type -
Total parking spaces 2
Property History
31




















