2433 Trevor Dr, Oakville, Ontario L6L 5C4
Contact us about this property
Highlights
Estimated valueThis is the price Wahi expects this property to sell for.
The calculation is powered by our Instant Home Value Estimate, which uses current market and property price trends to estimate your home’s value with a 90% accuracy rate.Not available
Price/Sqft$911/sqft
Monthly cost
Open Calculator
Description
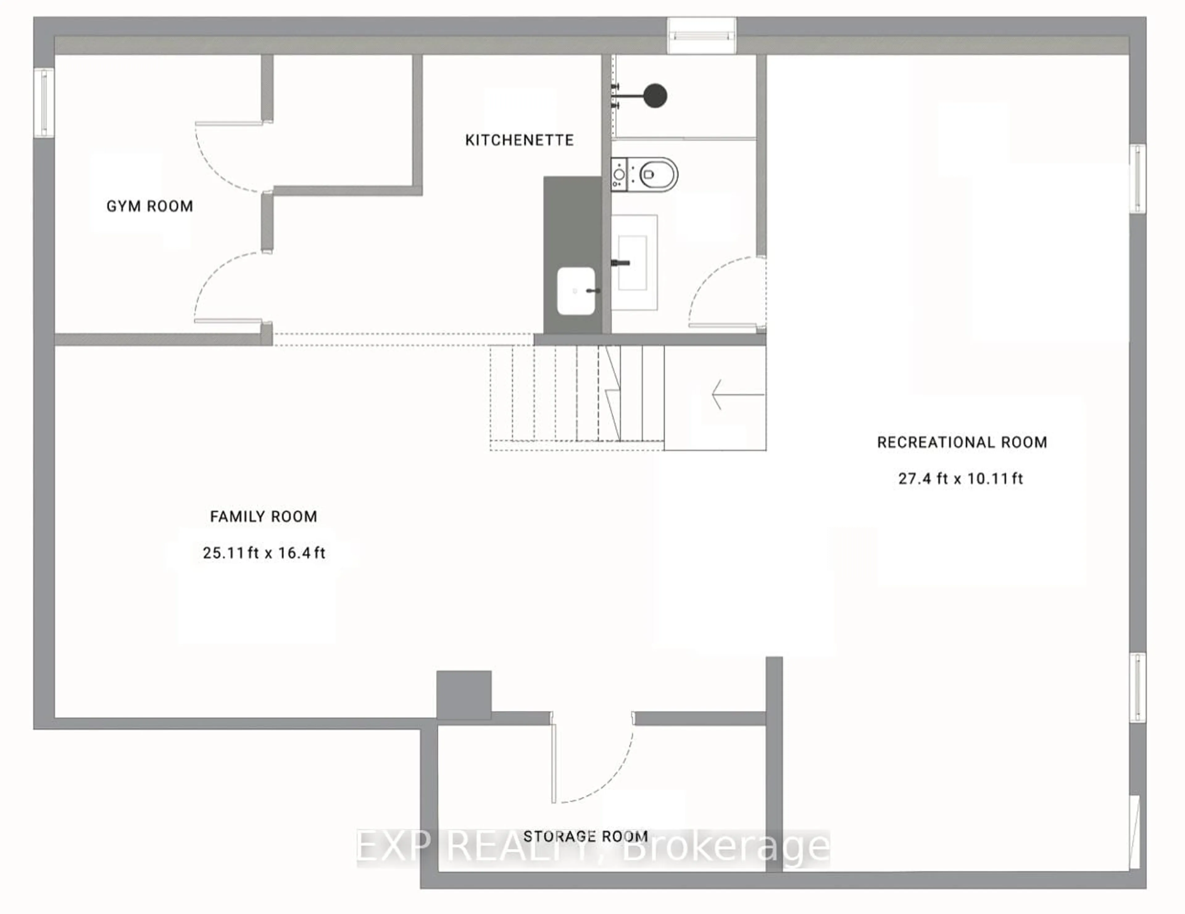
Welcome to this beautifully renovated luxury home in Oakville's highly desirable Bronte neighbourhood, known for its family-friendly atmosphere, scenic parks, walking trails, and charming lakeside lifestyle. With nearby marinas, shops, restaurants, and excellent schools, this location offers the perfect blend of convenience and relaxed coastal living.Completely redesigned with high-end finishes and thoughtful attention to detail, this home offers a bright, open-concept layout ideal for modern family living. The main level features a stunning gourmet kitchen with a Calcutta marble waterfall island, custom cabinetry, and premium appliances, seamlessly connecting to spacious dining and living areas. Sliding glass doors lead to a private backyard oasis, while a convenient side hallway includes a powder room and unique dog washing station.Upstairs, natural light fills the space through skylights and a glass-accented staircase. Four generously sized bedrooms include a serene primary suite with a walk-in closet and a luxurious ensuite featuring double sinks and a walk-in shower. A full bathroom and laundry room complete this level.The fully finished lower level extends the living space with a recreation room, games area, kitchenette, den, and a stylish three-piece bathroom, offering excellent flexibility for guests or extended family.Outside, the private backyard is designed for both relaxation and entertaining, featuring a heated pool, multiple seating areas, and lush gardens. With seamless indoor-outdoor flow and views from the rear of the home, this property truly feels like a personal retreat.
Property Details
Interior
Features
Main Floor
Foyer
2.74 x 2.26Kitchen
5.11 x 3.28Other
3.15 x 3.15Wet Bar
Living
5.54 x 3.66Exterior
Features
Parking
Garage spaces 2
Garage type Attached
Other parking spaces 4
Total parking spaces 6
Property History
32


























