2 days on Market

1128 Sylvania Dr, Mississauga, Ontario L4Y 2M1

Semi-Detached
4
2
~1100-1500 sqft
$729,000
Get pre-qualifiedPowered by nesto
Semi-Detached
4
2
~1100-1500 sqft

Contact us about this property

Call

Highlights

Property Estimate

Days on market2 days

Estimated valueNot available

Price/Sqft$574/sqft

Monthly cost

Open Calculator

Description

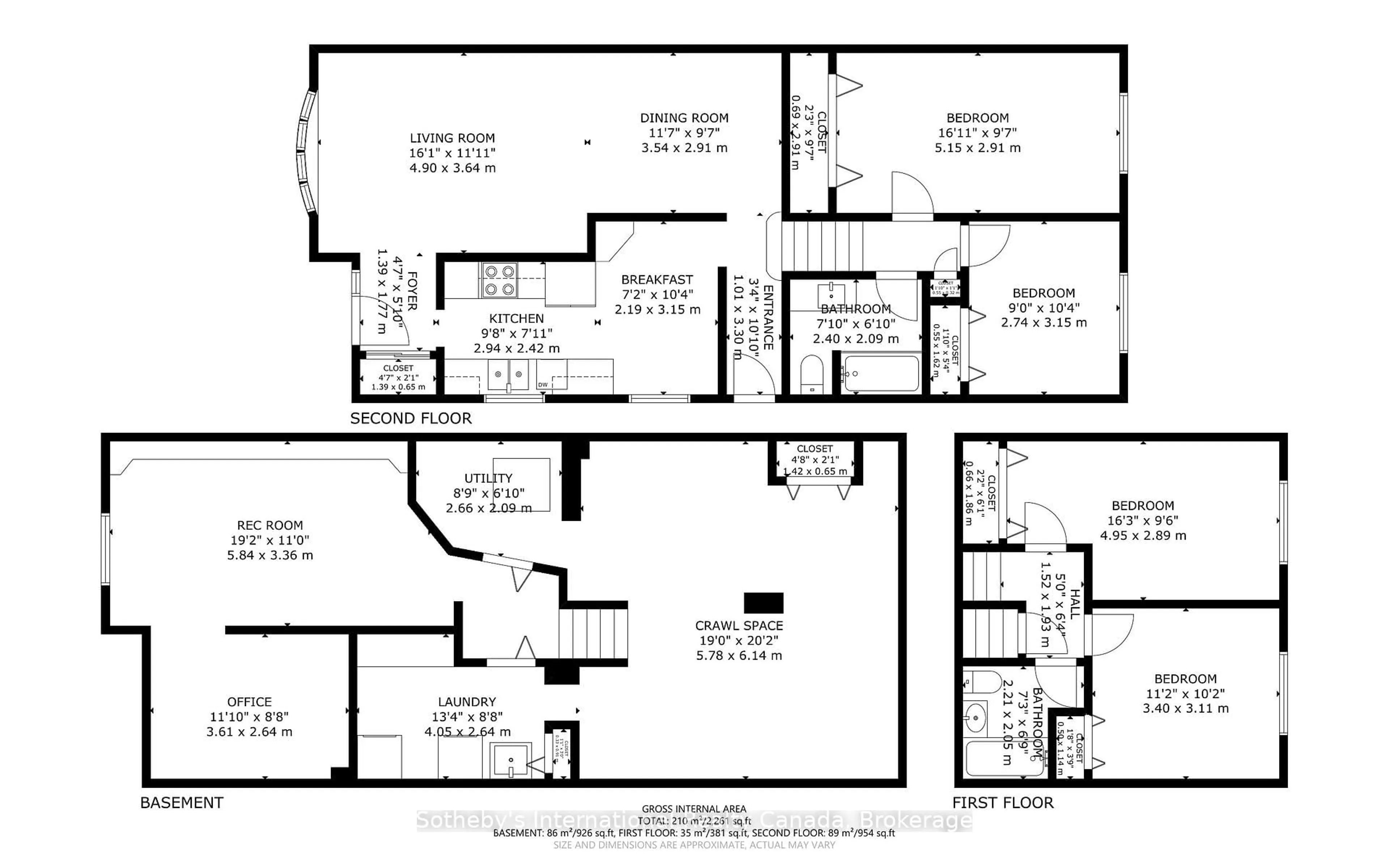
Tucked into the desirable, mature, Applewood neighbourhood on a wide 48 x 122 foot lot, this well maintained, brick semi-detached backsplit offers an incredible opportunity to create a home that truly reflects your vision. With 4 bedrooms, 2 full bathrooms, and over 1,300 sq ft above grade plus a partially finished basement, the layout provides generous living space across multiple levels, ideal for growing families, multi-generational living, or those needing room to work from home. The main floor features a bright living and dining area with large windows, an eat-in kitchen, and a functional flow, while the upper and lower levels offer spacious bedrooms and full baths. The basement includes a large recreation room with an abundance of built in bookshelves perfect for a home library, office, laundry, and ample storage space. Outside, the deep backyard and private driveway with parking for three vehicles add everyday practicality. Located steps from parks, schools, transit, trails, shopping, and everyday amenities, this is a rare chance to get into a highly desirable Mississauga community.


Property Details

StyleBacksplit 3
View-
Age of property-
SqFt~1100-1500 SqFt
Lot Size5,002 SqFt(122 x 41)
Parking Spaces3
MLS ®NumberW12765666
Community NameApplewood
Data SourceTRREB
Listing bySotheby's International Realty Canada, Brokerage

Features

Heating: Forced Air
Central Vacuum
Cooling: Central Air
Basement: Full, Part Fin

Main Floor

Br

4.95 x 2.89

Bathroom

2.21 x 2.05

Br

3.4 x 3.11


Features

Lot size: 5,002 SqFt

Parking

Garage spaces -

Garage type -

Total parking spaces 3


Property History

Feb 6, 2026
ListedActive
$729,000
2 days on market
history photo preview36
Listing by trreb®
Property listed by Sotheby's International Realty Canada, Brokerage, Brokerage
Agent Banner Image
Interested in this property?Get in touch to get the inside scoop.

Market Data - Applewood

Geo Zone Map ThumbnailApplewood

Seller's Market

View Market Data

Semi-Detached house - for the past 30 days

Buyer's market Seller's market

Avg. Days on Market

Past 30 days

28 days

Compared to

2025

19 days

2024

58 days

2023

7 days

New Listings

Past 30 days

6 listings

Compared to

2025

3 listings

2024

1 listing

2023

1 listing

Units sold

Past 30 days

3 units

Compared to

2025

2 units

2024

1 unit

2023

1 unit

Median Sold Price

Past 30 days

$981,000

Compared to

2025

$998,750

2024

$905,000

2023

$820,000


Population and Demographics

Overview

Total population 34854
Average household income $111,913

Age (%)

0 to 19
21%
20 to 34
18%
35 to 49
19%
50 to 64
22%
65 and plus
20%

Household composition (%)

Single family
67%
Single person
27%
Multi person
4%
Multi family
1%

Mother tongue (%)

English
54%
Polish
8%
Ukrainian
4%
Urdu
4%
Vietnamese
3%
Arabic
3%
Spanish
3%
Tagalog (Pilipino, Filipino)
2%
Serbian
2%
Italian
2%
Portuguese
1%
Others
1%
Russian
1%
Tamil
1%
Albanian
1%

House tenancy (%)

Owners
55%
Renters
45%

What’s nearby?Essentials within 5 km

Local Logic

Transportation Scores

Estimated Budget