4662 Dundas St, Toronto, Ontario M9A 1A6
Contact us about this property
Highlights
Estimated valueThis is the price Wahi expects this property to sell for.
The calculation is powered by our Instant Home Value Estimate, which uses current market and property price trends to estimate your home’s value with a 90% accuracy rate.Not available
Price/Sqft$696/sqft
Monthly cost
Open Calculator
Description
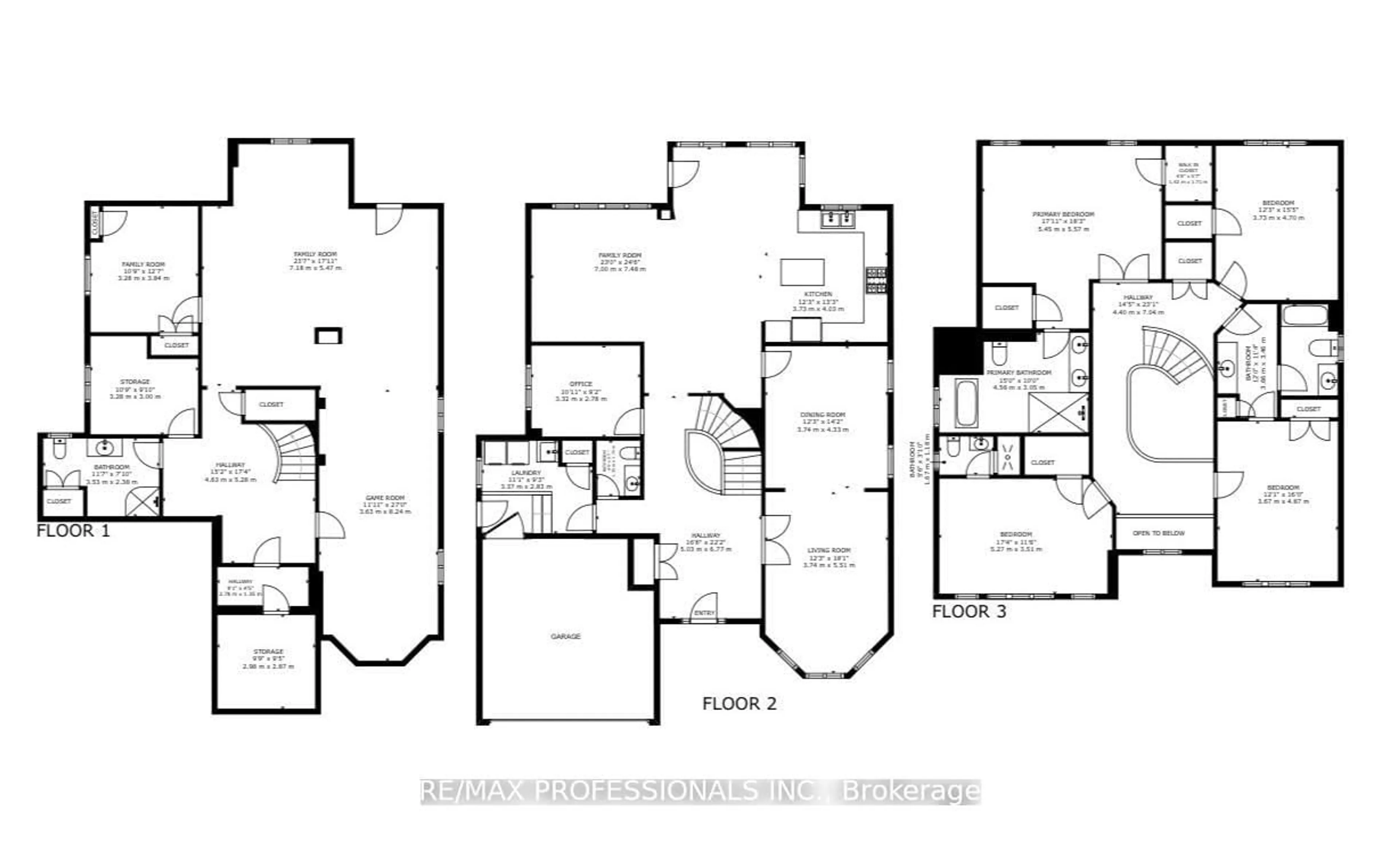
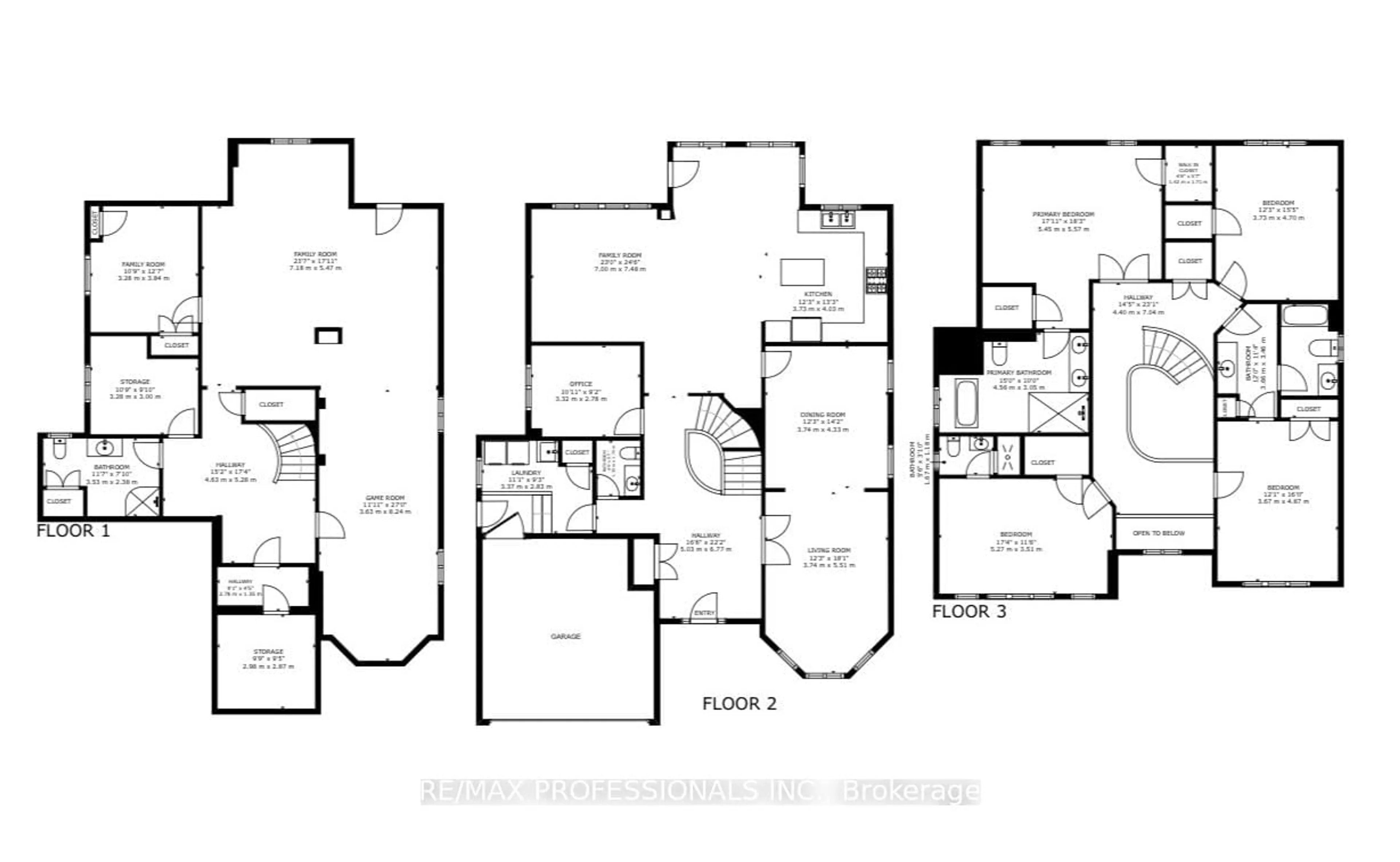
A perfect family home on a large (50 x 150) lot in the desirable Chestnut Hills neighbourhood. This 4 Bedroom home is meticulously maintained and has been in the same family for 25 years. Built in 2000, this custom all-brick home boasts over 3200 of above grade sq feet + 1500 sq feet in the lower level. The main floor features hardwood flooring throughout, a welcoming foyer with spiral oak staircase, *9 ft ceilings, formal dining and living room, a separate office/den(+) and large open concept kitchen & family room overlooking the landscaped yard with towering/mature trees. Powder room and large laundry area on main floor with exits to garage and side yard. The upper level features 4 large bedrooms + 3 full bathrooms. The primary bedroom w/ his and hers walk-in closets and a 5-piece ensuite bathroom with heated flooring. The 2nd and 3rd bedrooms feature large closets and access to a large jack and jill 4-piece washroom. The 4th bedroom w/ 3 piece ensuite bathroom - perfect for guests/ in-law or nanny suite. A functional and efficient layout! (see floor plan and virtual tour) The lower level was professionally finished - the perfect man cave! Large rec room/family room area + games room + walk-out to yard, *8 ft ceilings, additional bedroom with closet, large 3 piece washroom, cold room with sump pump + tons of storage space! *New (2024) Heat Pump- efficient duel system heat & ac + furnace. *All updated insulation in Attic (2024) Conveniently located on Dundas and does sit back from the road offering a large 8+ car driveway with stamped concrete walkways. The setting in the backyard is stunning with large/mature trees, custom three-tiered deck, sand box, fully fenced and landscaped. Located in the luxurious Edenbridge/Humber Valley Community and nestled in the catchment of one of the best school districts in the GTA - close to Our Lady of Sorrows, Kingsway College School, ECI and more. Close to Humbertown Park and Shops, quick access to TTC and GO Transit & more!
Upcoming Open Houses
Property Details
Interior
Features
Main Floor
Living
5.51 x 3.74Combined W/Dining / hardwood floor
Dining
4.33 x 3.74Combined W/Living / hardwood floor
Kitchen
4.03 x 3.73Open Concept / Combined W/Family / Centre Island
Family
7.48 x 7.0Open Concept / Combined W/Kitchen
Exterior
Features
Parking
Garage spaces 2
Garage type Attached
Other parking spaces 8
Total parking spaces 10
Property History
49









