11 Donwoods Dr, Toronto, Ontario M4N 2E9
Contact us about this property
Highlights
Estimated valueThis is the price Wahi expects this property to sell for.
The calculation is powered by our Instant Home Value Estimate, which uses current market and property price trends to estimate your home’s value with a 90% accuracy rate.Not available
Price/Sqft$2,363/sqft
Monthly cost
Open Calculator
Description
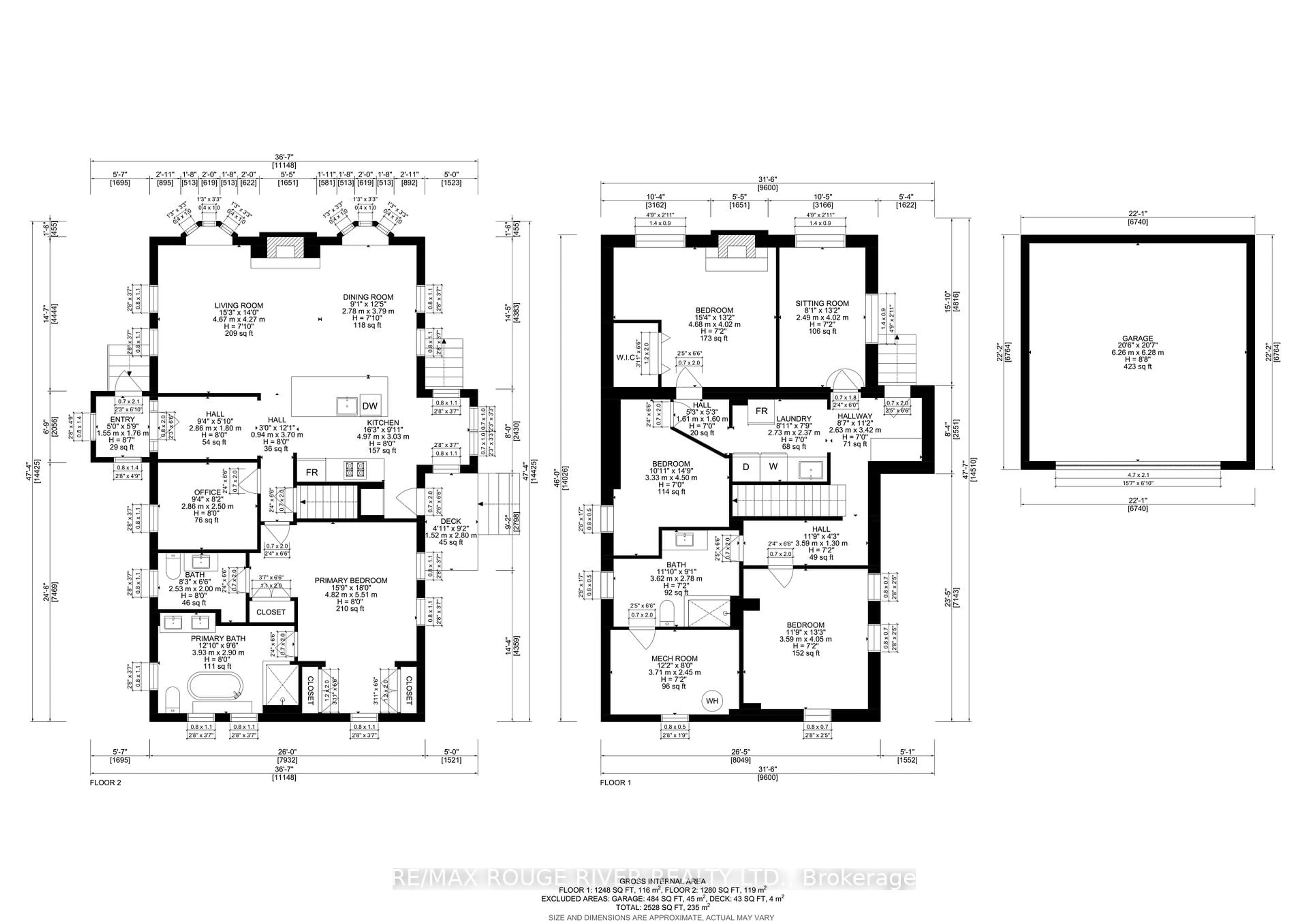
Tucked into the lush, rolling landscape of prestigious Hoggs Hollow, this rare and character rich 1927 bungalow seamlessly blends timeless charm with refined modern upgrades. Perched at the top of the valley just moments from Yonge Street minutes to Loblaws, Fine Coffee Shops, Restaurants and Quaint shopping. This residence offers the perfect balance of privacy, nature, and urban convenience - an exceptional alternative to condominium living. The thoughtfully renovated main level showcases a chef-inspired kitchen designed for both everyday living and elegant entertaining, featuring premium Miele built-in appliances, including a wall oven and coffee system, gas range, and an expansive centre island. A charming breakfast nook overlooks the rear yard & gardens, creating a serene setting for morning coffee. Step outside to your private patio retreat complete with a cabana-style shed ideal for intimate gatherings or quiet relaxation surrounded by mature greenery. The main level also features a spacious primary suite with a spa-like five-piece ensuite, including a freestanding soaking tub, glass enclosed shower, and dual sink vanity. A versatile den offers flexibility as a guest room, office, or secondary bedroom. The walk-up lower level adds valuable living space with a sunken recreation room highlighted by increased ceiling height and a gas fireplace with slate surround and wood mantle. Additional rooms with above-grade windows provide flexibility for home office, guests and if required In-Law/ Live Nanny Suite potential. A large three-piece bathroom and generous mechanical/storage room complete this level. 2528 total internal square footage. Outdoors the engineered & reconstructed structurally sound double garage could provide extra bonus living and entertaining areas above. Perfectly positioned near premier lifestyle amenities including Rosedale Golf Club and top-tier Schools and Sunnybrook Health Sciences - one of Canada's Top Hospitals. .
Property Details
Interior
Features
Main Floor
Living
5.25 x 4.24hardwood floor / Gas Fireplace / Bay Window
Dining
3.8 x 3.04hardwood floor / Combined W/Living / Bay Window
Kitchen
3.53 x 2.93Modern Kitchen / Centre Island / Breakfast Bar
Breakfast
1.71 x 1.61hardwood floor / Window / O/Looks Garden
Exterior
Features
Parking
Garage spaces 2
Garage type Detached
Other parking spaces 1
Total parking spaces 3
Property History
50




















