1 hour on Market

100 Timpson Dr, Aurora, Ontario L4G 5N5

Detached
3 + 1
3
~1500-2000 sqft
$1,299,900
Get pre-qualifiedPowered by nesto
Detached
3 + 1
3
~1500-2000 sqft

Contact us about this property

Call

Highlights

Property Estimate

Days on market1 hour

Estimated valueNot available

Price/Sqft$758/sqft

Monthly cost

Open Calculator

Description

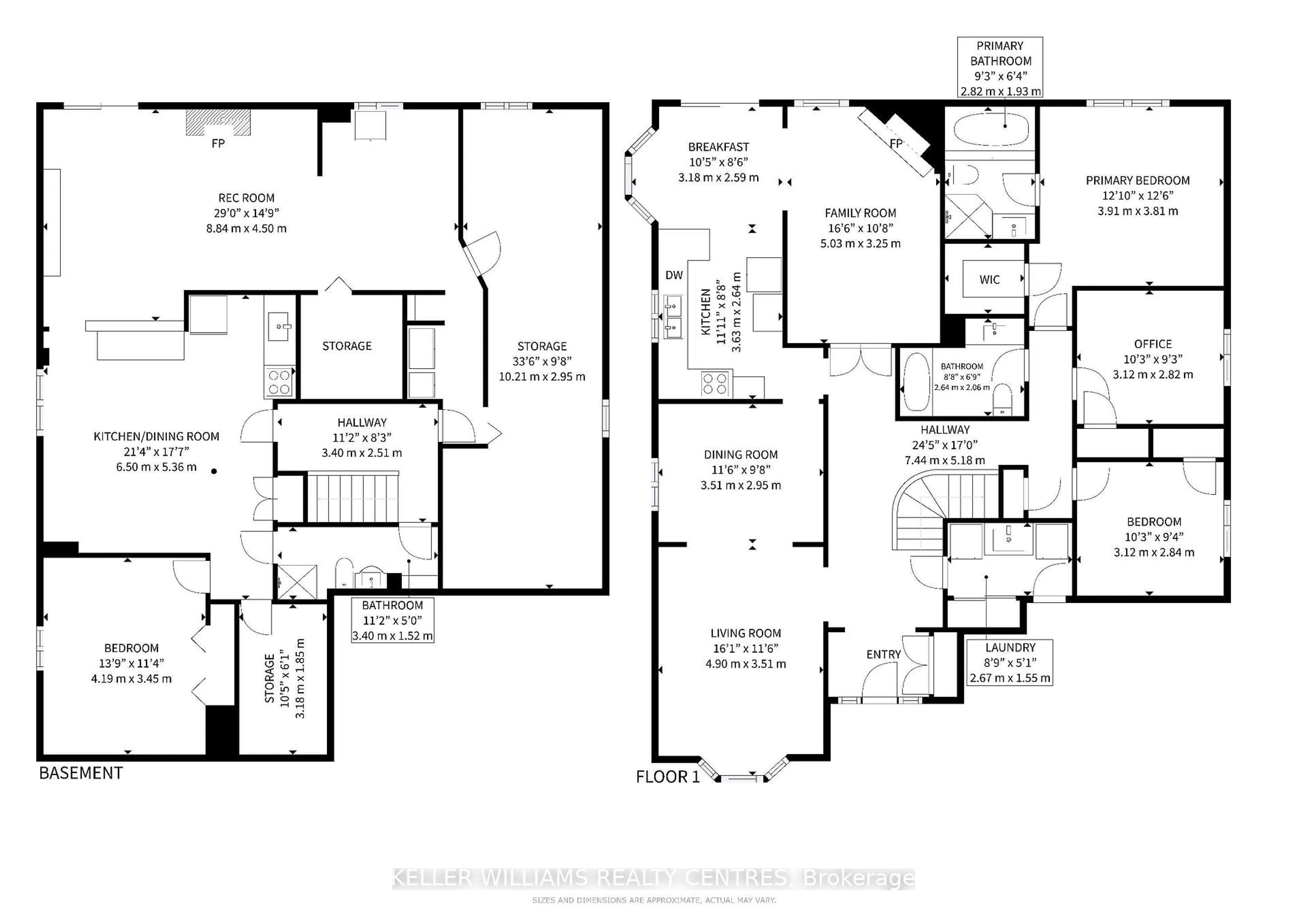
Nestled in the heart of Aurora Highlands, 100 Timpson Drive offers the perfect blend of tranquility and everyday convenience. This well established neighbourhood is known for its pride of ownership, tree-lined streets, and an abundance of nearby schools, parks, and woodlands, making it an ideal setting for families and outdoor enthusiasts alike. This all-brick raised bungalow features 3+ bedrooms, 3 bathrooms with a main-floor primary bedroom with ensuite, along with main-floor laundry for added ease. The bright eat-in kitchen opens to a welcoming family room with fireplace, overlooking the ravine-backed backyard. Walk out to the raised deck with staircase access to the yard, perfect for entertaining or unwinding in a peaceful, natural setting. Formal living and dining rooms provide comfortable spaces for hosting and everyday living. The walk-out basement is filled with natural light through large windows and sliding doors and includes a spacious recreation room, basement kitchen, bedroom, and bathroom-an ideal setup for an in-law suite or extended family living. The home is conveniently located with easy access to Aurora GO station and Highways 404 and 400, this home offers seamless connectivity while maintaining a quiet, residential feel.


Property Details

StyleBungalow-Raised
View-
Age of property31-50
SqFt~1500-2000 SqFt
Lot Size6,108 SqFt(130.47 x 46.82)
Parking Spaces6
MLS ®NumberN12737990
Community NameNeighborhood of Aurora
Data SourceTRREB
Listing byKELLER WILLIAMS REALTY CENTRES

Features

Heating: Forced Air
Central Vacuum
Cooling: Central Air
Fireplace
Basement: Fin W/O

Main Floor

Living

16.6 x 11.6

Combined W/Dining / Bay Window

Dining

11.6 x 9.8

Combined W/Living / Window

Kitchen

21.6 x 16.4

Eat-In Kitchen / W/O To Deck / Bay Window

Family

16.6 x 10.8

Gas Fireplace / Double Doors / O/Looks Ravine


Features

Lot size: 6,108 SqFt

Parking

Garage spaces 2

Garage type Attached

Other parking spaces 4

Total parking spaces 6


Property History

Jan 29, 2026
ListedActive
$1,299,900
1 hour on market
history photo preview48
Listing by trreb®
Property listed by KELLER WILLIAMS REALTY CENTRES, Brokerage
Agent Banner Image
Interested in this property?Get in touch to get the inside scoop.

Market Data - Neighborhood of Aurora

Geo Zone Map ThumbnailNeighborhood of Aurora

Strong Buyer's Market

View Market Data

Detached house - for the past 30 days

Buyer's market Seller's market

Avg. Days on Market

Past 30 days

47 days

Compared to

2025

35 days

2024

26 days

2023

19 days

New Listings

Past 30 days

28 listings

Compared to

2025

25 listings

2024

17 listings

2023

27 listings

Units sold

Past 30 days

20 units

Compared to

2025

25 units

2024

24 units

2023

24 units

Median Sold Price

Past 30 days

$1,380,000

Compared to

2025

$1,660,500

2024

$1,365,000

2023

$1,431,500


Population and Demographics

Overview

Total population 61136
Average household income $175,345

Age (%)

0 to 19
24%
20 to 34
17%
35 to 49
21%
50 to 64
23%
65 and plus
15%

Household composition (%)

Single family
78%
Single person
19%
Multi person
2%
Multi family
1%

Mother tongue (%)

English
66%
Mandarin
9%
Iranian Persian
6%
Yue (Cantonese)
5%
Others
3%
Russian
3%
Italian
2%
Spanish
1%

House tenancy (%)

Owners
81%
Renters
19%

What’s nearby?Essentials within 5 km

Local Logic

Transportation Scores

Estimated Budget