285 West Lawn Cres, Whitchurch-Stouffville, Ontario L4A 1X3
Contact us about this property
Highlights
Estimated valueThis is the price Wahi expects this property to sell for.
The calculation is powered by our Instant Home Value Estimate, which uses current market and property price trends to estimate your home’s value with a 90% accuracy rate.Not available
Price/Sqft$445/sqft
Monthly cost
Open Calculator
Description
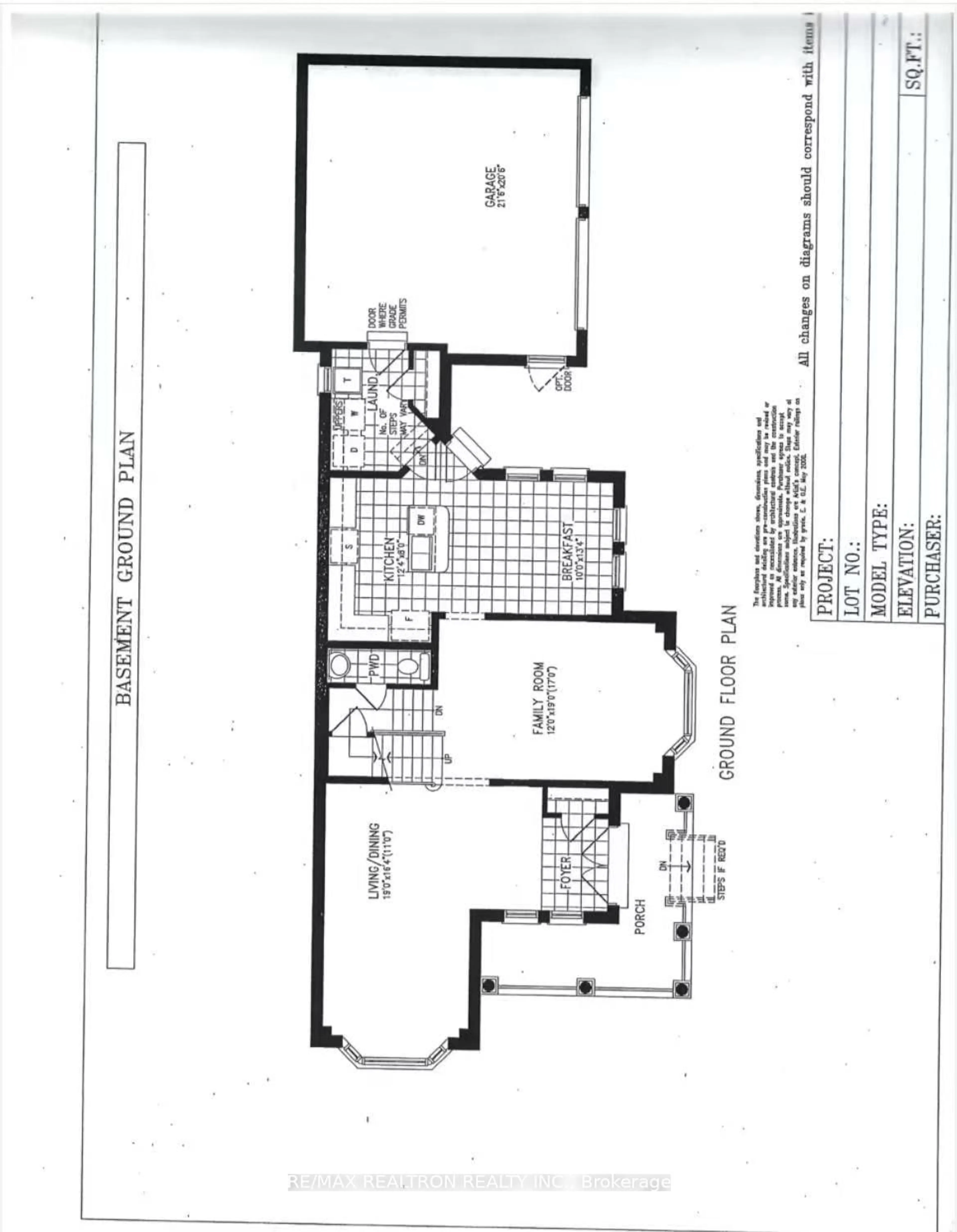
Welcome to this beautifully maintained 2-storey Detached Home in a Prestigious Neighborhood In The Heart Of Stouffville! This spacious home features 4 generous bedrooms, 3 bathrooms, and a functional layout designed for both everyday comfort and entertaining. The main level boasts a bright living and dining area, a versatile family room, a modern kitchen with breakfast area, and convenient main-floor laundry. Upstairs, you'll find four spacious bedrooms. The unfinished basement offers endless potential for customization to suit your needs. The Property Conveniently located near Shops, Restaurants, Parks, High-Ranking School, Golf Course And Other Amenities, Go Station Near By, just a 10 Mins Drive To Hwy 404**** Don't miss out on this opportunity to make this stunning property yours!***
Upcoming Open Houses
Property Details
Interior
Features
Main Floor
Dining
5.7926 x 5.0hardwood floor / Combined W/Living
Family
5.7926 x 3.6585hardwood floor / Bay Window
Living
5.7926 x 5.0hardwood floor / Large Window
Kitchen
3.78 x 2.439Ceramic Floor / Centre Island / Side Door
Exterior
Features
Parking
Garage spaces 2
Garage type Attached
Other parking spaces 3
Total parking spaces 5
Property History
10











