12 Northview St, Kawartha Lakes, Ontario K0M 1G0
Contact us about this property
Highlights
Estimated valueThis is the price Wahi expects this property to sell for.
The calculation is powered by our Instant Home Value Estimate, which uses current market and property price trends to estimate your home’s value with a 90% accuracy rate.Not available
Price/Sqft$412/sqft
Monthly cost
Open Calculator
Description
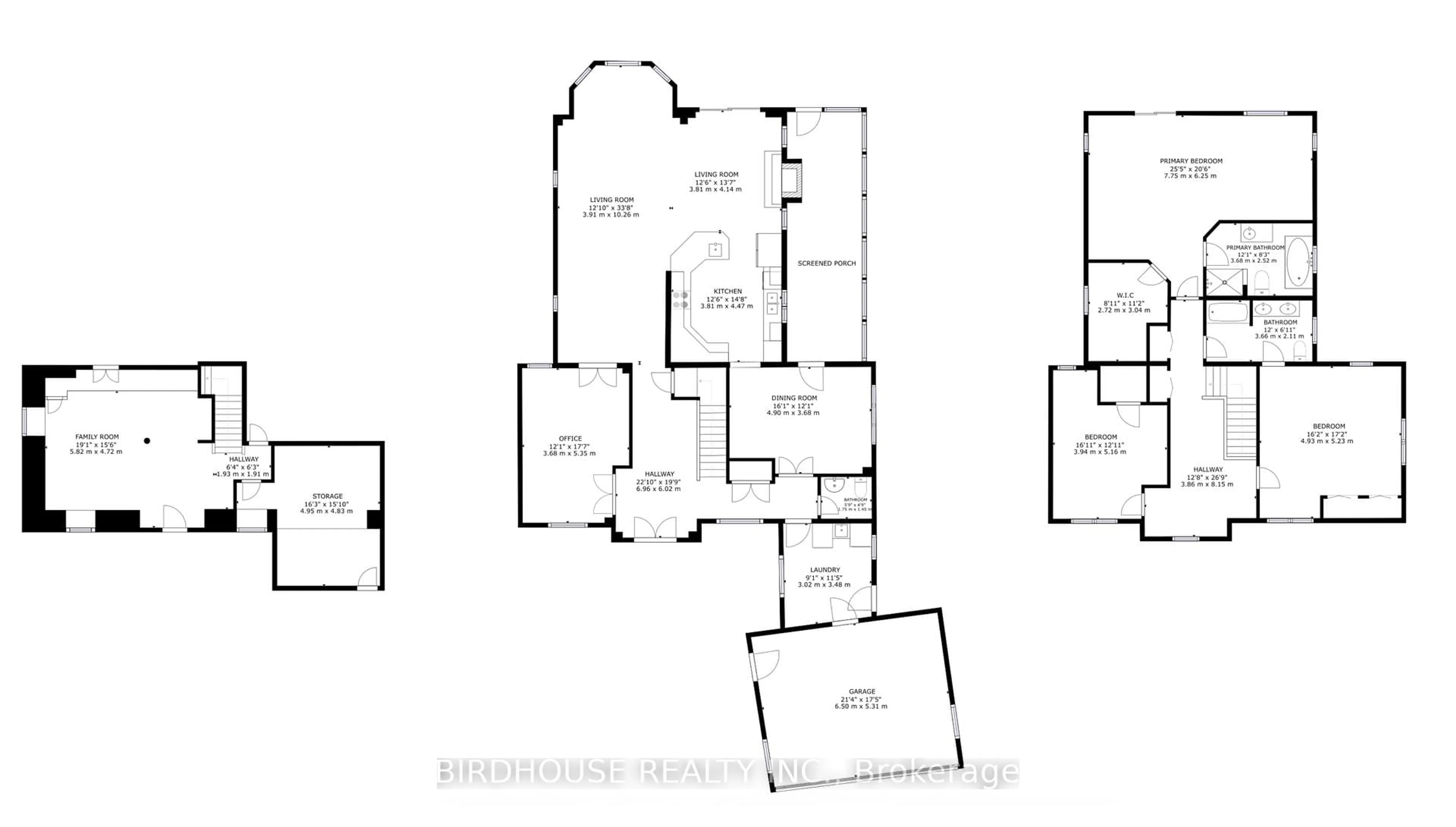
Custom Built Home On Sturgeon Lake, A Truly Unique Waterfront Property On The Western Shore Of Sturgeon Lake. Over An Acre With Trees Sloping To 75' Of Shoreline With Stone Retaining Wall For Dock Privacy. Built In 2003 & Features High Ceilings, Lovely Wood Floors, French Doors, Custom Built Gourmet Kitchen With Built-In Appliances. Formal Dining Room & Cozy Living Room. "Best Room" Is Screened-In Porch. Great Rm Has Numerous Windows & Doors Looking Out Over The Breathtaking View Across To Sturgeon Point. Upstairs Features 3 Bedrooms, One With Ensuite And Than A Spectacular Master Suite With Balcony Overlooking Lake, Huge Walk-In Closet & 4pc Ensuite. Over The 2 Car Garage Is Beautiful In-Law Suite With Separate Entrance With Sloping Ceilings, Fireplace And 3pc Bathroom. This Home Was Designed For Every Room To Have A View Of The Lake. Big Wood Lot At Back That You Could Build A Separate Shop On.
Upcoming Open House
Property Details
Interior
Features
Main Floor
Office
3.68 x 5.35Dining
4.9 x 3.68Family
5.82 x 4.72Living
3.91 x 10.26Walk-Out
Exterior
Features
Parking
Garage spaces 2
Garage type Attached
Other parking spaces 6
Total parking spaces 8
Property History
48







