70 Glenroy Rd #1, London South, Ontario N5Z 4W9
Contact us about this property
Highlights
Estimated valueThis is the price Wahi expects this property to sell for.
The calculation is powered by our Instant Home Value Estimate, which uses current market and property price trends to estimate your home’s value with a 90% accuracy rate.Not available
Price/Sqft$464/sqft
Monthly cost
Open Calculator
Description
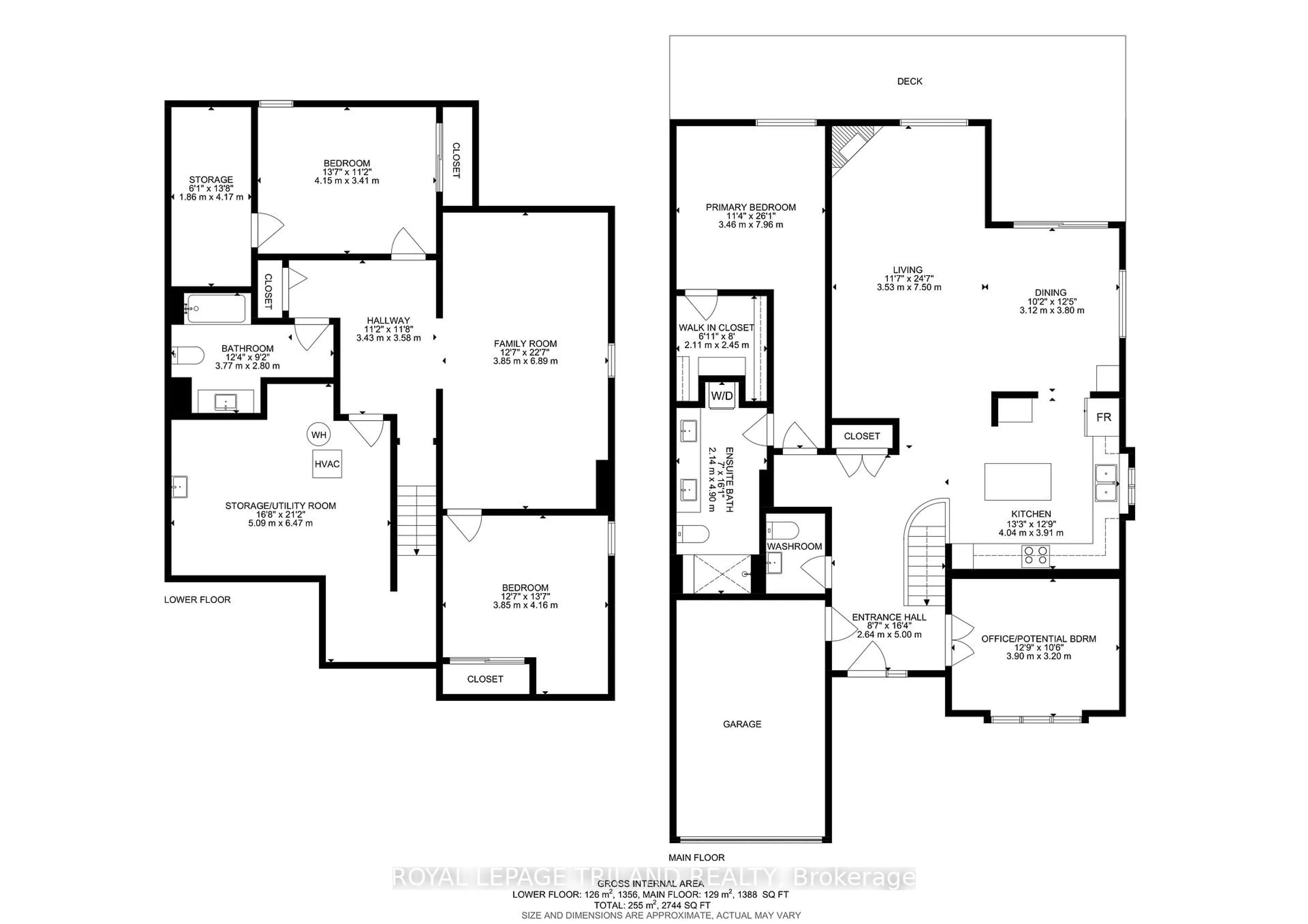
Gorgeous 1 floor, spacious end unit townhouse with 3 bedrooms, and an office (that could be a 4th bedroom!), 2.5 baths in a beautiful, wooded, quiet community. The kitchen is nothing short of spectacular and feels straight out of a designer magazine, featuring a large island, extensive granite countertops, abundant cabinetry, a stylish backsplash, and under-cabinet lighting. The open concept main living area is bright, with many large windows filling the space with natural light. The spacious living room features a gas fireplace and flows seamlessly into the dining area, which easily seats six with room for more, as well as patio doors leading to the outdoor living space. A convenient powder room for guests is also located on the main level, along with luxury vinyl flooring and pot lights throughout. The main floor also offers a large primary bedroom that easily accommodates a king-size bed and nightstands, complete with a walk-in closet and a spacious ensuite featuring double sinks, granite countertops, excellent storage, and a fresh modern design. Main floor laundry adds even more convenience. The lower level provides an impressive amount of additional living space, with pot lights, fresh paint, and new carpet, as well as a huge family room, two large bedrooms with generous closets, a full bathroom, and plenty of unfinished storage space. The garage also includes sturdy built-in wall shelving while still comfortably fitting a vehicle. From the open concept living space, step through the patio doors to the sprawling, partially covered back deck that spans the width of the home and overlooks a garden area. The backyard is private, treed, and beautifully secluded, and there is a gas line for the BBQ. The complex is a perfect reflection of the "Forest City," surrounded by big, beautiful trees in a fantastic location just minutes to the 401. White Oaks Mall, LHSC hospital, public transit, shops, and restaurants are all close by. This is the one you've been waiting for!
Property Details
Interior
Features
Lower Floor
Bathroom
3.77 x 2.84 Pc Bath
Family
3.85 x 6.89Br
3.85 x 4.16Br
4.15 x 3.41Exterior
Parking
Garage spaces 1
Garage type Attached
Other parking spaces 1
Total parking spaces 2
Condo Details
Inclusions
Property History
48



















