401 Fielden Ave, Port Colborne, Ontario L3K 4T9
Contact us about this property
Highlights
Estimated valueThis is the price Wahi expects this property to sell for.
The calculation is powered by our Instant Home Value Estimate, which uses current market and property price trends to estimate your home’s value with a 90% accuracy rate.Not available
Price/Sqft$320/sqft
Monthly cost
Open Calculator
Description
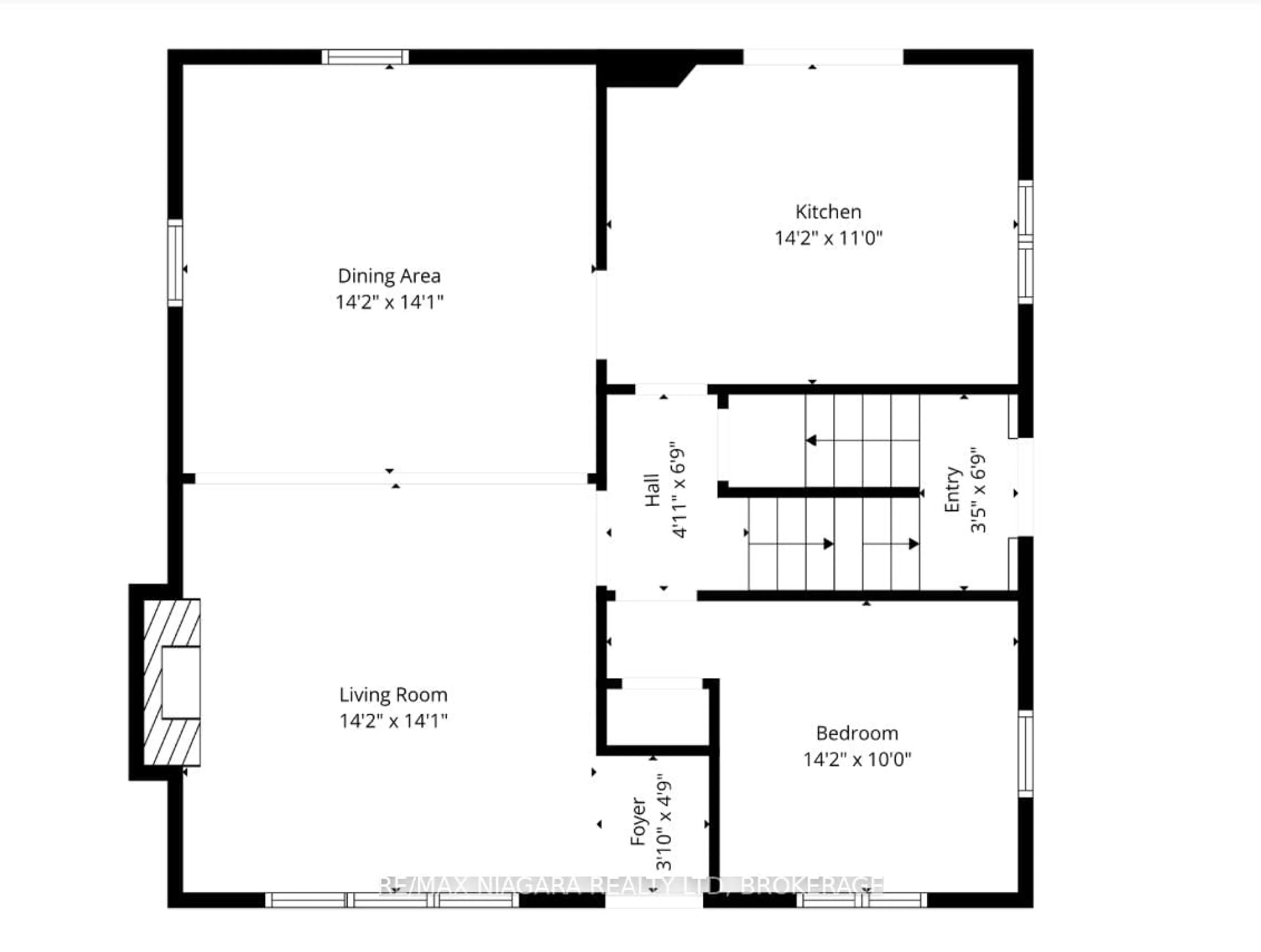
Charming 1&1/2 storey home in one of Port Colborne's most convenient and desirable locations, situated on an impressive 49 x 223-foot lot backing onto a park and baseball diamond, offering no rear neighbours. This well-laid-out home provides approximately 1,650 sq. ft. of above-grade living space, plus a walkout lower level with excellent in-law or secondary suite potential. Outstanding curb appeal featuring updated vinyl siding, a durable metal roof, and a modern front door sets the tone before you even step inside. The bright, open-concept living and dining area is perfect for both cozy family evenings and entertaining, highlighted by a striking electric fireplace framed with built-in bookshelves and exposed brick. The sun-filled kitchen features large patio sliding doors that bring in natural light and create a seamless connection to the backyard. The main floor also includes a convenient bedroom that could easily function as a guest room or home office. Upstairs, you'll find two spacious bedrooms, including a generous primary suite with an oversized walk-in closet, along with a well-appointed 4-piece bathroom. The lower level is ideally configured for an in-law suite or potential secondary unit, featuring a separate side entrance and a walkout to the yard. The basement currently includes a large recreation room with a brick gas fireplace, a laundry area, a 1-piece bathroom, an additional room that could serve as a fourth bedroom, and a utility room. Outside, the property boasts a detached single-car garage and plenty of space for outdoor living. Enjoy entertaining on the deck or relaxing under the gazebo, with ample room for play, gardening, or future upgrades. Located directly across from schools and adjacent to the local police station for added peace of mind, and within walking distance to Canal Days, local restaurants, and Lake Erie. A fantastic opportunity to move in, enjoy, and personalize this beautiful home to make it your own.
Upcoming Open House
Property Details
Interior
Features
Main Floor
Dining
4.32 x 4.29Kitchen
4.32 x 3.35Br
4.32 x 3.04Living
4.32 x 4.29Exterior
Features
Parking
Garage spaces 1
Garage type Detached
Other parking spaces 3
Total parking spaces 4
Property History
47





