82 Vansickle Rd, St. Catharines, Ontario L2S 3Y6
Contact us about this property
Highlights
Estimated valueThis is the price Wahi expects this property to sell for.
The calculation is powered by our Instant Home Value Estimate, which uses current market and property price trends to estimate your home’s value with a 90% accuracy rate.Not available
Price/Sqft$388/sqft
Monthly cost
Open Calculator
Description
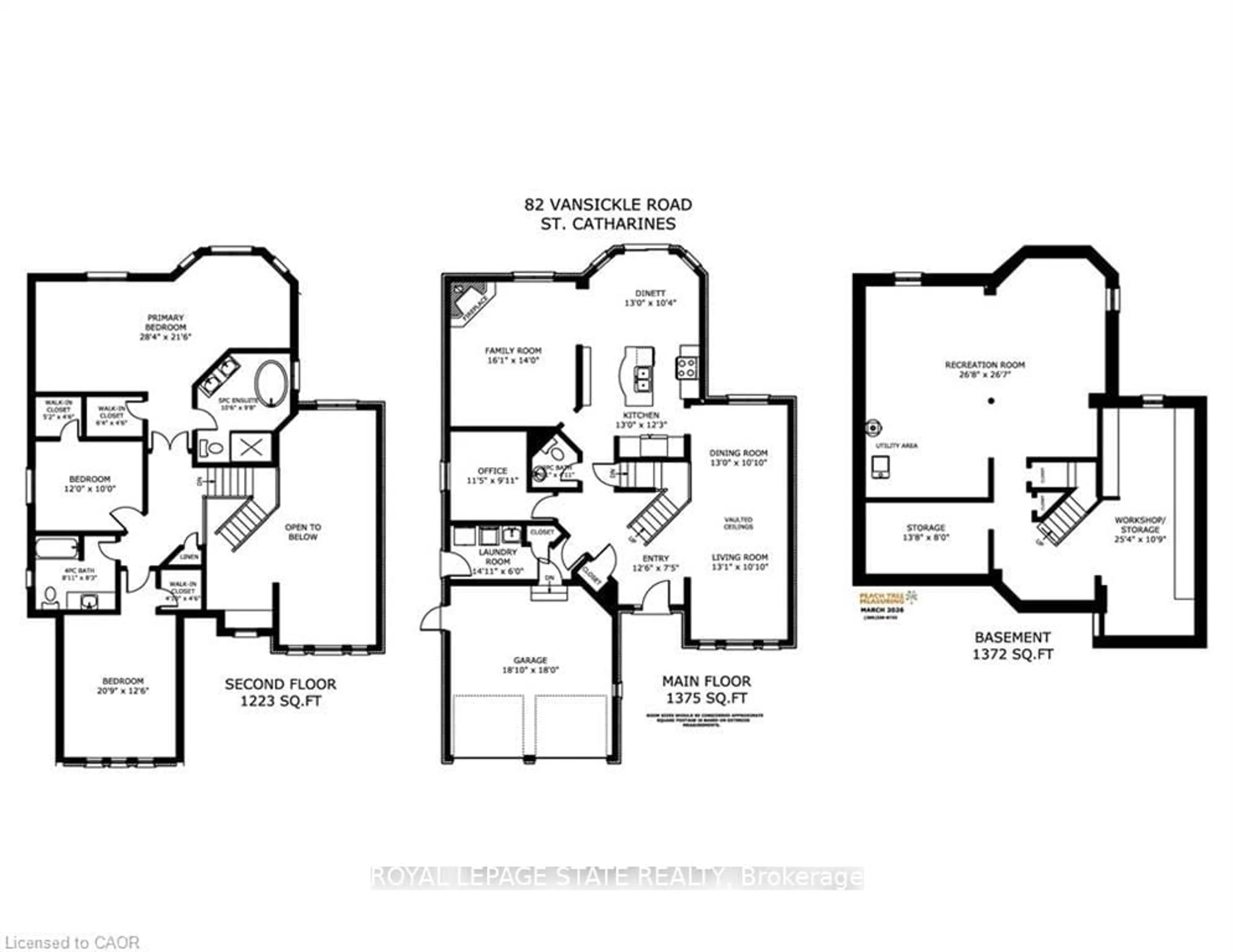
Come join us in beautiful Niagara, Ontario where the great lakes and vineyards meet and whose residents enjoy many amenities plus an active lifestyle in family-friendly neighbourhoods. Set across from a beautiful park and minutes from local shopping and schools. Charming 2600 square feet of living space. Enter into the spacious vaulted ceiling living room and dining room with brand new light oak wood flooring. The office, family and laundry rooms added with a large eat-in kitchen and island are all on the main floor. The second floor has 3 bedrooms - all have walk-in closets. The home has many updates including new garage doors (2025), pool liner (2019), pool robotic vacuum (2020), pool pump (2022), driveway (2019), heat pump (furnace/AC) 2023, bathrooms, lighting (2026) and oak flooring (2025) and carpeting (2024). A recent home energy audit completed with spray foam insulation in the studio bedroom floor over the garage (2023). Regarding the partially finished basement, all exterior walls are framed with insulation, and electrical outlets and lighting throughout. Enjoy a backyard retreat with a covered veranda off the kitchen and heated, salt water pool - a welcoming space for time with family and friends. Custom-built pool house provides a convenient change room and storage for pool equipment and recreational gear. The space is outfitted with two gas pipe connections for convenient outdoor cooking. This vibrant community meets all your needs with a wide variety of local shops, entertainment and services as well as a new regional hospital. Major arteries link quickly to Niagara and the Golden Horseshoe. Commuter trains are nearby and recently upgraded. Private, public and French Immersion schools are nearby. Surrounded by wine country including Niagara-on-the Lake and Jordan Valley where there are many hiking and biking trails at your doorstep. Come and see all that this home and community have to offer!
Upcoming Open House
Property Details
Interior
Features
Main Floor
Living
3.99 x 3.3hardwood floor / Vaulted Ceiling
Dining
3.96 x 3.3hardwood floor / Vaulted Ceiling
Kitchen
3.96 x 3.73Centre Island / Breakfast Bar
Foyer
3.81 x 2.26Vaulted Ceiling
Exterior
Features
Parking
Garage spaces 2
Garage type Attached
Other parking spaces 2
Total parking spaces 4
Property History
48















