Contact us about this property
Highlights
Estimated valueThis is the price Wahi expects this property to sell for.
The calculation is powered by our Instant Home Value Estimate, which uses current market and property price trends to estimate your home’s value with a 90% accuracy rate.Not available
Price/Sqft$321/sqft
Monthly cost
Open Calculator
Description
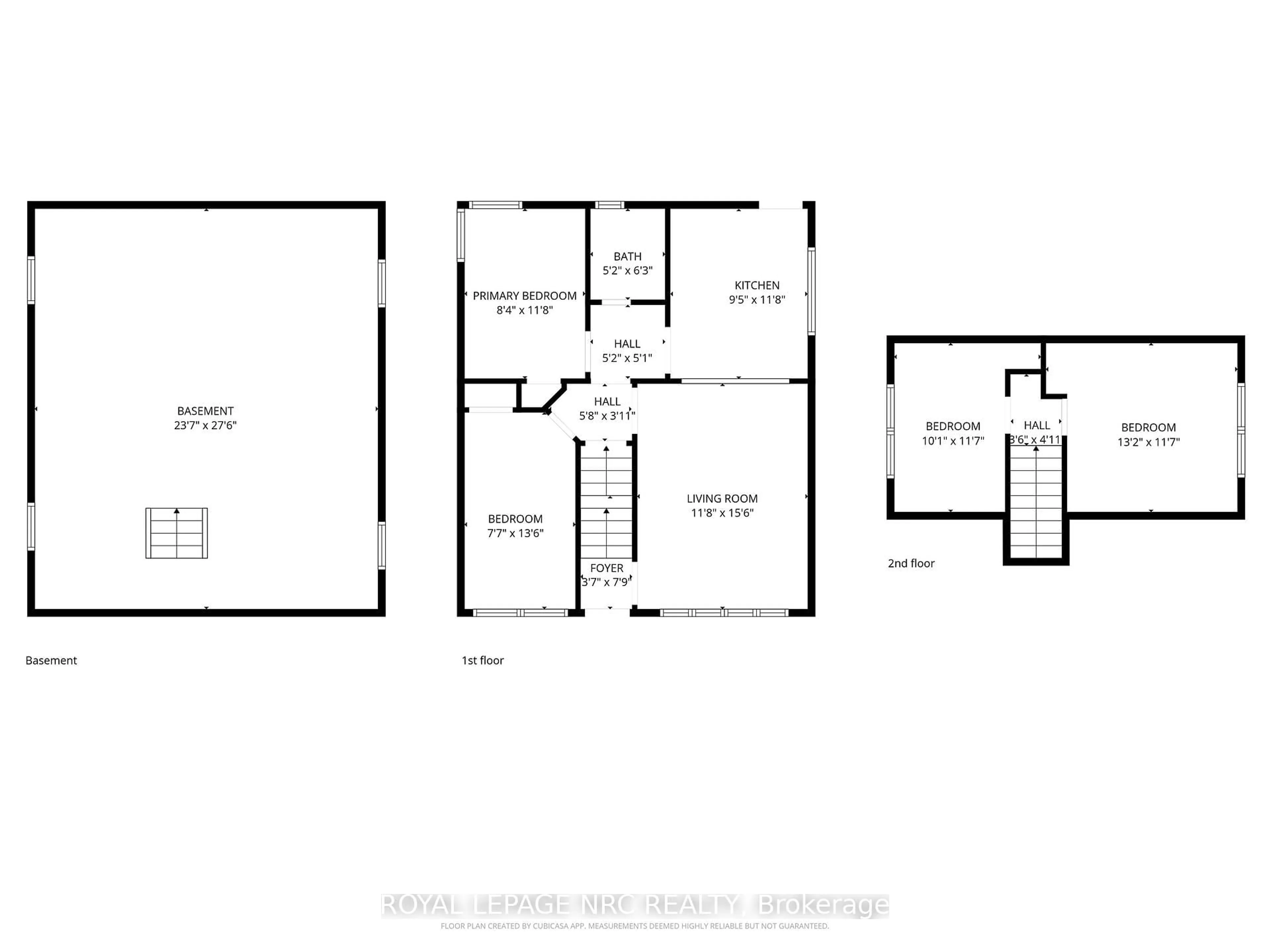
BRING YOUR IMAGINATION, SKILLS AND TOOL BOX - Solid mid-century home in vintage condition on a great 40' x 120' lot with a long history in the same family. 4 good sized bedrooms above ground. Unfinished basement suitable for future development. Potential addition or for a detached garage at back. Quiet family neighbourhood with easy access to shopping, Ontario Road & Lake Street commercial corridors and QEW. An excellent opportunity to move in and upgrade at your own pace.
Property Details
Interior
Features
Main Floor
Living
4.75 x 3.6Kitchen
3.6 x 2.9Br
4.12 x 2.352nd Br
3.6 x 2.5Exterior
Features
Parking
Garage spaces -
Garage type -
Total parking spaces 2
Property History
23






