1981 Orchardview Ave, Ottawa, Ontario K4A 3B8
Contact us about this property
Highlights
Estimated valueThis is the price Wahi expects this property to sell for.
The calculation is powered by our Instant Home Value Estimate, which uses current market and property price trends to estimate your home’s value with a 90% accuracy rate.Not available
Price/Sqft$437/sqft
Monthly cost
Open Calculator
Description
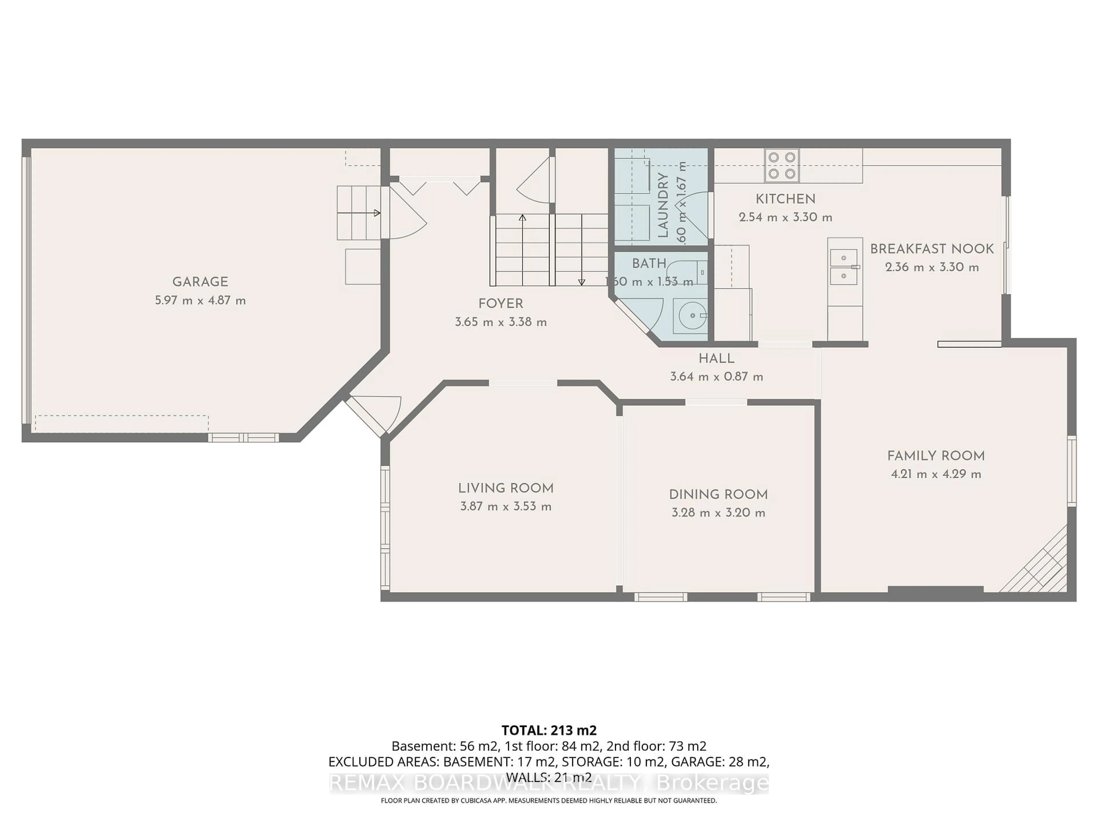
Welcome to 1981 Orchardview in sought-after Fallingbrook. From the moment you arrive, this home feels warm, inviting, and effortlessly functional. Set on a quiet, family-friendly street and featuring no direct rear neighbours, it offers a thoughtful layout designed for both everyday living and memorable gatherings. Step inside to gleaming hardwood floors and a bright, airy main level. At the heart of the home is the gourmet eat-in kitchen, perfect for morning coffee, weeknight dinners, and hosting family and friends. Just beyond, a formal dining area sets the stage for special occasions, while two spacious living rooms provide the flexibility to relax, entertain, or unwind in your own way. Upstairs, you'll find three generously sized bedrooms, including a primary retreat complete with a large walk-in closet and beautifully updated ensuite. The fully finished basement extends your living space with an additional bedroom and full bathroom-ideal for guests, a home office, or a growing family. Outside, the fully fenced and landscaped backyard offers a private setting to enjoy summer evenings, watch the kids play, or simply relax. A double car garage with convenient inside entry adds everyday practicality, while the location ties it all together - just minutes to parks, schools, and all the shops and amenities along Innes Road, with easy access for commuting into the city. Homes like this don't come up often in Fallingbrook - this is one you won't want to miss.
Upcoming Open House
Property Details
Interior
Features
Main Floor
Powder Rm
1.6 x 1.53Kitchen
2.54 x 3.3Living
3.87 x 3.53Dining
3.28 x 3.2Exterior
Features
Parking
Garage spaces 2
Garage type Attached
Other parking spaces 4
Total parking spaces 6
Property History
50







