4968 HIGHWAY 34 Highway, Champlain, Ontario K0B 1R0
Contact us about this property
Highlights
Estimated valueThis is the price Wahi expects this property to sell for.
The calculation is powered by our Instant Home Value Estimate, which uses current market and property price trends to estimate your home’s value with a 90% accuracy rate.Not available
Price/Sqft$378/sqft
Monthly cost
Open Calculator
Description
Entirely Renovated Two-Storey Home with Large Detached Garage. Beautifully renovated two-storey home located on the outskirts of Vankleek Hill, featuring a spacious 30 x 50 ft detached garage. This property has been fully updated from top to bottom, including new windows, doors, roof, insulation, hardwood flooring, kitchen, bathrooms, laundry room, HVAC system, exterior siding, and landscaping - offering a true turnkey experience. The home offers: 3 generously sized bedrooms 2 full bathrooms Bright, modern living spaces throughout, Additional features include a new Generac automatic generator and a partially heated garage, perfect for year-round use. A rare opportunity combining quality renovations, space, and functionality - ideal for homeowners seeking comfort and peace of mind. Don't miss your chance - schedule your private visit today! +++++++ Superbe propriété située aux abords de Vankleek Hill, offrant un garage détaché de 30 x 50 pi.Cette maison a été entièrement rénovée de A à Z : fenêtres, portes, toiture, isolation, planchers de bois franc, cuisine, salles de bains, salle de lavage, système CVAC, revêtement extérieur et aménagement paysager - une véritable propriété clé en main.Caractéristiques : 3 chambres à coucher de bonnes dimensions 2 salles de bains complètes Espaces de vie lumineux et modernesParmi les extras : une génératrice automatique Generac neuve ainsi qu'un garage partiellement chauffé, idéal pour une utilisation à l'année.Une occasion rare alliant qualité, espace et fonctionnalité - parfaite pour ceux qui recherchent confort et tranquillité d'esprit.Ne manquez pas votre chance - planifiez votre visite privée dès aujourd'hui !
Property Details
Interior
Features
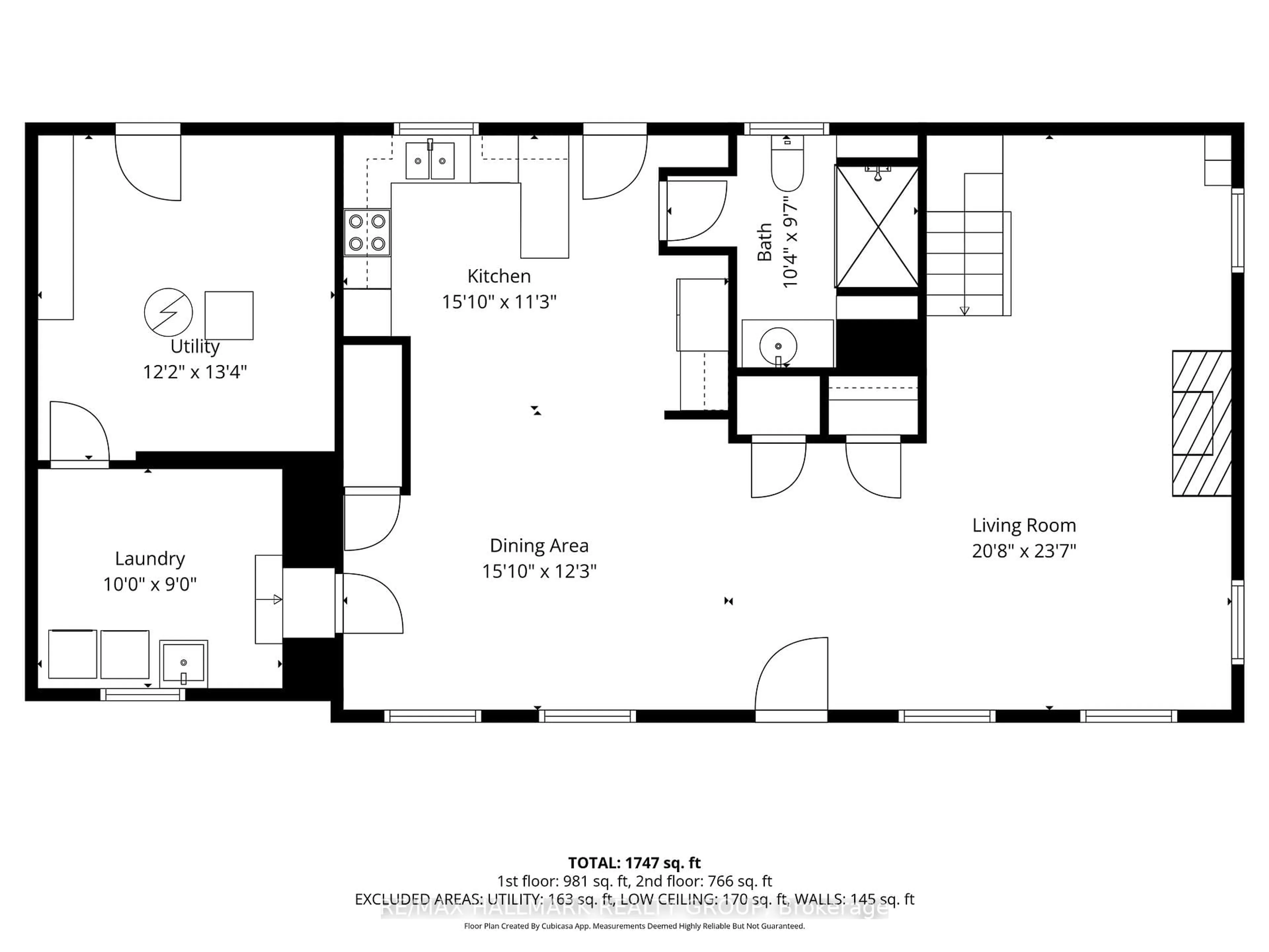
Main Floor
Kitchen
15.0 x 11.0Laundry
10.0 x 9.0Living
23.0 x 20.0Utility
13.0 x 12.0Exterior
Features
Parking
Garage spaces 4
Garage type Detached
Other parking spaces 8
Total parking spaces 12
Property History
50





