355 Blake St #3, Barrie, Ontario L4M 1L1
Contact us about this property
Highlights
Estimated valueThis is the price Wahi expects this property to sell for.
The calculation is powered by our Instant Home Value Estimate, which uses current market and property price trends to estimate your home’s value with a 90% accuracy rate.Not available
Price/Sqft$589/sqft
Monthly cost
Open Calculator
Description
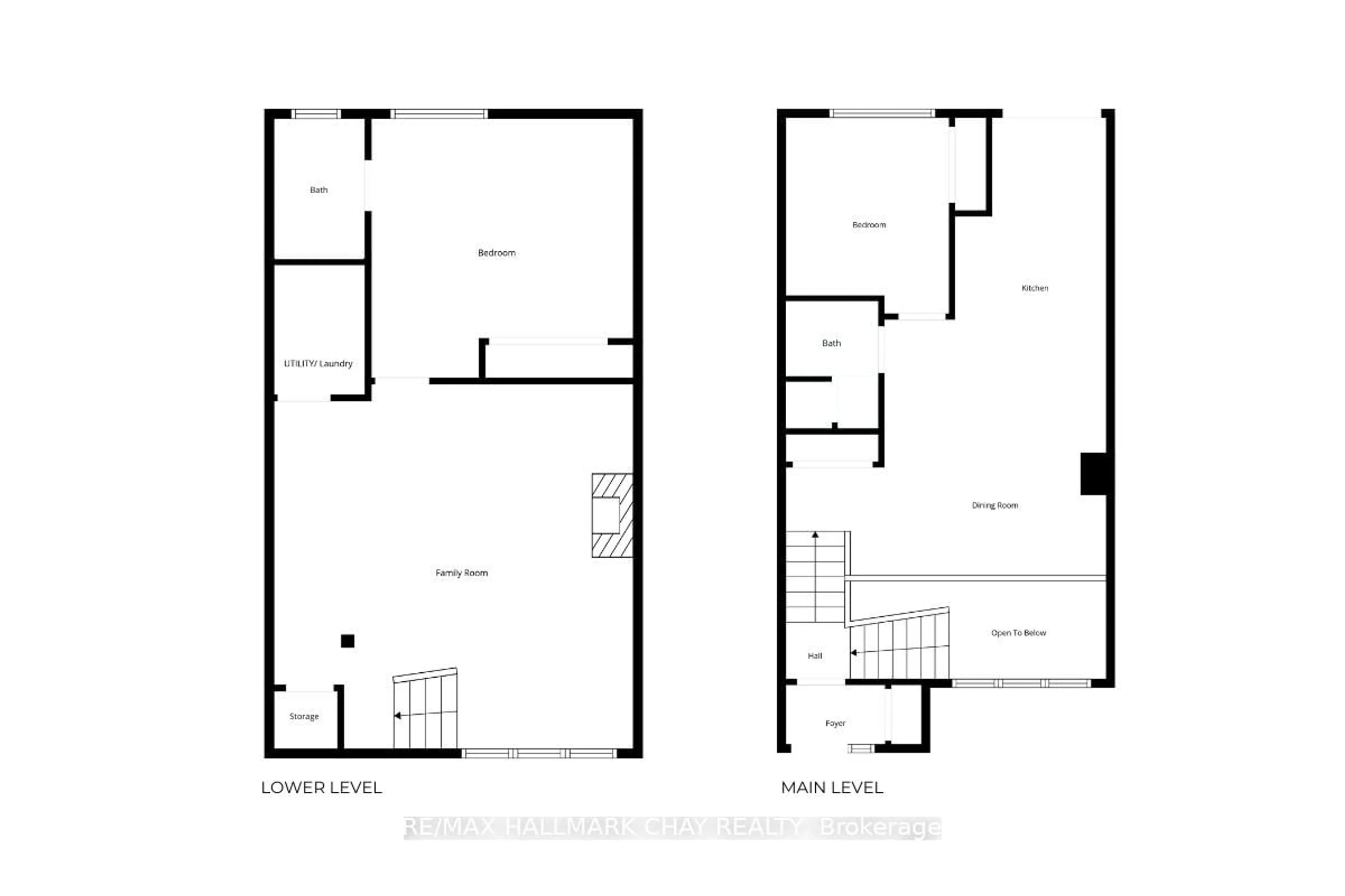
WELCOME to this bright and spacious condo townhouse in Barrie's desirable East End, offering nearly 1,500 sq.ft. of finished living space. This thoughtfully laid-out home features 2 bedrooms and 2 full bathrooms, making it ideal for professionals, down-sizers, or first-time buyers seeking comfort and convenience. The main living area is highlighted by cathedral ceilings and an abundance of natural light through the large front picture window. Enjoy seamless flow from the seating and dining areas, through the galley kitchen with oak cabinetry and raised bar top, continuing into the breakfast nook and out onto the large balcony, where afternoon sun creates an ideal space to relax or entertain. One bedroom and a 3-piece bathroom complete this level. The lower level is an absolute treat, featuring over 20-foot soaring ceilings over the staircase, and even more natural light from that large picture window. 9-foot ceilings on this level are rarely found in homes like this, and the all-brick fireplace mantle serves as a striking focal point in the oversized recreation room. The second bedroom, complete with a large window and 4-piece ensuite bathroom, adds the finishing touch to this impressive space. The functional layout offers excellent separation for everyday living, entertaining, or working from home. A major advantage of this unit is two parking spaces conveniently located right at the front door. Recent updates provide added value and peace of mind, including roof, windows, doors, select appliances, and a ductless mini-split system for efficient heating and cooling. Ideally located in Barrie's East End, this home is minutes to schools, parks, shopping, and everyday amenities, with easy access to Kempenfelt Bay, the Simcoe County Trail, and major commuter routes. Enjoy carefree, low-maintenance living in this bright and well-maintained condo townhouse in a fantastic East End location!
Property Details
Interior
Features
Upper Floor
Foyer
1.9 x 1.0Kitchen
3.0 x 2.7Eat-In Kitchen
Living
4.0 x 3.3Breakfast
1.7 x 1.6Eat-In Kitchen
Exterior
Features
Parking
Garage spaces -
Garage type -
Total parking spaces 2
Condo Details
Inclusions
Property History
28











