Open: Today, 12PM to 2PM
A pic from outside/outdoor area/front of a property/back of a property/a pic from drone, street for 65 Donald St, Barrie Ontario L4N 1E5
44 days on Market

65 Donald St, Barrie, Ontario L4N 1E5

Detached
3
1
~700-1100 sqft
$•••,•••
$599,900
Get pre-qualifiedPowered by nesto
Detached
3
1
~700-1100 sqft

Contact us about this property

Call

Highlights

Property Estimate

Days on market44 days

Estimated valueNot available

Price/Sqft$701/sqft

Monthly cost

Open Calculator

Description

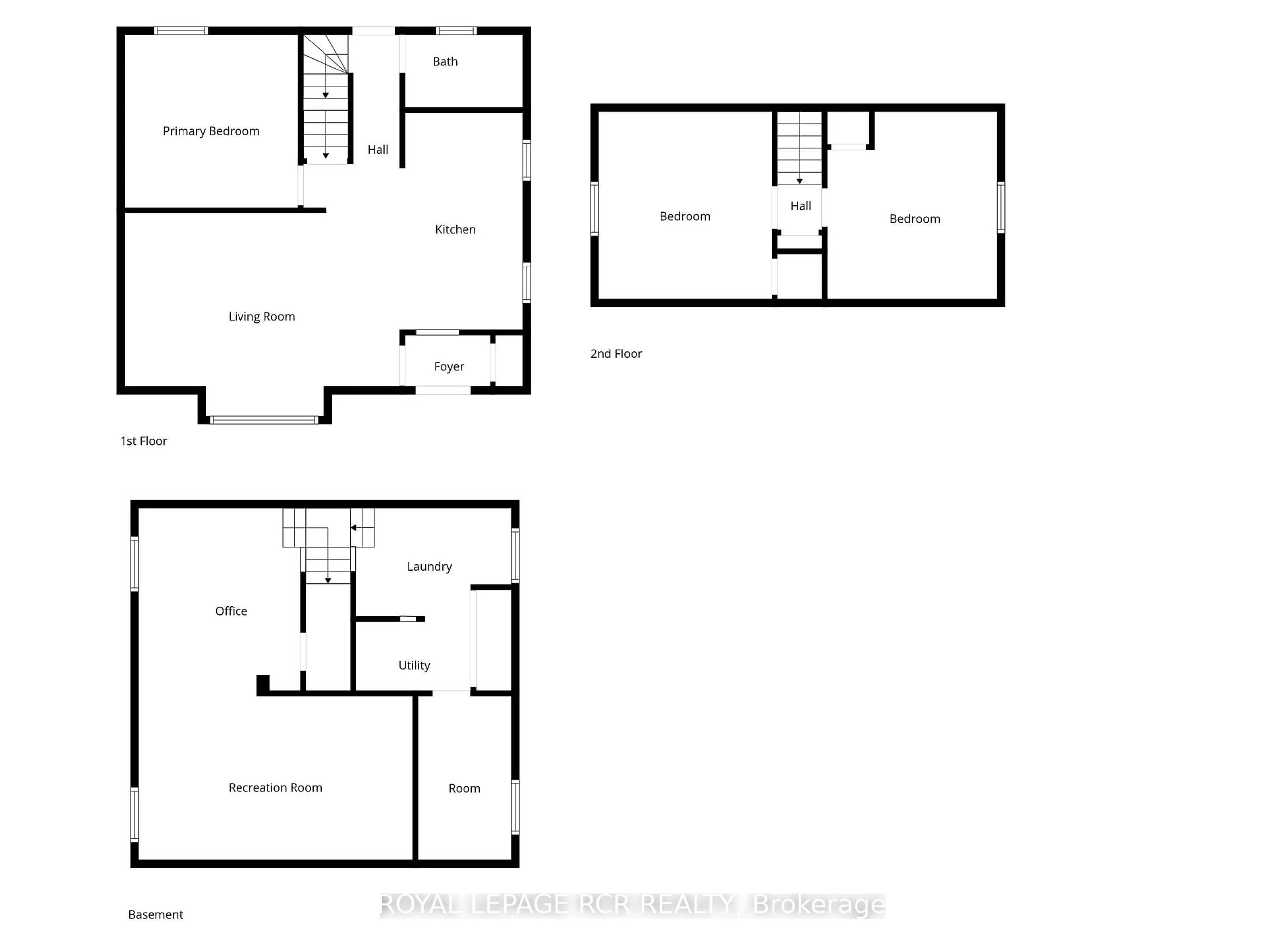
Welcome to this adorable 1.5-storey home full of character and thoughtful updates. Built in 1950, this well-maintained property features beautiful original hardwood floors and a functional layout that suits a variety of buyers. The main floor offers a primary bedroom and convenient 3-piece bathroom, ideal for those seeking main floor living. Upstairs you'll find two additional bedrooms, perfect for kids, guests, or a home office. The finished basement adds extra living space with a cozy family room, office area, laundry, and plenty of storage. Step outside to enjoy the covered back porch overlooking a fully fenced yard, offering a great space to relax or entertain. A detached single-car garage provides additional storage and parking. Important updates have already been completed, including roof (approx. 8 years), windows & doors, furnace, central air all 2010. Plus, a 200-amp breaker panel, giving peace of mind to the next owner. Conveniently located within walking distance to downtown Barrie, parks, and shopping. Available for quick possession, making this a fantastic opportunity for first-time buyers, downsizers, or investors.


Upcoming Open House

Apr 25Sat12:00 PM - 2:00 PM

Property Details

Style1 1/2 Storey
View-
Age of property51-99
SqFt~700-1100 SqFt
Lot Size7,500 SqFt(150 x 50)
Parking Spaces3
MLS ®NumberS12872928
Community NameBarrie
Data SourceTRREB
Listing byROYAL LEPAGE RCR REALTY

Features

Heating: Forced Air
Cooling: Central Air
Basement: Full, Part Fin

2nd Floor

2nd Br

3.41 x 3.68

3rd Br

3.34 x 3.68


Features

Lot size: 7,500 SqFt

Parking

Garage spaces 1

Garage type Detached

Other parking spaces 2

Total parking spaces 3


Property History

Mar 11, 2026
ListedActive
$599,900
44 days on market
history photo preview50
Listing by trreb®
Property listed by ROYAL LEPAGE RCR REALTY, Brokerage
Agent Banner Image
Interested in this property?Get in touch to get the inside scoop.

Market Data - Barrie

Geo Zone Map ThumbnailBarrie

Balanced Market

View Market Data

Detached house - for the past 30 days

Buyer's market Seller's market

Avg. Days on Market

Past 30 days

30 days

Compared to

2025

30 days

2024

21 days

2023

20 days

New Listings

Past 30 days

274 listings

Compared to

2025

297 listings

2024

292 listings

2023

284 listings

Units sold

Past 30 days

90 units

Compared to

2025

103 units

2024

167 units

2023

165 units

Median Sold Price

Past 30 days

$731,250

Compared to

2025

$798,900

2024

$822,000

2023

$785,000


Population and Demographics

Overview

Total population 139894
Average household income $119,497

Age (%)

0 to 19
23%
20 to 34
21%
35 to 49
20%
50 to 64
20%
65 and plus
16%

Household composition (%)

Single family
67%
Single person
26%
Multi person
6%
Multi family
1%

Mother tongue (%)

English
88%
Others
6%
French
2%
Spanish
2%
Russian
1%

House tenancy (%)

Owners
67%
Renters
33%

What’s nearby?Essentials within 5 km

Local Logic

Transportation Scores

Estimated Budget