823 Essa Rd, Barrie, Ontario L4N 9G5
Contact us about this property
Highlights
Estimated valueThis is the price Wahi expects this property to sell for.
The calculation is powered by our Instant Home Value Estimate, which uses current market and property price trends to estimate your home’s value with a 90% accuracy rate.Not available
Price/Sqft$669/sqft
Monthly cost
Open Calculator
Description
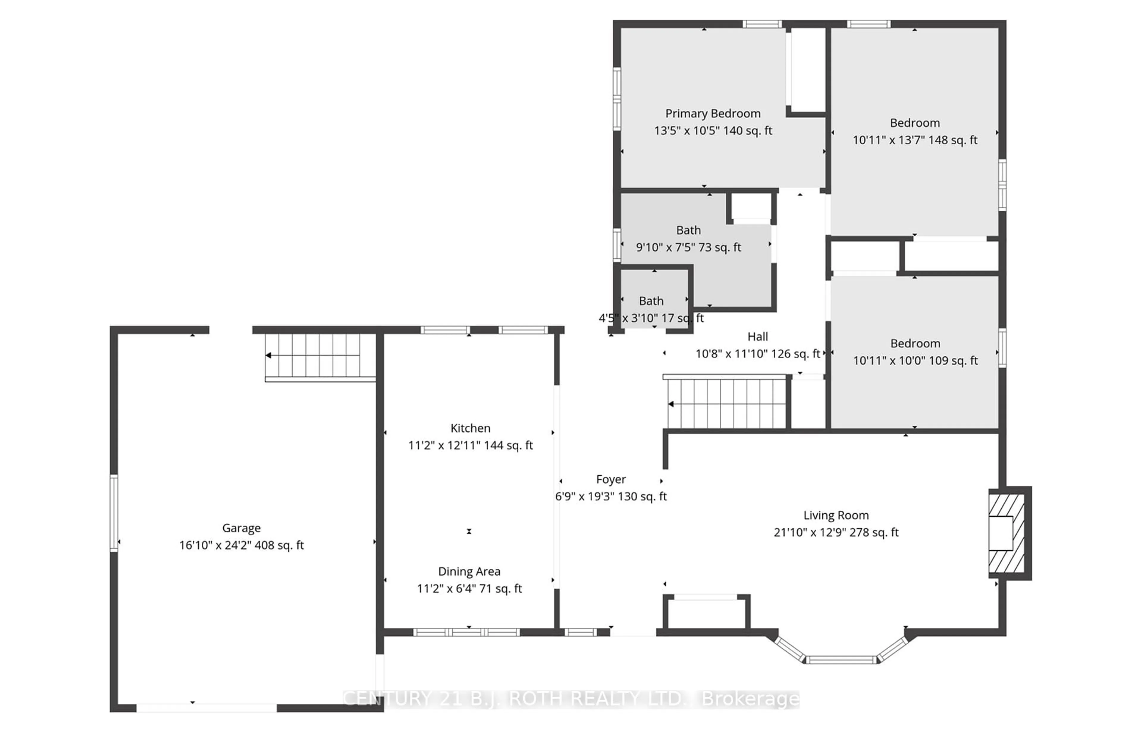
Presenting 823 Essa Road, set on an expansive 75' x 200' mature lot in one of Barrie's most rapidly evolving corridors. Surrounded by ongoing and recent development, this property offers a rare opportunity for both immediate income potential and long-term redevelopment upside. Ideal for today's savvy buyer, the home features a fully self-contained in-law suite with separate access, perfect for multigenerational living or conversion into a legal duplex. Beyond its current use, the true value lies in the future potential, with the possibility of additional dwelling units or redevelopment as this stretch of Essa Road continues to transform. Notably, this represents one of the last remaining pockets of large, mature lots in the area, with many neighbouring properties already transitioned into townhome and low- to mid-rise developments. The main level offers 3 spacious bedrooms and 2 bathrooms, highlighted by a beautifully updated open-concept kitchen featuring stainless steel appliances, white shaker cabinetry, and a modern tiled backsplash. The bright and inviting living room is anchored by a charming bay window and a cozy gas fireplace with custom built-ins. The lower level, with private access through the garage, includes a newly completed (2026) 1-bedroom suite with a full kitchen and bathroom, ideal for rental income or extended family. Additional updates include: roof (2019), furnace (2019), and air conditioning (2019). 823 Essa Road delivers the perfect blend of immediate functionality and future opportunity in a high-growth location.
Upcoming Open House
Property Details
Interior
Features
Main Floor
Living
6.43 x 3.93Dining
3.41 x 1.95Kitchen
3.41 x 3.69Primary
4.11 x 3.2Exterior
Features
Parking
Garage spaces 1
Garage type Attached
Other parking spaces 6
Total parking spaces 7
Property History
36


























